Elderbush Inn, 57 High Street, Nantyffyllon, Maesteg, Mid Glamorgan, CF34 0BS

- PROPERTY TYPE
House of Multiple Occupation
- BEDROOMS
12
- BATHROOMS
12
- SIZE
Ask agent
- TENUREDescribes how you own a property. There are different types of tenure - freehold, leasehold, and commonhold.Read more about tenure in our glossary page.
Freehold
Key features
- Full planning permission for 12 room HMO
- Parking/Bike store/ communal garden
- Cellar laundry room
- Excellent investment yield
Description
ONLINE AUCTION from 16th DECEMBER - 18th DECEMBER 2025
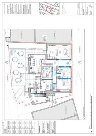
Previously run as a public house there is now Full Planning Permission to convert into a 12 bed/12 en-suite HMO with the addition of a third storey. The current accommodation over two floors consists of bar and lounge areas. utility room, kitchen/dining area, mens and womens toilets, storage areas, 4 bedrooms, bathroom, w.c. cellar with two rooms and outside courtyard with shed area and rear lane access. The plans include accommodation over 3 floors (loft conversion) communal lounge/dining room, 2 kitchens, 2 bathrooms, 12 rooms with 12 en-suites, laundry room and bike store along with parking for 5 cars and roof top (carport) communal garden. The property is to be sold with vacant possession. The Vendor informs us that each room will let at approximately £600 pcm (£7,200 pcm) with an annual income of approximately £86,400. The Vendor also informs us that she costed the conversion at approximately £261,000 with a Gross Development Value estimated at approximately £581,000.
Nantyffyllon is a village in Maesteg. Maesteg is a town in Bridgend County Borough, Wales. Maesteg lies at the northernmost end of the Llynfi Valley, close to the border with Neath Port Talbot. Maesteg has three railway stations, all on the Maesteg Line. Services are operated by Transport for Wales and run directly to Cardiff Central via Bridgend. The services usually continue to Cheltenham Spa via Newport and Gloucester with one early morning service to Ebbw Vale Town.
Ground Floor Hallway, lounge/dining room, kitchen 1, 4 rooms/en-suites, bike store
First Floor 7 rooms/en-suites, communal bathroom
Second Floor storey (loft conversion) Open plan kitchen 2 /dining/ lounge area, communal bathroom, 1 room/en-suite, communal bathroom
Lower ground floor Cellar - Laundry room
Outside Rear car park area for 5 cars, Carport roof terrace - communal garden area
Tenure:
Advised Freehold - to be verified by solicitor
Tenancies:
Planning Planning permission has been granted to convert existing pub in to a 12 bedroom house in Multiple Occupation (HMO)
Planning ref P/24/45/FULL
Local Authority Bridgend County Borough Council
INVESTORS: If you are looking for assistance in tenant find and/or management packages, information on rental income/interest potential we have a Lettings Department that can help you. Please call us or email for invaluable advice.
Brochures
Legal DocumentsOnline Bidding- COUNCIL TAXA payment made to your local authority in order to pay for local services like schools, libraries, and refuse collection. The amount you pay depends on the value of the property.Read more about council Tax in our glossary page.
- Ask agent
- PARKINGDetails of how and where vehicles can be parked, and any associated costs.Read more about parking in our glossary page.
- Yes
- GARDENA property has access to an outdoor space, which could be private or shared.
- Ask agent
- ACCESSIBILITYHow a property has been adapted to meet the needs of vulnerable or disabled individuals.Read more about accessibility in our glossary page.
- Ask agent
Energy performance certificate - ask agent
Elderbush Inn, 57 High Street, Nantyffyllon, Maesteg, Mid Glamorgan, CF34 0BS
Add an important place to see how long it'd take to get there from our property listings.
__mins driving to your place
Get an instant, personalised result:
- Show sellers you’re serious
- Secure viewings faster with agents
- No impact on your credit score
Your mortgage
Notes
Staying secure when looking for property
Ensure you're up to date with our latest advice on how to avoid fraud or scams when looking for property online.
Visit our security centre to find out moreDisclaimer - Property reference 320325. The information displayed about this property comprises a property advertisement. Rightmove.co.uk makes no warranty as to the accuracy or completeness of the advertisement or any linked or associated information, and Rightmove has no control over the content. This property advertisement does not constitute property particulars. The information is provided and maintained by Paul Fosh Commercial, South Wales. Please contact the selling agent or developer directly to obtain any information which may be available under the terms of The Energy Performance of Buildings (Certificates and Inspections) (England and Wales) Regulations 2007 or the Home Report if in relation to a residential property in Scotland.
Auction Fees: The purchase of this property may include associated fees not listed here, as it is to be sold via auction. To find out more about the fees associated with this property please call Paul Fosh Commercial, South Wales on 01633 603812.
*Guide Price: An indication of a seller's minimum expectation at auction and given as a Guide Price or a range of Guide Prices. This is not necessarily the figure a property will sell for and is subject to change prior to the auction.
Reserve Price: Each auction property will be subject to a Reserve Price below which the property cannot be sold at auction. Normally the Reserve Price will be set within the range of Guide Prices or no more than 10% above a single Guide Price.
*This is the average speed from the provider with the fastest broadband package available at this postcode. The average speed displayed is based on the download speeds of at least 50% of customers at peak time (8pm to 10pm). Fibre/cable services at the postcode are subject to availability and may differ between properties within a postcode. Speeds can be affected by a range of technical and environmental factors. The speed at the property may be lower than that listed above. You can check the estimated speed and confirm availability to a property prior to purchasing on the broadband provider's website. Providers may increase charges. The information is provided and maintained by Decision Technologies Limited. **This is indicative only and based on a 2-person household with multiple devices and simultaneous usage. Broadband performance is affected by multiple factors including number of occupants and devices, simultaneous usage, router range etc. For more information speak to your broadband provider.
Map data ©OpenStreetMap contributors.



