
3 bedroom terraced house for sale
Union Street, Motherwell, ML1

- PROPERTY TYPE
Terraced
- BEDROOMS
3
- BATHROOMS
1
- SIZE
Ask agent
- TENUREDescribes how you own a property. There are different types of tenure - freehold, leasehold, and commonhold.Read more about tenure in our glossary page.
Ask agent
Description
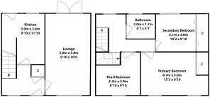
Welcome to Union Street, Motherwell, this beautifully presented three-bedroom mid-terrace property located in a popular and established area. The home is bright, vibrant and finished to an excellent modern standard throughout, a real credit to the current owners. All that’s needed is your own furniture. Early viewing is essential.
The ground floor offers a spacious lounge complete with stylish media wall and a fresh, contemporary feel with space for both living and dining. To the rear, the newly fitted kitchen is a real standout feature, offering sleek units, great worktop space and direct access to the garden.
The rear garden has been fully landscaped and is ideal for relaxing or entertaining. It also benefits from a lovely wooden outbuilding which can be used as a home office, gym, storage or a cosy outdoor retreat.
Upstairs, there are three well-proportioned bedrooms and a stylish, modern bathroom finished to an excellent standard. The property further benefits from a floored attic space, which can be utilised for many purposes such as storage, working from home or hobby space.
Additional features include gas central heating, double glazing, and low-maintenance gardens to both front and rear.
Union Street is perfectly located for access to Motherwell town centre, offering a wide range of shops, cafés, bars, supermarkets and amenities. The area benefits from excellent transport links including Motherwell Train Station with regular services to Glasgow and Edinburgh, as well as easy access to the M74 and M8 motorway networks for commuting.
- COUNCIL TAXA payment made to your local authority in order to pay for local services like schools, libraries, and refuse collection. The amount you pay depends on the value of the property.Read more about council Tax in our glossary page.
- Band: A
- PARKINGDetails of how and where vehicles can be parked, and any associated costs.Read more about parking in our glossary page.
- Ask agent
- GARDENA property has access to an outdoor space, which could be private or shared.
- Yes
- ACCESSIBILITYHow a property has been adapted to meet the needs of vulnerable or disabled individuals.Read more about accessibility in our glossary page.
- Ask agent
Union Street, Motherwell, ML1
Add an important place to see how long it'd take to get there from our property listings.
__mins driving to your place
Get an instant, personalised result:
- Show sellers you’re serious
- Secure viewings faster with agents
- No impact on your credit score

Your mortgage
Notes
Staying secure when looking for property
Ensure you're up to date with our latest advice on how to avoid fraud or scams when looking for property online.
Visit our security centre to find out moreDisclaimer - Property reference lanarkshire_1127273290. The information displayed about this property comprises a property advertisement. Rightmove.co.uk makes no warranty as to the accuracy or completeness of the advertisement or any linked or associated information, and Rightmove has no control over the content. This property advertisement does not constitute property particulars. The information is provided and maintained by Lanarkshire Law Estate Agents, Bellshill. Please contact the selling agent or developer directly to obtain any information which may be available under the terms of The Energy Performance of Buildings (Certificates and Inspections) (England and Wales) Regulations 2007 or the Home Report if in relation to a residential property in Scotland.
*This is the average speed from the provider with the fastest broadband package available at this postcode. The average speed displayed is based on the download speeds of at least 50% of customers at peak time (8pm to 10pm). Fibre/cable services at the postcode are subject to availability and may differ between properties within a postcode. Speeds can be affected by a range of technical and environmental factors. The speed at the property may be lower than that listed above. You can check the estimated speed and confirm availability to a property prior to purchasing on the broadband provider's website. Providers may increase charges. The information is provided and maintained by Decision Technologies Limited. **This is indicative only and based on a 2-person household with multiple devices and simultaneous usage. Broadband performance is affected by multiple factors including number of occupants and devices, simultaneous usage, router range etc. For more information speak to your broadband provider.
Map data ©OpenStreetMap contributors.





