3 bedroom end of terrace house for sale
Meadvale Road, London, W5

- PROPERTY TYPE
End of Terrace
- BEDROOMS
3
- BATHROOMS
1
- SIZE
Ask agent
- TENUREDescribes how you own a property. There are different types of tenure - freehold, leasehold, and commonhold.Read more about tenure in our glossary page.
Freehold
Key features
- Recently Refurbished
- Great Location
- Walking Distance To Shops
- Bright Reception Room
- Three Bedrooms
- Great school catchment
Description
Located in the ever-popular Brentham Garden Estate, this newly refurbished three-bedroom end-of-terrace house offers an exceptional blend of character, green views, and modern living.
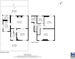
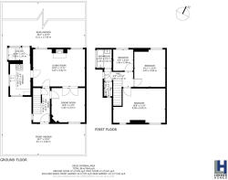
The ground floor features two bright reception rooms, offering versatile space for living, dining, or home working, alongside a stylish contemporary kitchen. Upstairs are three well-proportioned bedrooms and a modern family bathroom.
A key highlight is the large rear garden which enjoys an open, leafy outlook directly towards Brentham Sports Grounds, providing privacy, natural light, and a serene setting rarely found in this location.
The property also offers excellent potential for a loft conversion (subject to local authority planning consent), giving buyers the opportunity to add future value.
Perfectly positioned, the house is only a short walk from the charming Pitshanger Lane Village, known for its award-winning high street, cafés, bakeries, independent shops, and community feel. Transport links to Ealing Broadway and wider London are also easily accessible.
Families will appreciate the property's proximity to popular local primary schools, such as Montpelier, North Ealing and St Gregory’s, as well as prestigious private schools including St Benedict’s, Notting Hill & Ealing High, St Augustine’s Priory, Harvington, and Durston House, however, buyers are advised to verify current school catchment areas directly with the local authority, as boundaries can change annually.
A beautifully upgraded home in a conservation-area garden suburb, offering space, green views, and long-term potential — ideal for buyers seeking something special in this tranquil setting of W5.Disclaimer
The information on our brochures, our website & in the office is presented as general information and no representation or warranty is expressly or impliedly given as to its accuracy, completeness or correctness. It does not constitute part of a legal offer or contract. This brochure may unintentionally include inaccuracies or errors with respect to the description of a plot/ flat size, site plan, floor plan, a rendering, a photo, elevation, prices, taxes, adjacent properties, amenities, design guideline, features, etc. Further the actual design / construction may vary in fit and finish from the one displayed in the information and material displayed on this brochure. The user must verify all the details and specifications, including but not limited to the area, amenities, specifications, services, terms of sales, payments and all other relevant terms independently with our sales/ marketing team prior to concluding any decision for buying or renting any of the properties in any of our projects/ developments. Notwithstanding anything, in no event shall the Company/ Firm, their promoters, partners/ directors, employees and agents be liable to the visitor/ user for any or all damages, losses and causes of action (including but not limited to negligence), errors, injury, whether direct, indirect, consequential or incidental, suffered or incurred by any person/s or due to any use and/or inability to use this brochure or information, action taken or abstained through this brochure. While enough care is taken by the Company/ Firm to ensure that information in the brochure are up to date, accurate and correct, the readers/ users are requested to make their independent enquiry before relying upon the same.
- COUNCIL TAXA payment made to your local authority in order to pay for local services like schools, libraries, and refuse collection. The amount you pay depends on the value of the property.Read more about council Tax in our glossary page.
- Ask agent
- PARKINGDetails of how and where vehicles can be parked, and any associated costs.Read more about parking in our glossary page.
- Ask agent
- GARDENA property has access to an outdoor space, which could be private or shared.
- Yes
- ACCESSIBILITYHow a property has been adapted to meet the needs of vulnerable or disabled individuals.Read more about accessibility in our glossary page.
- Ask agent
Meadvale Road, London, W5
Add an important place to see how long it'd take to get there from our property listings.
__mins driving to your place
Get an instant, personalised result:
- Show sellers you’re serious
- Secure viewings faster with agents
- No impact on your credit score
Your mortgage
Notes
Staying secure when looking for property
Ensure you're up to date with our latest advice on how to avoid fraud or scams when looking for property online.
Visit our security centre to find out moreDisclaimer - Property reference 3798. The information displayed about this property comprises a property advertisement. Rightmove.co.uk makes no warranty as to the accuracy or completeness of the advertisement or any linked or associated information, and Rightmove has no control over the content. This property advertisement does not constitute property particulars. The information is provided and maintained by London Homes Residential Ltd, Ealing. Please contact the selling agent or developer directly to obtain any information which may be available under the terms of The Energy Performance of Buildings (Certificates and Inspections) (England and Wales) Regulations 2007 or the Home Report if in relation to a residential property in Scotland.
*This is the average speed from the provider with the fastest broadband package available at this postcode. The average speed displayed is based on the download speeds of at least 50% of customers at peak time (8pm to 10pm). Fibre/cable services at the postcode are subject to availability and may differ between properties within a postcode. Speeds can be affected by a range of technical and environmental factors. The speed at the property may be lower than that listed above. You can check the estimated speed and confirm availability to a property prior to purchasing on the broadband provider's website. Providers may increase charges. The information is provided and maintained by Decision Technologies Limited. **This is indicative only and based on a 2-person household with multiple devices and simultaneous usage. Broadband performance is affected by multiple factors including number of occupants and devices, simultaneous usage, router range etc. For more information speak to your broadband provider.
Map data ©OpenStreetMap contributors.




