
Mentone Gardens, Edinburgh, EH9

- PROPERTY TYPE
Apartment
- BEDROOMS
2
- BATHROOMS
2
- SIZE
850 sq ft
79 sq m
- TENUREDescribes how you own a property. There are different types of tenure - freehold, leasehold, and commonhold.Read more about tenure in our glossary page.
Freehold
Key features
- Charming two-bedroom main-door duplex apartment
- Highly sought-after Newington area of Edinburgh
- Welcoming home in true move-in condition
- Open-plan living, dining and kitchen space
- Generous double bedroom with fitted wardrobes
- Gas central heating and double glazing throughout
Description
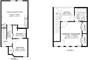
This charming two-bedroom main-door duplex apartment is set within the highly sought-after Newington area of Edinburgh. Recently redecorated throughout, it offers a stylish and welcoming home in true move-in condition.
A private front door leads into a bright, inviting hallway and through to the open-plan living, dining and kitchen space. The kitchen is fitted with a range of modern wall and base units, along with a four-ring gas hob, extractor hood, electric oven/grill, washing machine and fridge freezer. A useful under-stair storage cupboard and breakfast bar complete this sociable and well-designed space.
On the ground floor, you will find a generous double bedroom with fitted wardrobes and convenient Jack-and-Jill access to the contemporary shower room, which can also be entered from the hallway.
A wooden staircase leads to the upper landing, where the main bedroom awaits. This serene room features fitted wardrobes and benefits from an en-suite bathroom with Jack-and-Jill access to the landing. The property further enjoys gas central heating and double glazing throughout.
Location
Newington is a vibrant and ever-popular neighbourhood just a short distance from Edinburgh’s City Centre. The area offers an excellent array of local shops, cafés, restaurants and everyday amenities, as well as easy access to numerous University of Edinburgh buildings and George Square. Beautiful green spaces such as The Meadows, Holyrood Park and Arthur’s Seat are all within a pleasant walk, and regular bus services provide convenient links to the City Centre and surrounding areas.
EPC Rating: C
- COUNCIL TAXA payment made to your local authority in order to pay for local services like schools, libraries, and refuse collection. The amount you pay depends on the value of the property.Read more about council Tax in our glossary page.
- Band: E
- PARKINGDetails of how and where vehicles can be parked, and any associated costs.Read more about parking in our glossary page.
- Ask agent
- GARDENA property has access to an outdoor space, which could be private or shared.
- Ask agent
- ACCESSIBILITYHow a property has been adapted to meet the needs of vulnerable or disabled individuals.Read more about accessibility in our glossary page.
- Ask agent
Energy performance certificate - ask agent
Mentone Gardens, Edinburgh, EH9
Add an important place to see how long it'd take to get there from our property listings.
__mins driving to your place
Get an instant, personalised result:
- Show sellers you’re serious
- Secure viewings faster with agents
- No impact on your credit score
Your mortgage
Notes
Staying secure when looking for property
Ensure you're up to date with our latest advice on how to avoid fraud or scams when looking for property online.
Visit our security centre to find out moreDisclaimer - Property reference 87a339c4-7392-4c16-970d-323b8abd0aef. The information displayed about this property comprises a property advertisement. Rightmove.co.uk makes no warranty as to the accuracy or completeness of the advertisement or any linked or associated information, and Rightmove has no control over the content. This property advertisement does not constitute property particulars. The information is provided and maintained by Burgh Property, Edinburgh. Please contact the selling agent or developer directly to obtain any information which may be available under the terms of The Energy Performance of Buildings (Certificates and Inspections) (England and Wales) Regulations 2007 or the Home Report if in relation to a residential property in Scotland.
*This is the average speed from the provider with the fastest broadband package available at this postcode. The average speed displayed is based on the download speeds of at least 50% of customers at peak time (8pm to 10pm). Fibre/cable services at the postcode are subject to availability and may differ between properties within a postcode. Speeds can be affected by a range of technical and environmental factors. The speed at the property may be lower than that listed above. You can check the estimated speed and confirm availability to a property prior to purchasing on the broadband provider's website. Providers may increase charges. The information is provided and maintained by Decision Technologies Limited. **This is indicative only and based on a 2-person household with multiple devices and simultaneous usage. Broadband performance is affected by multiple factors including number of occupants and devices, simultaneous usage, router range etc. For more information speak to your broadband provider.
Map data ©OpenStreetMap contributors.





