
Grafton, Bampton, Oxfordshire, OX18

- PROPERTY TYPE
Detached
- BEDROOMS
6
- BATHROOMS
3
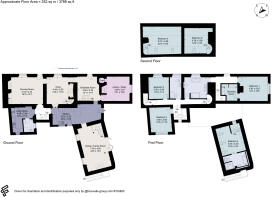
- SIZE
3,789 sq ft
352 sq m
- TENUREDescribes how you own a property. There are different types of tenure - freehold, leasehold, and commonhold.Read more about tenure in our glossary page.
Freehold
Key features
- Grade II Listed Cotswold stone farmhouse
- 5 reception rooms & a hall, cloakroom & utility room
- Exquisite landscaped gardens, with kitchen garden, rose garden and formal garden with arbour
- Backing onto farmland
- In an idyllic rural hamlet close to the village of Langford and Clanfield
- EPC Rating = F
Description
Description
A charming Grade II listed farmhouse showcasing a wealth of original features, with parts of the property believed to date back to the 1630s and further enhancements made during the Georgian and Victorian eras. Arranged over three floors, the farmhouse provides well-balanced accommodation throughout, combining generous living spaces filled with character.
The dining/family room, together with the bedroom and bathroom above, offers excellent potential as a semi-independent suite, ideal for multi-generational living, guests, or additional flexible space.
Approached via a gated driveway with ample parking, the property is complemented by gardens that wrap around to the rear, including a private area with raised vegetable beds. To the front, a beautifully stocked garden features a rose garden, box hedging, a patio, and a pergola, together with an expansive lawn leading down to a charming brook. The grounds provide a delightful setting, offering colour and interest throughout the year.
Location
Poplar Farmhouse is located in the unspoilt hamlet of Grafton. The nearby village of Clanfield provides two very highly regarded pubs (The Double Red Duke and Mason's Arms), Blake's cafe (famous for its sour dough and cinnamon buns), a pre-school nursery and primary school, a post Office, community garden and a parish church. The nearby market towns of Bampton, Lechlade and Burford offer further facilities, such as a co op, doctors surgery, beauty salon, butcher, hairdresser etc. Furthermore it benefits from incredibly popular The Bell Inn pub in nearby Langford known for its food.
Grafton is well positioned for a selection of both state and independent schools, including primary schools in Clanfield and Bampton. Other excellent schools in the area include; St. Hugh's, Cothill House, Cokethorpe and Radley College.
For the commuter; road links via the A420 and A40 give access to the A34 at Oxford and Abingdon connecting to the M40 (junction 8) and the M4 (junction13) respectively.
Square Footage: 3,789 sq ft
Additional Info
Mains electricity. Oil fired central heating. Private water
supply and drainage. Broadband. (Gigaclear is available in
the hamlet).
Brochures
Web DetailsParticulars- COUNCIL TAXA payment made to your local authority in order to pay for local services like schools, libraries, and refuse collection. The amount you pay depends on the value of the property.Read more about council Tax in our glossary page.
- Band: G
- PARKINGDetails of how and where vehicles can be parked, and any associated costs.Read more about parking in our glossary page.
- Driveway,Off street
- GARDENA property has access to an outdoor space, which could be private or shared.
- Yes
- ACCESSIBILITYHow a property has been adapted to meet the needs of vulnerable or disabled individuals.Read more about accessibility in our glossary page.
- Ask agent
Grafton, Bampton, Oxfordshire, OX18
Add an important place to see how long it'd take to get there from our property listings.
__mins driving to your place
Get an instant, personalised result:
- Show sellers you’re serious
- Secure viewings faster with agents
- No impact on your credit score
Your mortgage
Notes
Staying secure when looking for property
Ensure you're up to date with our latest advice on how to avoid fraud or scams when looking for property online.
Visit our security centre to find out moreDisclaimer - Property reference CLV744384. The information displayed about this property comprises a property advertisement. Rightmove.co.uk makes no warranty as to the accuracy or completeness of the advertisement or any linked or associated information, and Rightmove has no control over the content. This property advertisement does not constitute property particulars. The information is provided and maintained by Savills, Summertown. Please contact the selling agent or developer directly to obtain any information which may be available under the terms of The Energy Performance of Buildings (Certificates and Inspections) (England and Wales) Regulations 2007 or the Home Report if in relation to a residential property in Scotland.
*This is the average speed from the provider with the fastest broadband package available at this postcode. The average speed displayed is based on the download speeds of at least 50% of customers at peak time (8pm to 10pm). Fibre/cable services at the postcode are subject to availability and may differ between properties within a postcode. Speeds can be affected by a range of technical and environmental factors. The speed at the property may be lower than that listed above. You can check the estimated speed and confirm availability to a property prior to purchasing on the broadband provider's website. Providers may increase charges. The information is provided and maintained by Decision Technologies Limited. **This is indicative only and based on a 2-person household with multiple devices and simultaneous usage. Broadband performance is affected by multiple factors including number of occupants and devices, simultaneous usage, router range etc. For more information speak to your broadband provider.
Map data ©OpenStreetMap contributors.





