Headingley Road, Handsworth

- PROPERTY TYPE
Terraced
- BEDROOMS
3
- BATHROOMS
1
- SIZE
Ask agent
- TENUREDescribes how you own a property. There are different types of tenure - freehold, leasehold, and commonhold.Read more about tenure in our glossary page.
Freehold
Key features
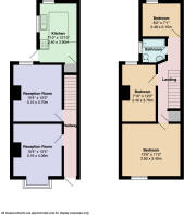
- Well Presented Mid Terrace Residence
- Three Well Proportioned Bedrooms, Accompanied By A Family Bathroom
- Two Reception Rooms
- Reception Hallway
- Fitted Kitchen
- Front & Rear Gardens
- No Upwards Chain
- Council Tax Band A
- EPC Rating D
Description
Upstairs, the first floor comprises three well-proportioned bedrooms and a family bathroom.
Outside, the property benefits from both front and rear gardens, providing outdoor space ideal for relaxation or family use. Offered with no upward chain, this home represents an excellent opportunity for first-time buyers or investors. Early viewing is highly recommended.
For Vendors:-
To ensure compliance with Anti-Money Laundering Regulations, and details of ownership of the property to be marketed we will pass your details on to our identification confirmation company - Coadjute - who will carry out the required checks. This is not a credit check. There is a charge of £45 inclusive of VAT per vendor, which is non-refundable. A record of this search will be retained by our search provider and by Henley Charles electronically, and or within the relevant property file. You also agree to provide us with any information or documents we request to meet this obligation. We can require sight of documentary proof of address, together with acceptable photographic ID, such as a passport or photo driving licence. We may use both of these methods to meet our obligation. Copies/records may be taken and held on file.
For Buyers:-
To ensure compliance with Anti-Money Laundering Regulations, we will pass your details on to our identification confirmation company Coadjute who will carry out the required checks. This is not a credit check. There is a charge of £45 inclusive of VAT per buyer, which is non-refundable. A record of this search will be retained by our search provider and by Henley Charles electronically, and or within the relevant property file. You also agree to provide us with any information or documents we request to meet this obligation. We may require sight of documentary proof of address, together with acceptable photographic ID, such as a passport or photo driving licence. We may use both of these methods to meet our obligation. Copies/records may be taken and held on file
- COUNCIL TAXA payment made to your local authority in order to pay for local services like schools, libraries, and refuse collection. The amount you pay depends on the value of the property.Read more about council Tax in our glossary page.
- Ask agent
- PARKINGDetails of how and where vehicles can be parked, and any associated costs.Read more about parking in our glossary page.
- Ask agent
- GARDENA property has access to an outdoor space, which could be private or shared.
- Yes
- ACCESSIBILITYHow a property has been adapted to meet the needs of vulnerable or disabled individuals.Read more about accessibility in our glossary page.
- Ask agent
Headingley Road, Handsworth
Add an important place to see how long it'd take to get there from our property listings.
__mins driving to your place
Get an instant, personalised result:
- Show sellers you’re serious
- Secure viewings faster with agents
- No impact on your credit score



Your mortgage
Notes
Staying secure when looking for property
Ensure you're up to date with our latest advice on how to avoid fraud or scams when looking for property online.
Visit our security centre to find out moreDisclaimer - Property reference 100592006556. The information displayed about this property comprises a property advertisement. Rightmove.co.uk makes no warranty as to the accuracy or completeness of the advertisement or any linked or associated information, and Rightmove has no control over the content. This property advertisement does not constitute property particulars. The information is provided and maintained by Henley Charles, Handsworth. Please contact the selling agent or developer directly to obtain any information which may be available under the terms of The Energy Performance of Buildings (Certificates and Inspections) (England and Wales) Regulations 2007 or the Home Report if in relation to a residential property in Scotland.
*This is the average speed from the provider with the fastest broadband package available at this postcode. The average speed displayed is based on the download speeds of at least 50% of customers at peak time (8pm to 10pm). Fibre/cable services at the postcode are subject to availability and may differ between properties within a postcode. Speeds can be affected by a range of technical and environmental factors. The speed at the property may be lower than that listed above. You can check the estimated speed and confirm availability to a property prior to purchasing on the broadband provider's website. Providers may increase charges. The information is provided and maintained by Decision Technologies Limited. **This is indicative only and based on a 2-person household with multiple devices and simultaneous usage. Broadband performance is affected by multiple factors including number of occupants and devices, simultaneous usage, router range etc. For more information speak to your broadband provider.
Map data ©OpenStreetMap contributors.





