3 bedroom house for sale
Raleigh Road, Newton Abbot

- PROPERTY TYPE
House
- BEDROOMS
3
- BATHROOMS
2
- SIZE
Ask agent
- TENUREDescribes how you own a property. There are different types of tenure - freehold, leasehold, and commonhold.Read more about tenure in our glossary page.
Freehold
Key features
- End of terrace property
- Spacious living room
- Downstairs shower room
- Fitted kitchen
- Utility / Porch
- Three double bedrooms
- Bathroom
- Enclosed gardens with delightful views
- Off road parking
Description
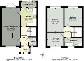
The accommodation begins with the entrance porch way with double glaze windows and door to front access to the entrance hallway from here you have access to a downstairs shower room with low level flush WC pedestal wash handbasin with storage beneath and electric fitted shower pot tiled walls obscured double glazed window to front From the entrance hallway access is found to the spacious living dining room which features double glaze windows to front overlooking far reaching views across Newton Abbot towards the moor, a wall mounted gas fireplace double glazed double doors onto rear garden and internal door to kitchen the kitchen is a modern fitted kitchen comprising range of matching wall and base level units with mixer tap sink and drainer induction hob with extraction hood and light above oven with space for fridge freezer and Dishwasher internal double glazed window to rear and double glazed door which leads to the rear porch/utility space this is a useful area with space and plumbing for washing machine or tumble dryer with double glaze sliding doors onto garden from the entrance hallway stairs rise to A first floor landing and from here you have access to the three double bedrooms all of which feature double glazed windows the bedroom to the front enjoys the pleasant views, One of the bedroom features a loft hatch with pull down ladder.
from the landing space you have access to the family bathroom suite comprising low level flush WC pedestal wash handbasin in panel bath with part tiled walls of school double glaze window to front and useful storage cupboard situated above staircase externally the property features enclosed gardens to the rear you have a large patio leading out from the lounge diner steps rising through the garden passing a number of level off areas ideal for outside dining or entertaining also useful storage space at the top of the garden you have a off-road parking space enclosed by double gates which is accessed to the rear of the property from the garden you enjoy fantastic for far reaching views towards the moor
Brochures
Property BrochureFull Details- COUNCIL TAXA payment made to your local authority in order to pay for local services like schools, libraries, and refuse collection. The amount you pay depends on the value of the property.Read more about council Tax in our glossary page.
- Ask agent
- PARKINGDetails of how and where vehicles can be parked, and any associated costs.Read more about parking in our glossary page.
- Yes
- GARDENA property has access to an outdoor space, which could be private or shared.
- Yes
- ACCESSIBILITYHow a property has been adapted to meet the needs of vulnerable or disabled individuals.Read more about accessibility in our glossary page.
- Ask agent
Energy performance certificate - ask agent
Raleigh Road, Newton Abbot
Add an important place to see how long it'd take to get there from our property listings.
__mins driving to your place
Get an instant, personalised result:
- Show sellers you’re serious
- Secure viewings faster with agents
- No impact on your credit score
Your mortgage
Notes
Staying secure when looking for property
Ensure you're up to date with our latest advice on how to avoid fraud or scams when looking for property online.
Visit our security centre to find out moreDisclaimer - Property reference 12775382. The information displayed about this property comprises a property advertisement. Rightmove.co.uk makes no warranty as to the accuracy or completeness of the advertisement or any linked or associated information, and Rightmove has no control over the content. This property advertisement does not constitute property particulars. The information is provided and maintained by Allsworth Property, Newton Abbot. Please contact the selling agent or developer directly to obtain any information which may be available under the terms of The Energy Performance of Buildings (Certificates and Inspections) (England and Wales) Regulations 2007 or the Home Report if in relation to a residential property in Scotland.
*This is the average speed from the provider with the fastest broadband package available at this postcode. The average speed displayed is based on the download speeds of at least 50% of customers at peak time (8pm to 10pm). Fibre/cable services at the postcode are subject to availability and may differ between properties within a postcode. Speeds can be affected by a range of technical and environmental factors. The speed at the property may be lower than that listed above. You can check the estimated speed and confirm availability to a property prior to purchasing on the broadband provider's website. Providers may increase charges. The information is provided and maintained by Decision Technologies Limited. **This is indicative only and based on a 2-person household with multiple devices and simultaneous usage. Broadband performance is affected by multiple factors including number of occupants and devices, simultaneous usage, router range etc. For more information speak to your broadband provider.
Map data ©OpenStreetMap contributors.






