Sawmill Lane, Wragby, Market Rasen, Lincolnshire, LN8

- PROPERTY TYPE
Terraced
- BEDROOMS
2
- BATHROOMS
1
- SIZE
Ask agent
- TENUREDescribes how you own a property. There are different types of tenure - freehold, leasehold, and commonhold.Read more about tenure in our glossary page.
Freehold
Key features
- For Sale Via Modern Method of Auction
- Subject to Reserve Price
- Spacious Mid-Terraced Home
- Two Double Bedrooms
- In Need of Modernisations
- EPC Grade TBC
- West Lindsey District Council - Tax Band B
- Garden and Allocated Parking
- No Onward Chain
Description
2-Bed Mid-Terraced Home | Off-Street Parking | Investment Opportunity | First Time Buy Opportunity
Welcome to 11 Sawmill Lane, Wragby – This spacious two double bedroom mid-terrace home is positioned in the heart of Wragby Village within close proximity t a wealth of amenities. A deceptively spacious home which is in need of modernisation throughout but has the potential to be a fantastic first time buy or addition to an investment portfolio.
Offered with no onward chain, the property is available via the Modern Method of Auction, making it an accessible opportunity for buyers looking to act quickly.
Don’t miss this superb opportunity to secure a fantastic first time buyer home or investment. This well sized and well positioned two double bedroom home wont stick around!!
Contact us today to arrange a viewing or for more details on the auction process.
Freehold/West Lindsey District Council-Band B/EPC Grade TBC
IMPORTANT NOTE TO POTENTIAL PURCHASERS & TENANTS:
We endeavour to make our particulars accurate and reliable, however, they do not constitute or form part of an offer or any contract and none is to be relied upon as statements of representation or fact. The services, systems and appliances listed in this specification have not been tested by us and no guarantee as to their operating ability or efficiency is given. All photographs and measurements have been taken as a guide only and are not precise. Floor plans where included are not to scale and accuracy is not guaranteed. If you require clarification or further information on any points, please contact us, especially if you are traveling some distance to view. POTENTIAL PURCHASERS: Fixtures and fittings other than those mentioned are to be agreed with the seller. POTENTIAL TENANTS: All properties are available for a minimum length of time, with the exception of short term accommodation. Please contact the branch for details. A security deposit of at least one month’s rent is required. Rent is to be paid one month in advance. It is the tenant’s responsibility to insure any personal possessions. Payment of all utilities including water rates or metered supply and Council Tax is the responsibility of the tenant in most cases.
LIN250730/2
Auction Terms
This property is for sale by the Modern Method of Auction, meaning the buyer and seller are to Complete within 56 days (the "Reservation Period"). Interested parties personal data will be shared with the Auctioneer (iamsold). If considering buying with a mortgage, inspect and consider the property carefully with your lender before bidding. A Buyer Information Pack is provided. The winning bidder will pay £349.00 including VAT for this pack which you must view before bidding. The buyer signs a Reservation Agreement and makes payment of a non-refundable Reservation Fee of 4.5% of the purchase price including VAT, subject to a minimum of £6,600.00 including VAT. This is paid to reserve the property to the buyer during the Reservation Period and is paid in addition to the purchase price. This is considered within calculations for Stamp Duty Land Tax. Services may be recommended by the Agent or Auctioneer in which they will receive payment from the service provider if the (truncated)
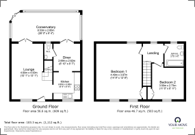
Lounge
4m x 4.6m
Spacious and airy lounge comprising carpet flooring, radiator, television aerial point, double glazed window to the front aspect, uPVC double glazed French doors to the rear aspect, electric fire and surround and ascending carpet stairs to the first floor landing.
Kitchen
2.68m x 2.65m
Fitted kitchen comprising a range of wall and base units with contrasting work surfaces, space and plumbing for a washing machine, integral oven with a four ring electric hob and extractor hood, archway to the dining room, sink and drainer unit and a double glazed window to the front aspect.
Dining Room
2.62m x 2.69m
With carpet flooring, radiator, access to the WC and uPVC double glazed French doors to the rear aspect leading to the conservatory.
WC
With a low level WC, wall mounted wash hand basin, fully tiled walls, fitted wall unit and a double glazed window to the rear aspect.
Conservatory
2.851m x 5.36m
Fantastic additional space comprising tiled flooring, electric heaters, fan light, double glazed windows to the side and rear aspects with fitted blinds and uPVC double glazed French doors to the rear aspect with fitted blinds.
Landing
Comprising carpet flooring and a double glazed window to the rear aspect.
Bedroom 1
3.87m x 4.49m
Spacious master bedroom comprising carpet flooring, radiator, loft access, fitted wardrobe, two freestanding wardrobes, double glazed window to the rear aspect and two double glazed windows to the front aspect.
Bedroom 2
3.5m x 2.73m
Double bedroom comprising carpet flooring, radiator, fitted wardrobe, airing cupboard, free standing wardrobe and a double glazed window to the front aspect.
Bathroom
1.78m x 1.33m
Comprising a panelled bath with overhead shower, low level WC, pedestal wash hand basin, radiator, fully tiled walls and a double glazed window to the rear aspect.
Parking
There are two allocated parking spaces, positioned to the front aspect of the property.
Gardens
Tenure
Freehold East Lindsey District Council Tax Band B
Brochures
Web DetailsFull Brochure PDF- COUNCIL TAXA payment made to your local authority in order to pay for local services like schools, libraries, and refuse collection. The amount you pay depends on the value of the property.Read more about council Tax in our glossary page.
- Band: B
- PARKINGDetails of how and where vehicles can be parked, and any associated costs.Read more about parking in our glossary page.
- Yes
- GARDENA property has access to an outdoor space, which could be private or shared.
- Yes
- ACCESSIBILITYHow a property has been adapted to meet the needs of vulnerable or disabled individuals.Read more about accessibility in our glossary page.
- Ask agent
Energy performance certificate - ask agent
Sawmill Lane, Wragby, Market Rasen, Lincolnshire, LN8
Add an important place to see how long it'd take to get there from our property listings.
__mins driving to your place
Get an instant, personalised result:
- Show sellers you’re serious
- Secure viewings faster with agents
- No impact on your credit score
Your mortgage
Notes
Staying secure when looking for property
Ensure you're up to date with our latest advice on how to avoid fraud or scams when looking for property online.
Visit our security centre to find out moreDisclaimer - Property reference LIN250730. The information displayed about this property comprises a property advertisement. Rightmove.co.uk makes no warranty as to the accuracy or completeness of the advertisement or any linked or associated information, and Rightmove has no control over the content. This property advertisement does not constitute property particulars. The information is provided and maintained by Your Move, Lincoln. Please contact the selling agent or developer directly to obtain any information which may be available under the terms of The Energy Performance of Buildings (Certificates and Inspections) (England and Wales) Regulations 2007 or the Home Report if in relation to a residential property in Scotland.
Auction Fees: The purchase of this property may include associated fees not listed here, as it is to be sold via auction. To find out more about the fees associated with this property please call Your Move, Lincoln on 020 3873 9734.
*Guide Price: An indication of a seller's minimum expectation at auction and given as a Guide Price or a range of Guide Prices. This is not necessarily the figure a property will sell for and is subject to change prior to the auction.
Reserve Price: Each auction property will be subject to a Reserve Price below which the property cannot be sold at auction. Normally the Reserve Price will be set within the range of Guide Prices or no more than 10% above a single Guide Price.
*This is the average speed from the provider with the fastest broadband package available at this postcode. The average speed displayed is based on the download speeds of at least 50% of customers at peak time (8pm to 10pm). Fibre/cable services at the postcode are subject to availability and may differ between properties within a postcode. Speeds can be affected by a range of technical and environmental factors. The speed at the property may be lower than that listed above. You can check the estimated speed and confirm availability to a property prior to purchasing on the broadband provider's website. Providers may increase charges. The information is provided and maintained by Decision Technologies Limited. **This is indicative only and based on a 2-person household with multiple devices and simultaneous usage. Broadband performance is affected by multiple factors including number of occupants and devices, simultaneous usage, router range etc. For more information speak to your broadband provider.
Map data ©OpenStreetMap contributors.







