
Nile Road, Gorleston, Great Yarmouth

- PROPERTY TYPE
End of Terrace
- BEDROOMS
3
- BATHROOMS
1
- SIZE
1,237 sq ft
115 sq m
- TENUREDescribes how you own a property. There are different types of tenure - freehold, leasehold, and commonhold.Read more about tenure in our glossary page.
Freehold
Key features
- End-Of-Terrace House
- Over 1200 Sq. Ft Of Accommodation (stms)
- Bright & Airy Living Spaces With Three Reception Rooms
- Spacious 23' Sitting Room
- Three Bedrooms
- Four Piece Family Bathroom
- Low-Maintenance Rear Garden
- Short Walk To Beach & Sea
Description
IN SUMMARY
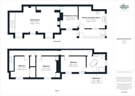
Situated just a short walk to the golden sands of the Blue flag Gorleston-On-Sea beach is this incredibly SPACIOUS DOUBLE FRONTED END-OF-TERRACE HOUSE offering generous spaces with many CHARACTER FEATURES throughout benefitting from historic EXTENSIONS. The main living spaces comes in the form of a 23’ SITTING ROOM with separate DINING ROOM/SNUG sat just next door alongside the open KITCHEN/BREAKFAST ROOM. Found all off from one central landing are THREE BEDROOMS as well as a FOUR PIECE family bathroom suite accessed from the third double bedroom as well as the hallway. Externally, the front and rear gardens are both LOW-MAINTENANCE yet attractively positioned with colourful planting spaces.
SETTING THE SCENE
The property is set back from the street with a low level brick wall giving way to a timber swinging gate which leads you directly into the front garden which is all laid in a low maintenance manner with the ability to add colour and vibrancy with planting bed options.
THE GRAND TOUR
Stepping inside you are first met with a conservatory space ideal to be used as a porch with the ability to slip off coats and shoes before heading into the property or taking you directly into the rear garden. Also once inside the kitchen is the first living space that will greet you. This large open floor space leaves ample room for a wide range of wall and base mounted storage units which in turn give way to an integrated oven and hob with extraction above whilst leaving room for additional appliances and a breakfast or dining table. Through from here is a separate dining area - this space could be versatile in its use either as a snug sitting room or potential home office with front facing uPVC double glazed window. Flowing again from this space is the brilliantly open plan 23’ sitting room complete with multiple front facing windows allowing natural light to fill every corner of this room. The solid wooden floorboards leave more than enough space for a formal sitting room suite and potential dining room suite ideal for busy families with the large open space being conducive to a potential choice of soft furnishings and layouts.
The first floor landing reaches all the way down to grant you access to all living accommodation on the first floor. Three bedrooms in total can be found as well as the four piece main bathroom suites complete with large corner shower unit and freestanding roll top bath, modern wall mounted radiator and frosted glass window to the outside. This space can be accessed from both the main bedroom and the hallway. The first bedroom comes at the top of the stairs with built in storage and all carpeted flooring, this space could easily accommodate a double bed. Similarly to the room next door, slightly larger in size with two built in wardrobes, this space had currently been used as a workspace and studio however would easily accommodate a large double bed. The final bedroom on the hallway again sits just next to the main bathroom with wall to wall built in storage and floor space yet again leaving more than enough room for a double bed with all carpeted flooring and direct access to the main bathroom.
FIND US
Postcode : NR31 6AS
What3Words : ///choppers.wildfires.stored
VIRTUAL TOUR
View our virtual tour for a full 360 degree of the interior of the property.
EPC Rating: C
Garden
THE GREAT OUTDOORS
The rear garden is offered in an attractive yet low maintenance condition made private with all timber fencing and brick walls surrounding the private space. There's a perfectly positioned garden patio seating area to make the most of the summer sunshine whilst colourful planting beds allow for those more green fingered individuals to enjoy their garden with a side access gate.
Disclaimer
Anti-Money Laundering (AML) Fee Statement
To comply with HMRC's regulations on Anti-Money Laundering (AML), we are legally required to conduct AML checks on every purchaser once a sale is agreed. We use a government-approved electronic identity verification service to ensure compliance, accuracy, and security. This is approved by the Government as part of the Digital Identity and Attributes Trust Framework (DIATF). The cost of anti-money laundering (AML) checks are £25 including VAT per person, payable in advance after an offer has been accepted. This fee is mandatory to comply with HMRC regulations and must be paid before a memorandum of sale can be issued. Please note that the fee is non-refundable.
Brochures
Property Brochure- COUNCIL TAXA payment made to your local authority in order to pay for local services like schools, libraries, and refuse collection. The amount you pay depends on the value of the property.Read more about council Tax in our glossary page.
- Band: B
- PARKINGDetails of how and where vehicles can be parked, and any associated costs.Read more about parking in our glossary page.
- Ask agent
- GARDENA property has access to an outdoor space, which could be private or shared.
- Private garden
- ACCESSIBILITYHow a property has been adapted to meet the needs of vulnerable or disabled individuals.Read more about accessibility in our glossary page.
- Ask agent
Nile Road, Gorleston, Great Yarmouth
Add an important place to see how long it'd take to get there from our property listings.
__mins driving to your place
Get an instant, personalised result:
- Show sellers you’re serious
- Secure viewings faster with agents
- No impact on your credit score
Your mortgage
Notes
Staying secure when looking for property
Ensure you're up to date with our latest advice on how to avoid fraud or scams when looking for property online.
Visit our security centre to find out moreDisclaimer - Property reference 239da514-be3e-4503-905e-5a4db083e988. The information displayed about this property comprises a property advertisement. Rightmove.co.uk makes no warranty as to the accuracy or completeness of the advertisement or any linked or associated information, and Rightmove has no control over the content. This property advertisement does not constitute property particulars. The information is provided and maintained by Starkings & Watson, Norfolk & Suffolk. Please contact the selling agent or developer directly to obtain any information which may be available under the terms of The Energy Performance of Buildings (Certificates and Inspections) (England and Wales) Regulations 2007 or the Home Report if in relation to a residential property in Scotland.
*This is the average speed from the provider with the fastest broadband package available at this postcode. The average speed displayed is based on the download speeds of at least 50% of customers at peak time (8pm to 10pm). Fibre/cable services at the postcode are subject to availability and may differ between properties within a postcode. Speeds can be affected by a range of technical and environmental factors. The speed at the property may be lower than that listed above. You can check the estimated speed and confirm availability to a property prior to purchasing on the broadband provider's website. Providers may increase charges. The information is provided and maintained by Decision Technologies Limited. **This is indicative only and based on a 2-person household with multiple devices and simultaneous usage. Broadband performance is affected by multiple factors including number of occupants and devices, simultaneous usage, router range etc. For more information speak to your broadband provider.
Map data ©OpenStreetMap contributors.





