
Kettlethorpe Road, Laughterton, Lincoln
- PROPERTY TYPE
Land
- SIZE
18,731 sq ft
1,740 sq m
Key features
- Barn For Residential Conversion
- Planning in Principal Granted
- Footprint 42 ft x 20 ft
- Substantial Brick/Pantile Outbuilding
- Plot 0.43 Acre (0.174 Ha) Or Thereabouts
- Attractive Village Location
- Lincoln 10 Miles / Newark 15 Miles
Description
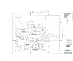
A substantial brick built former farm building with steel portal frame, and Planning in Principal for conversion to a dwelling. The building has a footprint of 42 ft x 20 ft, land extending to 0.43 acre or thereabouts. Access is by right of way from the existing driveway and the property is outlined on the attached plan.
Laughterton is a small village located in the county of Lincolnshire and surrounded by beautiful countryside. The village has a rich history dating back to the Roman times, and there are many historic buildings and landmarks in the area. A central part of the village is St Paul's Church, which dates back to the 12th Century and is described as an example of Norman architecture. Local amenities in Laughterton include The Friendship Inn and a village hall. There is an excellent primary school in the nearby village of Newton on Trent. Millfield Golf Club is situated on the outskirts of the village. The village lies approximately 15 miles north of Newark, 5 miles from Gainsborough and 10 miles from Lincoln. The village is situated on the A1133 just north of the A57 junction at Newton on Trent. Access points to the A1 trunk road are accessible from the A57 at Markham Moor. Indeed, a pleasant village and convenient location for commuting to these centres.
The property has 19th Century characteristics and is traditionally built with brick elevations under a tiled roof. The chimney stacks were recently rebuilt. Lime plaster floors upstairs. Mains drainage is connected.
The property provides the following accommodation:
The Barn - 12.80m x 6.10m (42' x 20') - Height to eaves 13'6.
Brick And Pantile Shed - 5.49m x 3.35m (18' x 11') -
Outside - Extensive roadside frontage area and land to the rear of the building.
Town & Country Planning - Planning in Principal is granted by West Lindsay District Council for conversion of the existing building to 1 dwelling. The Planning Reference is WL/2025/00646 and the Permission is dated 22nd July 2025. The site must receive a Grant of Technical Details Consent before development can proceed and the Technical Details Consent shall be submitted within 3 years of the date of the Decision Notice.
A copy of the Planning Permission, supporting details and Flood Risk Assessment can be viewed on the West Lindsay District Council Planning Portal or obtained on request from Richard Watkinson & Partners.
Services - Mains water, electricity, and drainage are understood to be available, but purchasers should make their own enquiries on the technical details for connection.
Access - Access is by right of way. There shall be a 50% maintenance share on the driveway with Home Farm Cottage.
Tenure - The property is freehold.
Covenant - The property will be sold subject to a covenant restricting the use as a single dwelling.
Possession - Vacant possession will be given on completion.
Viewing - Strictly by appointment with the selling agents.
Brochures
Kettlethorpe Road, Laughterton, LincolnKettlethorpe Road, Laughterton, Lincoln
NEAREST STATIONS
Distances are straight line measurements from the centre of the postcode- Saxilby Station2.9 miles
Notes
Disclaimer - Property reference 34330685. The information displayed about this property comprises a property advertisement. Rightmove.co.uk makes no warranty as to the accuracy or completeness of the advertisement or any linked or associated information, and Rightmove has no control over the content. This property advertisement does not constitute property particulars. The information is provided and maintained by Richard Watkinson & Partners, Newark. Please contact the selling agent or developer directly to obtain any information which may be available under the terms of The Energy Performance of Buildings (Certificates and Inspections) (England and Wales) Regulations 2007 or the Home Report if in relation to a residential property in Scotland.
Map data ©OpenStreetMap contributors.









