
3 bedroom end of terrace house for sale
Victoria Street, Perth, PH2

- PROPERTY TYPE
End of Terrace
- BEDROOMS
3
- BATHROOMS
1
- SIZE
1,141 sq ft
106 sq m
- TENUREDescribes how you own a property. There are different types of tenure - freehold, leasehold, and commonhold.Read more about tenure in our glossary page.
Freehold
Key features
- Attractive end-terraced two-storey townhouse
- Living room enjoys excellent natural light and provides a relaxed space for everyday living
- Well-sized kitchen
- Family bathroom
- Three well-proportioned bedrooms
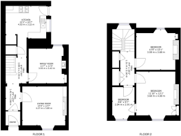
Description
This attractive end-terraced two-storey townhouse offers spacious, well-arranged accommodation and an exceptionally convenient setting within Perth city centre. Ideally suited to families, professionals, or investors, the property combines generous room sizes with easy access to local amenities.
Upon entering, a welcoming entrance vestibule leads into a bright hallway, setting the tone for the home’s comfortable proportions. The living room enjoys excellent natural light and provides a relaxed space for everyday living. Adjacent is a separate family room, perfect for family gatherings or entertaining guests, while the well-sized kitchen offers ample storage and worktop space, with scope for modernisation to suit individual tastes.
From the hallway, a half-landing leads to a family bathroom, positioned for convenience for both ground and first-floor use. The upper floor comprises three well-proportioned bedrooms, each offering flexible use as sleeping accommodation, guest rooms, or home office space.
Externally, the property benefits from its end-terrace position, providing additional privacy and the potential for more natural light throughout.
Situated in the vibrant city centre, the townhouse is surrounded by a mix of residential and commercial properties, creating a lively and well-connected environment. A wide range of shops, cafés, restaurants, schools, and public transport links are all within comfortable walking distance, offering excellent convenience for daily living.
This property presents an exciting opportunity to secure a spacious home in a highly accessible location, with plenty of potential to enhance and personalise.
EPC Rating: D
- COUNCIL TAXA payment made to your local authority in order to pay for local services like schools, libraries, and refuse collection. The amount you pay depends on the value of the property.Read more about council Tax in our glossary page.
- Band: D
- PARKINGDetails of how and where vehicles can be parked, and any associated costs.Read more about parking in our glossary page.
- Ask agent
- GARDENA property has access to an outdoor space, which could be private or shared.
- Ask agent
- ACCESSIBILITYHow a property has been adapted to meet the needs of vulnerable or disabled individuals.Read more about accessibility in our glossary page.
- Ask agent
Energy performance certificate - ask agent
Victoria Street, Perth, PH2
Add an important place to see how long it'd take to get there from our property listings.
__mins driving to your place
Get an instant, personalised result:
- Show sellers you’re serious
- Secure viewings faster with agents
- No impact on your credit score
Your mortgage
Notes
Staying secure when looking for property
Ensure you're up to date with our latest advice on how to avoid fraud or scams when looking for property online.
Visit our security centre to find out moreDisclaimer - Property reference 5f47c985-a540-4d82-b2ec-98a0a557a9bd. The information displayed about this property comprises a property advertisement. Rightmove.co.uk makes no warranty as to the accuracy or completeness of the advertisement or any linked or associated information, and Rightmove has no control over the content. This property advertisement does not constitute property particulars. The information is provided and maintained by Clyde Property, Perth. Please contact the selling agent or developer directly to obtain any information which may be available under the terms of The Energy Performance of Buildings (Certificates and Inspections) (England and Wales) Regulations 2007 or the Home Report if in relation to a residential property in Scotland.
*This is the average speed from the provider with the fastest broadband package available at this postcode. The average speed displayed is based on the download speeds of at least 50% of customers at peak time (8pm to 10pm). Fibre/cable services at the postcode are subject to availability and may differ between properties within a postcode. Speeds can be affected by a range of technical and environmental factors. The speed at the property may be lower than that listed above. You can check the estimated speed and confirm availability to a property prior to purchasing on the broadband provider's website. Providers may increase charges. The information is provided and maintained by Decision Technologies Limited. **This is indicative only and based on a 2-person household with multiple devices and simultaneous usage. Broadband performance is affected by multiple factors including number of occupants and devices, simultaneous usage, router range etc. For more information speak to your broadband provider.
Map data ©OpenStreetMap contributors.






