Apulia, Lecce, Spongano, Italy
- PROPERTY TYPE
Detached
- BEDROOMS
2
- BATHROOMS
2
- SIZE
1,507 sq ft
140 sq m
Key features
- 4 Rooms
- Terrace 15 m²
- TV aerial Autonomous
- SAT TV Autonomous
- Fireplace
- Conditioned air
- Shower
- Wooden frames
Description
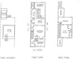
In the heart of Salento, we offer for sale a traditional independent house for sale of about 130 sqm. This property is arranged over two levels and features a private garden, a panoramic terrace and a cellar.
Although completely renovated, the property still boasts the traditional architectural features typical of the local area, such as high ceilings, star and barrel vaults, and Lecce stone details that enhance the authentic charm of all rooms.
A charming front courtyard with a useful storage room leads to the ground floor, consisting of a welcoming living room and a spacious kitchen with an antique fireplace. From here, you can access the lovely rear garden, which measures about 35 sqm and has a second storage/laundry room. The ground floor is completed by a bedroom.
An external staircase leads to the first floor, where there is a charming, panoramic terrace of approximately 15 sqm with views of the rear of the property. This is a privileged place to enjoy the beautiful views of the village, its gardens and the typical Salento atmosphere. From the terrace, you can access a second bedroom with an en-suite bathroom. This room has an independent entrance, allowing for completely autonomous use — perfect for hosting guests privately or renting it out to tourists.
Finally, on the basement level, there is a 12 sqm cellar with a barrel vault, which is accessible from the entrance courtyard.
This property is an excellent opportunity for those seeking a ready-to-move-in home that can easily be personalised and is located in a Salento village that is rich in history and tradition. Added to this is the convenience of being just a few kilometres from the sea, making this residence ideal as both a main home and a high-end tourist rental investment.
Spongano is only 7 km from Castro, known as the 'Pearl of Salento', 40 km from Lecce and 94 km from Brindisi Airport.
Apulia, Lecce, Spongano, Italy
NEAREST AIRPORTS
Distances are straight line measurements- Brindisi - Salento(International)49.6 miles
Advice on buying Italian property
Learn everything you need to know to successfully find and buy a property in Italy.
Notes
This is a property advertisement provided and maintained by Coldwell Banker Gruppo Bodini, Italia (reference 280856_186172901001743) and does not constitute property particulars. Whilst we require advertisers to act with best practice and provide accurate information, we can only publish advertisements in good faith and have not verified any claims or statements or inspected any of the properties, locations or opportunities promoted. Rightmove does not own or control and is not responsible for the properties, opportunities, website content, products or services provided or promoted by third parties and makes no warranties or representations as to the accuracy, completeness, legality, performance or suitability of any of the foregoing. We therefore accept no liability arising from any reliance made by any reader or person to whom this information is made available to. You must perform your own research and seek independent professional advice before making any decision to purchase or invest in overseas property.





