
4 bedroom detached house for sale
Exeter, Devon

- PROPERTY TYPE
Detached
- BEDROOMS
4
- BATHROOMS
4
- SIZE
2,497 sq ft
232 sq m
- TENUREDescribes how you own a property. There are different types of tenure - freehold, leasehold, and commonhold.Read more about tenure in our glossary page.
Freehold
Key features
- Sought After Village Location
- High Specification Finishes
- Mechanical Ventilation Heat Recovery (MVHR)
- Underfloor Heating
- Sleek Designer Kitchen
- Garage and Driveway
- Landscaped South Facing Garden
- No Onward Chain
Description
Please note, this property is a Discreet Listing. The map pin and postcode denote the location of our Exeter Office, not the subject property. For further details please contact us quote “NHDW” for more information.
Situation
Please note, this property is a Discreet Listing. The map pin and postcode denote the location of our Exeter Office, not the subject property. For further details please contact us quote “NHDW” for more information.
Directions
Please note, this property is a Discreet Listing. The map pin and postcode denote the location of our Exeter Office, not the subject property. For further details please contact us quote “NHDW” for more information.
GROUND FLOOR
Sitting Room
5.62m x 5.62m
Kitchen/Dining/Living
8.13m x 4.53m
Study
3.49m x 2.85m
Utility Room
3.49m x 2.12
FIRST FLOOR
Principal Bedroom
4.53m x 3.68m
Dressing Area
2.62m x 2.62m
En Suite
2.62m x 1.85m
Bedroom 2
3.75m x 3.49m
Bathroom
2.54m x 2.29m
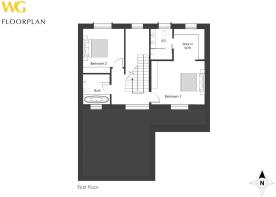
SECOND FLOOR
Bedroom 3
5.6m x 3.49m
Bedroom 4
4.96m x 3.22m
Bathroom
3.31m x 2.1m
AGENTS NOTE
The vendors advises £250 per annum to the private Management Company who maintain the communal area and the private road which is owned by the residents.
SERVICES
The vendor has advised the following: wet system underfloor heating throughout. Mains electricity, water and drainage. Broadband connected. Estimated download speed - Standard: 4Mbps Superfast: 64Mbps Ultrafast: 1000 Mbps. Mobile signal: Several networks currently showing as available at the property. Council Tax Band: F. Local Authority East Devon.
- COUNCIL TAXA payment made to your local authority in order to pay for local services like schools, libraries, and refuse collection. The amount you pay depends on the value of the property.Read more about council Tax in our glossary page.
- Band: F
- PARKINGDetails of how and where vehicles can be parked, and any associated costs.Read more about parking in our glossary page.
- Yes
- GARDENA property has access to an outdoor space, which could be private or shared.
- Yes
- ACCESSIBILITYHow a property has been adapted to meet the needs of vulnerable or disabled individuals.Read more about accessibility in our glossary page.
- Ask agent
Exeter, Devon
Add an important place to see how long it'd take to get there from our property listings.
__mins driving to your place
Get an instant, personalised result:
- Show sellers you’re serious
- Secure viewings faster with agents
- No impact on your credit score


Your mortgage
Notes
Staying secure when looking for property
Ensure you're up to date with our latest advice on how to avoid fraud or scams when looking for property online.
Visit our security centre to find out moreDisclaimer - Property reference NEW250298. The information displayed about this property comprises a property advertisement. Rightmove.co.uk makes no warranty as to the accuracy or completeness of the advertisement or any linked or associated information, and Rightmove has no control over the content. This property advertisement does not constitute property particulars. The information is provided and maintained by Wilkinson Grant & Co, New Homes. Please contact the selling agent or developer directly to obtain any information which may be available under the terms of The Energy Performance of Buildings (Certificates and Inspections) (England and Wales) Regulations 2007 or the Home Report if in relation to a residential property in Scotland.
*This is the average speed from the provider with the fastest broadband package available at this postcode. The average speed displayed is based on the download speeds of at least 50% of customers at peak time (8pm to 10pm). Fibre/cable services at the postcode are subject to availability and may differ between properties within a postcode. Speeds can be affected by a range of technical and environmental factors. The speed at the property may be lower than that listed above. You can check the estimated speed and confirm availability to a property prior to purchasing on the broadband provider's website. Providers may increase charges. The information is provided and maintained by Decision Technologies Limited. **This is indicative only and based on a 2-person household with multiple devices and simultaneous usage. Broadband performance is affected by multiple factors including number of occupants and devices, simultaneous usage, router range etc. For more information speak to your broadband provider.
Map data ©OpenStreetMap contributors.






