
2 bedroom terraced house for sale
Coriander Drive, Bradley Stoke

- PROPERTY TYPE
Terraced
- BEDROOMS
2
- BATHROOMS
2
- SIZE
689 sq ft
64 sq m
- TENUREDescribes how you own a property. There are different types of tenure - freehold, leasehold, and commonhold.Read more about tenure in our glossary page.
Freehold
Key features
- Mid Terrace House
- Two Double Bedrooms
- Kitchen
- Lounge/Dining Room
- Cloakroom
- Family Bathroom
- Enclosed Rear Garden
- Off Street Parking
- Popular Cul-De-Sac Location
- No Onward Chain
Description
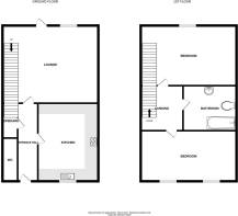
Entrance Hall - Built in storage cupboard, radiator, textured ceiling.
Cloakroom - Low level w.c., radiator, vanity wash hand basin, tiled splash-back, extractor, textured ceiling.
Kitchen - 2.41m x 1.98m (7'11 x 6'6) - Double glazed window to the front, fitted with a range of wall and base units with roll edge work-surfaces over, tiled splash-back, stainless steel single drainer sink unit with mixer tap over, space for fridge/freezer, built in electric oven and gas hob with extractor over,textured ceiling, wall mounted boiler, space for washing machine.
Lounge/Dining Room - 4.57m x 3.81m (15' x 12'6) - Double glazed door to the rear, double glazed window to the rear, stairs rising to the first floor landing, two radiators, textured ceiling, television point.
Landing - Textured ceiling, access to the loft space.
Bedroom One - 3.81m x 2.44m (12'6 x 8) - Two double glazed windows to the front, radiator, textured ceiling.
Bedroom Two - 3.81m x 2.54m (12'6 x 8'4) - Double glazed window to the rear, radiator, textured ceiling, built in storage cupboard.
Bathroom - Panelled bath with shower over, low level w.c., vanity wash hand basin, tiled splash-backs, radiator, extractor, textured ceiling.
Rear Garden - Paved patio area, lawned area, enclosed by fencing.
Front - Tarmac area providing off street parking, outside storage cupboard.
Brochures
Coriander Drive, Bradley Stoke- COUNCIL TAXA payment made to your local authority in order to pay for local services like schools, libraries, and refuse collection. The amount you pay depends on the value of the property.Read more about council Tax in our glossary page.
- Band: B
- PARKINGDetails of how and where vehicles can be parked, and any associated costs.Read more about parking in our glossary page.
- Yes
- GARDENA property has access to an outdoor space, which could be private or shared.
- Yes
- ACCESSIBILITYHow a property has been adapted to meet the needs of vulnerable or disabled individuals.Read more about accessibility in our glossary page.
- Ask agent
Coriander Drive, Bradley Stoke
Add an important place to see how long it'd take to get there from our property listings.
__mins driving to your place
Get an instant, personalised result:
- Show sellers you’re serious
- Secure viewings faster with agents
- No impact on your credit score
Your mortgage
Notes
Staying secure when looking for property
Ensure you're up to date with our latest advice on how to avoid fraud or scams when looking for property online.
Visit our security centre to find out moreDisclaimer - Property reference 34032652. The information displayed about this property comprises a property advertisement. Rightmove.co.uk makes no warranty as to the accuracy or completeness of the advertisement or any linked or associated information, and Rightmove has no control over the content. This property advertisement does not constitute property particulars. The information is provided and maintained by A J Homes, Winterbourne. Please contact the selling agent or developer directly to obtain any information which may be available under the terms of The Energy Performance of Buildings (Certificates and Inspections) (England and Wales) Regulations 2007 or the Home Report if in relation to a residential property in Scotland.
*This is the average speed from the provider with the fastest broadband package available at this postcode. The average speed displayed is based on the download speeds of at least 50% of customers at peak time (8pm to 10pm). Fibre/cable services at the postcode are subject to availability and may differ between properties within a postcode. Speeds can be affected by a range of technical and environmental factors. The speed at the property may be lower than that listed above. You can check the estimated speed and confirm availability to a property prior to purchasing on the broadband provider's website. Providers may increase charges. The information is provided and maintained by Decision Technologies Limited. **This is indicative only and based on a 2-person household with multiple devices and simultaneous usage. Broadband performance is affected by multiple factors including number of occupants and devices, simultaneous usage, router range etc. For more information speak to your broadband provider.
Map data ©OpenStreetMap contributors.








