2 bedroom park home for sale
Ranksborough Hall, Langham, Oakham, Rutland, LE15 7EL

- PROPERTY TYPE
Park Home
- BEDROOMS
2
- BATHROOMS
1
- SIZE
Ask agent
- TENUREDescribes how you own a property. There are different types of tenure - freehold, leasehold, and commonhold.Read more about tenure in our glossary page.
Ask agent
Key features
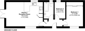
- Detached Park Home Bungalow
- Two Bedrooms(40'x13')
- Built in Wardrobes To Bedroom 1
- Open Plan Living Area
- Double Glazing
- Gas Central Heating
- Kitchen With Integrated Appliances
- Driveway and Garden
- Home Exchange Offered
- NO STAMP DUTY TO PAY
Description
THE HOME
Welcome to The Sonata, a charming and cosy Park Bungalow (40'x13') that is embellished with a stucco textured finish and elegant boxed-out windows with exterior feature cladding. The double-glazed UPVC windows and doors in white, complemented by exterior lights, create an inviting entrance, enhanced by a charming dormer.
As you step into The Sonata, you are greeted by the warm ambience of the lounge, featuring a vaulted ceiling and an electric fireplace, perfect for creating a tranquil and inviting atmosphere. The lounge is furnished with a comfortable sofa and armchairs, sill-length eyelet-style curtains, and a stylish coffee table. A TV socket and plush carpet flooring complete this delightful space, making it ideal for relaxation and entertainment.
The kitchen and dining area, with its vaulted ceilings and shaker-style units, offer a fulfilling space for culinary adventures. The oak effect worktops and dining table with chairs provide a perfect setting for meals and gatherings. The kitchen is equipped with a single built-in electric oven, a four-burner gas hob, and integrated appliances including a fridge/freezer, and washing machine, ensuring convenience and ease. The vinyl flooring adds a touch of practicality and elegance. The main bathroom invites you to relax and rejuvenate with its tranquil bath featuring grab rails, an extractor fan, a wall-mounted mirror, and a roller blind.
The primary bedroom is a haven of comfort, featuring a superior comfort double bed with a padded headboard, colour-coordinated curtains, and ample storage with fitted wardrobes, bedside tables. A dressing table with a stool and plush carpet flooring complete this serene retreat. The secondary bedroom, perfect for family or friends, includes a single bed, colour-coordinated curtains, a fitted wardrobe, and freestanding bedside cabinets.
Living in The Sonata is a fulfilling experience, enhanced by the low-maintenance garden and double driveway. This single-storey home offers the splendour of Regency Living, where you will be part of a close-knit community, fostering lasting friendships and enjoying local events. Your neighbours will become friends, creating memories you won’t find elsewhere.
Discover the rewarding lifestyle that awaits you in The Sonata. Book a viewing today to experience the charm and elegance of this beautiful Park Bungalow.
*Please note: Photos are for illustrative purposes only. Actual furnishings, finishes, and layout may vary.*
Book a viewing today to experience this exceptional Park Bungalow for yourself.
THE PARK
Spanning an expansive 60-acre estate in the quaint village of Langham, residents are welcomed into a warm, close-knit community, while enjoying effortless access to essential amenities and captivating local attractions.
Stroll through the picturesque village and unwind at one of the charming local pubs, or venture to the nearby retail park on the outskirts of Oakham for a variety of shopping options, including a supermarket catering to all your daily needs. For healthcare, a dentist and a doctor’s surgery are conveniently located just over a mile away, ensuring peace of mind.
This enchanting locale offers a wealth of leisure activities. Golf enthusiasts can tee off at renowned courses such as Rutland Water Golf Club, Greetham Valley, and Luffenham Heath. Nature lovers will delight in exploring Rutland Water, perfect for walking, sailing, paddleboarding, and cycling. The area is also rich in cultural and historical sites, with National Trust properties like Woolsthorpe Manor and Belton House, and magnificent Burghley House in nearby Stamford.
The vibrant local community hosts a variety of events throughout the year, from the Rutland Show, an agricultural extravaganza, to the prestigious Burghley Horse Trials and the charming open-air theatre at Tolethorpe Hall. Garden enthusiasts will enjoy the beauty of Barnsdale Gardens, while history buffs can explore Oakham Castle and the Anglian Water bird watching centre.
Ranksborough Hall is tailored for those seeking a peaceful yet engaging lifestyle. Whether you prefer low-maintenance living or an active community life, there is something here to cherish, with all the conveniences and attractions right at your doorstep. Seasonal festivities and local events further enrich the experience, fostering lasting bonds with fellow residents.
If you dream of a fulfilling life marked by peace, convenience, and endless discovery, Ranksborough Hall awaits as your perfect sanctuary. Contact us today to embark on a journey towards a vibrant and rewarding lifestyle amidst the serene beauty of Rutland.
Park features
Over 50's Residential Park
Popular Village Location
No stamp duty fee to pay
Pets Allowed
IMPORTANT PARK INFORMATION
Pets are allowed on the park (maximum of 2 dogs or 2 cats permitted).
The park has a minimum age restriction of 50 years.
The Service Charge for this home is approx. £230pcm. The service charge is reviewed annually in line with the Consumer Price Index (CPI).
Council tax is Band A
DO YOU HAVE A PROPERTY TO SELL?
Property Part-Exchange is available from our recommended part-exchange specialists, offering a hassle-free way to move, with no estate agent fees, and no need to wait for your home to sell. Please ask one of the team for more information.
TENURE: Leasehold In Perpetuity
This tenure means that when buying a park home, you purchase the property outright and lease the land it sits on in perpetuity, for the entirety of the time the home is sited. These properties are not mortgageable. We recommend any potential purchaser is aware of all details including park rules and conditions before sale completion. Please consult a solicitor for further information.
The information provided, whilst believed to be correct, do not form any part of an offer or contract. Intending purchasers should not rely on them as statements or representation of fact. No person in this firm's employment has the authority to make or give any representation or warranty in respect of the property. All measurements quoted are approximate. Although these particulars are thought to be materially correct their accuracy cannot be guaranteed and they do not form part of any contract.
THE PARK HOME AGENCY ARE PROUD MEMBERS OF THE PROPERTY REDRESS SCHEME.
- COUNCIL TAXA payment made to your local authority in order to pay for local services like schools, libraries, and refuse collection. The amount you pay depends on the value of the property.Read more about council Tax in our glossary page.
- Band: A
- PARKINGDetails of how and where vehicles can be parked, and any associated costs.Read more about parking in our glossary page.
- Driveway
- GARDENA property has access to an outdoor space, which could be private or shared.
- Private garden
- ACCESSIBILITYHow a property has been adapted to meet the needs of vulnerable or disabled individuals.Read more about accessibility in our glossary page.
- Ask agent
Energy performance certificate - ask agent
Ranksborough Hall, Langham, Oakham, Rutland, LE15 7EL
Add an important place to see how long it'd take to get there from our property listings.
__mins driving to your place
Notes
Staying secure when looking for property
Ensure you're up to date with our latest advice on how to avoid fraud or scams when looking for property online.
Visit our security centre to find out moreDisclaimer - Property reference S1283174. The information displayed about this property comprises a property advertisement. Rightmove.co.uk makes no warranty as to the accuracy or completeness of the advertisement or any linked or associated information, and Rightmove has no control over the content. This property advertisement does not constitute property particulars. The information is provided and maintained by The Park Home Agency, Swindon. Please contact the selling agent or developer directly to obtain any information which may be available under the terms of The Energy Performance of Buildings (Certificates and Inspections) (England and Wales) Regulations 2007 or the Home Report if in relation to a residential property in Scotland.
*This is the average speed from the provider with the fastest broadband package available at this postcode. The average speed displayed is based on the download speeds of at least 50% of customers at peak time (8pm to 10pm). Fibre/cable services at the postcode are subject to availability and may differ between properties within a postcode. Speeds can be affected by a range of technical and environmental factors. The speed at the property may be lower than that listed above. You can check the estimated speed and confirm availability to a property prior to purchasing on the broadband provider's website. Providers may increase charges. The information is provided and maintained by Decision Technologies Limited. **This is indicative only and based on a 2-person household with multiple devices and simultaneous usage. Broadband performance is affected by multiple factors including number of occupants and devices, simultaneous usage, router range etc. For more information speak to your broadband provider.
Map data ©OpenStreetMap contributors.




