
2 bedroom park home for sale
Greenacres Mobile Home Park, Flaxley Road, Selby

- PROPERTY TYPE
Park Home
- BEDROOMS
2
- BATHROOMS
1
- SIZE
Ask agent
Key features
- Video Tour Available
- Protected Residential Park
- Excellent Commuter Links
- Parking Facilities
- Over 45's Complex
- Viewing Highly Recommended
Description
** GATED COMMUNITY ** CLOSE TO AMENITIES ** Situated in Selby, on a protected residential park, this Park Home briefly comprises: Hall, Lounge, Kitchen, two Bedrooms and Bathroom. Externally, the property benefits from allocated parking and patio area. VIEWING IS HIGHLY RECOMMENDED TO FULLY APPRECIATE THE PROPERTY ON OFFER. RING US 7 DAYS TO BOOK A VIEWING. 'WE OPEN UNTIL 8PM MONDAY TO THURSDAY, 5.30 FRIDAYS, 5.00 SATURDAYS AND 11.00 - 3.00 SUNDAYS'.
Property Overview - Located on the Greenacres Mobile Home Park in Selby, this well-presented two-bedroom park home offers comfortable and secure living in a gated residential community. The property features a spacious lounge, and a modern kitchen, providing a well-balanced layout for relaxed living. the hallway leads to two well-proportioned bedrooms and a bathroom. Externally, the home benefits from a dedicated parking space. Conveniently located close to local amenities, this property is ideal for those seeking a peaceful yet accessible location.
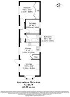
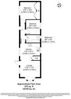
Accommodation -
Lounge - 3.55m x 3.42m (11'7" x 11'2" ) -
Kitchen - 3.55m x 3.01m (11'7" x 9'10" ) -
Inner Hallway -
Bedroom One - 3.55m x 3.06m (11'7" x 10'0") -
Bedroom Two - 2.60m x 2.50m (8'6" x 8'2") -
Bathroom - 2.58m x 1.37m (8'5" x 4'5" ) -
Exterior - Externally, the home benefits from a dedicated parking space.
Directions - From our Selby office, continue on Finkle Street which becomes Micklegate. Turn left onto the B1223 Water Lane and follow the road before proceeding straight over the mini roundabout on Flaxley Road. Proceed down the road for approximately 1.5 Miles and the Greenacres complex can be found on on the left hand side.
Heating & Appliances - The heating system and any appliances (including Burglar Alarms where fitted) mentioned in this brochure have not been tested by Park Row Properties. If you are interested in purchasing the property we advise that you have all services and appliances tested before entering a legal commitment to purchase.
Local Authority, Tax Banding And Tenure - Tenure: Leasehold
Local Authority: North Yorkshire Council
Tax Banding: A
Please note: The Tenure, Local Authority and Tax Banding for the property have been advised by the Vendor or obtained from online sources. We strive to ensure these details are accurate and reliable, however, we advise any potential buyer to carry out their own enquiries before proceeding.
Making An Offer - In order to comply with the Estate Agents (Undesirable Practices) Order 1991, Park Row Properties are required to verify "the status of any prospective purchaser... This includes the financial standing of that purchaser and his ability to exchange contracts". To allow us to comply with this order and before recommending acceptance of any offers, and subsequently making the property 'SOLD' each prospective purchaser will be required to demonstrate to 'Park Row Properties' that they are financially able to proceed with the purchase of the property.
We provide truly Independent Mortgage Advice. Unlike many companies we are not tied, and more importantly not targeted to any Lender. We have instant on-line access to over 1000 mortgage deals provided by over 100 Lenders ensuring we are unbeatable when identifying and recommending your new mortgage or re-mortgage requirements.
Your home is at risk if you do not keep up repayments on a mortgage or other loan secured on it. Written quotations available on request. Life assurance is usually required.
To arrange a no obligation appointment please contact your local office.
Measurements - These approximate room sizes are only intended as general guidance. You must verify the dimensions carefully before ordering carpets or any built-in furniture.
Opening Hours - CALLS ANSWERED :
Mon, Tues, Wed & Thurs - 9.00am to 8.00pm
Friday - 9.00am to 5.30pm
Saturday - 9.00am to 5.00pm
Sunday - 11.00am to 3.00pm
TO CHECK OFFICE OPENING HOURS PLEASE CONTACT THE RELEVANT BRANCHES ON:
GOOLE -
SELBY -
SHERBURN IN ELMET -
PONTEFRACT -
CASTLEFORD -
Utilities, Broadband And Mobile Coverage - Electricity: Mains
Heating: Oil
Sewerage: Mains
Water: Mains
Broadband: Ultrafast
Mobile: 5G
Please note: The Utilities, Broadband and Mobile Coverage for the property have been advised by the Vendor or obtained from online sources. We strive to ensure these details are accurate and reliable, however, we advise any potential buyer to carry out their own enquiries before proceeding.
Viewings - Strictly by appointment with the sole agents.
If there is any point of particular importance to you we will be pleased to provide additional information or to make any further enquiries. We will also confirm that the property remains available. This is particularly important if you are travelling some distance to view the property.
Brochures
Greenacres Mobile Home Park, Flaxley Road, SelbyBrochure- COUNCIL TAXA payment made to your local authority in order to pay for local services like schools, libraries, and refuse collection. The amount you pay depends on the value of the property.Read more about council Tax in our glossary page.
- Band: A
- PARKINGDetails of how and where vehicles can be parked, and any associated costs.Read more about parking in our glossary page.
- Residents
- GARDENA property has access to an outdoor space, which could be private or shared.
- Yes
- ACCESSIBILITYHow a property has been adapted to meet the needs of vulnerable or disabled individuals.Read more about accessibility in our glossary page.
- Ask agent
Energy performance certificate - ask agent
Greenacres Mobile Home Park, Flaxley Road, Selby
Add an important place to see how long it'd take to get there from our property listings.
__mins driving to your place


Notes
Staying secure when looking for property
Ensure you're up to date with our latest advice on how to avoid fraud or scams when looking for property online.
Visit our security centre to find out moreDisclaimer - Property reference 34332644. The information displayed about this property comprises a property advertisement. Rightmove.co.uk makes no warranty as to the accuracy or completeness of the advertisement or any linked or associated information, and Rightmove has no control over the content. This property advertisement does not constitute property particulars. The information is provided and maintained by Park Row Properties, Covering North Yorkshire. Please contact the selling agent or developer directly to obtain any information which may be available under the terms of The Energy Performance of Buildings (Certificates and Inspections) (England and Wales) Regulations 2007 or the Home Report if in relation to a residential property in Scotland.
*This is the average speed from the provider with the fastest broadband package available at this postcode. The average speed displayed is based on the download speeds of at least 50% of customers at peak time (8pm to 10pm). Fibre/cable services at the postcode are subject to availability and may differ between properties within a postcode. Speeds can be affected by a range of technical and environmental factors. The speed at the property may be lower than that listed above. You can check the estimated speed and confirm availability to a property prior to purchasing on the broadband provider's website. Providers may increase charges. The information is provided and maintained by Decision Technologies Limited. **This is indicative only and based on a 2-person household with multiple devices and simultaneous usage. Broadband performance is affected by multiple factors including number of occupants and devices, simultaneous usage, router range etc. For more information speak to your broadband provider.
Map data ©OpenStreetMap contributors.





