Papermill House, Oxford Road, Uxbridge, UB8

Letting details
- Let available date:
- 20/01/2026
- Deposit:
- £1,903A deposit provides security for a landlord against damage, or unpaid rent by a tenant.Read more about deposit in our glossary page.
- Min. Tenancy:
- 12 months How long the landlord offers to let the property for.Read more about tenancy length in our glossary page.
- Let type:
- Long term
- Furnish type:
- Furnished
- Council Tax:
- Ask agent
- PROPERTY TYPE
Apartment
- BEDROOMS
1
- BATHROOMS
1
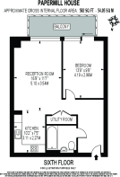
- SIZE
544 sq ft
51 sq m
Key features
- Let and Managed by GCP
- Great sized flat
- Residents parking available for additional £100pcm
- Great local amenities
- Residents gym and co working area
Description
The development offers a range of studio, one-, two- and three-bedroom apartments, each kept to a high standard throughout. Each unit provides spacious living areas with wooden flooring, a modern kitchen equipped with integrated top-tier appliances, and large outdoor spaces with panoramic, canal views.
Step into a well-designed living space that combines style and functionality, with spacious tranquil bedrooms that provide a peaceful retreat after a busy day and a fully-equipped kitchen, featuring modern appliances and ample counter space. Additionally, the property offers a large private balcony and secure fob access, providing you with peace of mind. The development also features access to a communal state of the art gym.
Situated in Uxbridge, these units offer proximity to local amenities, schools and excellent transport links, with Uxbridge tube station being a 10 minute walk from the unit. Whether you're commuting to work or exploring the neighbourhood, you will find everything within easy reach.
Please do not hesitate to contact us to arrange a viewing!
Papermill House consists of different apartments with different layouts, the photos and floorplans are for illustration purposes only.
This property has amazing state of the art fitted kitchens, great views over the Grand Union Canal or River Colne with some having spacious balconies, residents gym included onsite, and parking is available at an additional cost.
Furnished.
- COUNCIL TAXA payment made to your local authority in order to pay for local services like schools, libraries, and refuse collection. The amount you pay depends on the value of the property.Read more about council Tax in our glossary page.
- Ask agent
- PARKINGDetails of how and where vehicles can be parked, and any associated costs.Read more about parking in our glossary page.
- Yes
- GARDENA property has access to an outdoor space, which could be private or shared.
- Ask agent
- ACCESSIBILITYHow a property has been adapted to meet the needs of vulnerable or disabled individuals.Read more about accessibility in our glossary page.
- Ask agent
Energy performance certificate - ask agent
Papermill House, Oxford Road, Uxbridge, UB8
Add an important place to see how long it'd take to get there from our property listings.
__mins driving to your place

Notes
Staying secure when looking for property
Ensure you're up to date with our latest advice on how to avoid fraud or scams when looking for property online.
Visit our security centre to find out moreDisclaimer - Property reference 128pap. The information displayed about this property comprises a property advertisement. Rightmove.co.uk makes no warranty as to the accuracy or completeness of the advertisement or any linked or associated information, and Rightmove has no control over the content. This property advertisement does not constitute property particulars. The information is provided and maintained by GCP, London. Please contact the selling agent or developer directly to obtain any information which may be available under the terms of The Energy Performance of Buildings (Certificates and Inspections) (England and Wales) Regulations 2007 or the Home Report if in relation to a residential property in Scotland.
*This is the average speed from the provider with the fastest broadband package available at this postcode. The average speed displayed is based on the download speeds of at least 50% of customers at peak time (8pm to 10pm). Fibre/cable services at the postcode are subject to availability and may differ between properties within a postcode. Speeds can be affected by a range of technical and environmental factors. The speed at the property may be lower than that listed above. You can check the estimated speed and confirm availability to a property prior to purchasing on the broadband provider's website. Providers may increase charges. The information is provided and maintained by Decision Technologies Limited. **This is indicative only and based on a 2-person household with multiple devices and simultaneous usage. Broadband performance is affected by multiple factors including number of occupants and devices, simultaneous usage, router range etc. For more information speak to your broadband provider.
Map data ©OpenStreetMap contributors.




