Plot for sale
Fosse Way, Leamington Spa
- PROPERTY TYPE
Plot
- BEDROOMS
3
- BATHROOMS
3
- SIZE
Ask agent
Key features
- Barn with full planning consent
- Kitchen / dining / family room
- Further reception room
- Three bedrooms
- Three bathrooms
- Generous curtilage around property
- Open field views
- Additional land available via separate negotiation
- Viewings strictly by appointment
Description
If you are looking for your "Grand Designs" moment with an "Escape to the Country" twist, this is the opportunity for you. Full planning consent has been granted to erect a three bedroomed detached home enjoying unbroken views over open countryside located within a hamlet of converted barns, off the fosse way between Leamington Spa and Long Itchington.
This opportunity is being sold with a generous curtilage around the barn, with the option to purchase a further 1.6 acres (approx.) of adjoining paddock land via separate negotiation.
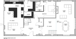
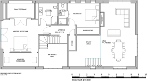
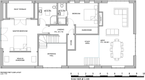
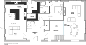
The approved accommodation is arranged over two floors. On the ground floor there is main entrance hall with W/C. To left there is a kitchen / dining / family area with door through to a utility / boot room. Directly ahead is a bedroom with ensuite. Turning right takes you to a study area leading through to a second large reception room which is full height to the roof line. On the first floor there are two generous bedrooms both with ensuite's. The principle bedroom also features a roof terrace with views out over rolling Warwickshire countryside.
The property is accessed via shared drive and benefits from a generous South facing garden with further gardens wrapped around the property.
The full planning has been granted for a Self-Build/ Custom Build as defined in Section 1 (A1) of the Self-build and Custom Housebuilding Act 2015.
Planning - Full planning consent has been granted for - Change of use of barn to dwelling house (Self-build) and associated works at Fosse Farm, Fosse Way, Offchurch, Leamington Spa, CV33 9BB (Application Reference W/25/0454). Interested parties must liaise with Warwick District Council Planning Team over any planning queries.
Viewings - Viewings should be arranged through Etta James on and are strictly by appointment for privacy reasons.
Plans & Elevations - The proposed layout plans and elevations are provided for guidance purposes only, and are not to scale. For full information please visit the planning portal by clicking the link below.
Wayleaves, Easements, Covenants & Rights Of Way - The land is sold subject to and with the benefit of all covenants, rights of way, wayleaves and easements that may exist over the property, whether or not mentioned in these sales particulars.
Additional Land - There is a further 1.6 acres of land available via separate negotiation, adjoining the land assigned to this barn.
Brochures
Fosse Way, Leamington SpaPlanning PortalSelf-build and Custom Housebuilding Act 2015Book a ValuationFosse Way, Leamington Spa
NEAREST STATIONS
Distances are straight line measurements from the centre of the postcode- Leamington Spa Station3.7 miles
Notes
Disclaimer - Property reference 34333841. The information displayed about this property comprises a property advertisement. Rightmove.co.uk makes no warranty as to the accuracy or completeness of the advertisement or any linked or associated information, and Rightmove has no control over the content. This property advertisement does not constitute property particulars. The information is provided and maintained by Etta James, Leamington Spa. Please contact the selling agent or developer directly to obtain any information which may be available under the terms of The Energy Performance of Buildings (Certificates and Inspections) (England and Wales) Regulations 2007 or the Home Report if in relation to a residential property in Scotland.
Map data ©OpenStreetMap contributors.






