
Cornflower Avenue, Shirebrook, NG20

Letting details
- Let available date:
- 01/02/2026
- Deposit:
- £1,067A deposit provides security for a landlord against damage, or unpaid rent by a tenant.Read more about deposit in our glossary page.
- Min. Tenancy:
- Ask agent How long the landlord offers to let the property for.Read more about tenancy length in our glossary page.
- Let type:
- Long term
- Furnish type:
- Unfurnished
- Council Tax:
- Ask agent
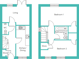
- PROPERTY TYPE
House
- BEDROOMS
2
- SIZE
Ask agent
Key features
- Car Park Space
- Dishwasher
- Fridge/Freezer
- Washing/Drying Machine
- Carpets & Laminate Throughout
- Security Alarm
- Modern Kitchen
- Private Garden
Description
Shirebrook train station is less than 2 miles away, offering regular services into Nottingham, Mansfield and Worksop. By car, the M1 is just 5 miles from Pleasley View, giving access to the North with Sheffield 45 minutes away and to the South with Leicester an hour away.
The area is steeped in history with Bolsover Castle and Hardwick Hall on your doorstep. The area is a popular location for families with Sherwood Forest and Clumber Park National Trust both nearby!
Furthermore, there’s plenty of choice when it comes to education, with a large range of high performing nurseries and schools located in easy reach of the development.
To access the development, use postcode NG20 8FY (Meadow Lane).
Rent: £925.00
Deposit: £1067.00
Tenancy Length: 12 Months
Council Tax Band: TBC
Available: 01.02.2026
Images are demonstrative of this property type. The images are therefore not plot or site specific and spec may vary slightly. Properties are let unfurnished.
At Simple Life, we appreciate how important your furry companions are to you, that’s why we have allocated a pet allowance per site, helping your pets to feel right at home too. All pets need to be applied for in advance using the Pet Application Form. Submitting an application form does not guarantee pet acceptance. Simple Life reserve the right to refuse any pets at any time. For more details please see our full Pet Policy.
- COUNCIL TAXA payment made to your local authority in order to pay for local services like schools, libraries, and refuse collection. The amount you pay depends on the value of the property.Read more about council Tax in our glossary page.
- Ask agent
- PARKINGDetails of how and where vehicles can be parked, and any associated costs.Read more about parking in our glossary page.
- Yes
- GARDENA property has access to an outdoor space, which could be private or shared.
- Yes
- ACCESSIBILITYHow a property has been adapted to meet the needs of vulnerable or disabled individuals.Read more about accessibility in our glossary page.
- Ask agent
Cornflower Avenue, Shirebrook, NG20
Add an important place to see how long it'd take to get there from our property listings.
__mins driving to your place
Notes
Staying secure when looking for property
Ensure you're up to date with our latest advice on how to avoid fraud or scams when looking for property online.
Visit our security centre to find out moreDisclaimer - Property reference SL-PV-41. The information displayed about this property comprises a property advertisement. Rightmove.co.uk makes no warranty as to the accuracy or completeness of the advertisement or any linked or associated information, and Rightmove has no control over the content. This property advertisement does not constitute property particulars. The information is provided and maintained by Simple Life, National. Please contact the selling agent or developer directly to obtain any information which may be available under the terms of The Energy Performance of Buildings (Certificates and Inspections) (England and Wales) Regulations 2007 or the Home Report if in relation to a residential property in Scotland.
*This is the average speed from the provider with the fastest broadband package available at this postcode. The average speed displayed is based on the download speeds of at least 50% of customers at peak time (8pm to 10pm). Fibre/cable services at the postcode are subject to availability and may differ between properties within a postcode. Speeds can be affected by a range of technical and environmental factors. The speed at the property may be lower than that listed above. You can check the estimated speed and confirm availability to a property prior to purchasing on the broadband provider's website. Providers may increase charges. The information is provided and maintained by Decision Technologies Limited. **This is indicative only and based on a 2-person household with multiple devices and simultaneous usage. Broadband performance is affected by multiple factors including number of occupants and devices, simultaneous usage, router range etc. For more information speak to your broadband provider.
Map data ©OpenStreetMap contributors.





