
Lanark Road, Braidwood, Carluke

- PROPERTY TYPE
Detached
- BEDROOMS
5
- BATHROOMS
2
- SIZE
1,620 sq ft
151 sq m
- TENUREDescribes how you own a property. There are different types of tenure - freehold, leasehold, and commonhold.Read more about tenure in our glossary page.
Freehold
Description
***£20,000 of Specification Enhancements Included***
Description
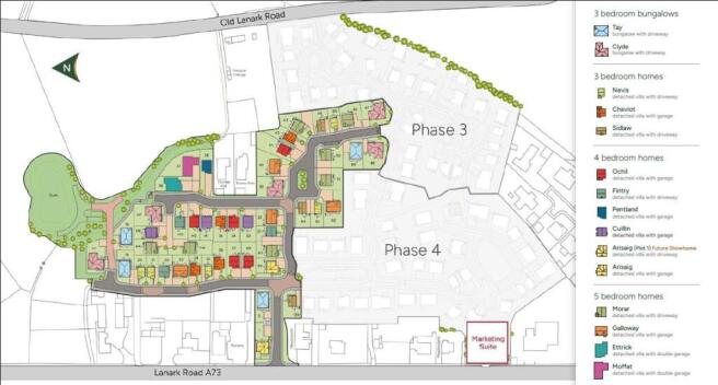
PLOT 30 - THE MORAR - FIVE BEDROOM DETACHED VILLA WITH DRIVEWAY
***£20,000 of Specification Enhancements Included***
Allanwater Homes, a family-owned business founded in 1980 in Bridge of Allan, has over 40 years of experience in property development, focusing on building quality new build homes across central Scotland.
Plot 30 – The Morar – Five Bedroom detached villa with Driveway
Key Feature
•Chain Free- Energy Efficient – New Build Home
•Modern Fitted Kitchen
•4 Zone Induction Hob
•Stainless Steel Chimney Hood
•Single Oven in Tall Housing Unit
•Integrated Fridge Freezer & Dishwasher
•Utility Room & W/C
•Large Kitchen/Dining/Familyroom
•Separate Lounge
•White Internal Doors (½ Glazed to Living Areas)
•USB Sockets, to Lounge, Kitchen, Bedroom 1
•Fitted Wardrobes to Bedroom 1, 2 & 3
•Thermostatic Rainfall Shower (Ensuite)
•Vanity Units (Bathroom & Ensuite)
•Porcelanosa Tiles (Wet rooms)
•Bath & Separate Shower Cubical (Bathroom)
•Ample Storage Throughout
•Solar Panels
•Gas Combi Boiler for Heating and Hot Water
•Turf to Front Garden
•External Cold Water Tap
•EV Car Charging Point
•10 Year Premier Warranty
•Appointed Factor to Maintain Common Areas
Description
The Morar is a remarkable five bedroom family home, offering generous living space, large rooms, and exceptional versatility. The bright lounge, featuring a charming bay window and flows seamlessly through double doors into a spacious open-plan family, dining/kitchen area, with plenty of room for dining, relaxing, and entertaining around a breakfast bar. French doors open onto the rear garden, creating a flexible space perfect for family life, social gatherings or quiet relaxation. A utility room, convenient w/c, and a versatile fifth bedroom, ideal as a guest room, study, or playroom.
Upstairs, four double bedrooms provide generous accommodation, with bedrooms one, two and three all featuring fitted wardrobes. The principal bedroom enjoys a stylish en suite shower room, while a family bathroom with both a bath and a separate shower serves the remaining bedrooms.
A monoblock driveway offers ample parking, and the spacious rear garden provides the perfect setting for outdoor living, play, and entertaining.
*All photographs and images used on this website are for illustration purposes only and may not specifically represent the exact products, finishes, layouts, or features. They may not accurately reflect the actual items or outcomes, and no reliance should be placed upon them for any contractual purposes. For specific details regarding this property, please speak to the Development Sales Manager.
Development
Nestled in the charming village of Braidwood, South Lanarkshire, the development offers the perfect blend of rural tranquillity and everyday convenience. Surrounded by scenic countryside, it provides a peaceful village feel while remaining just a short distance from local amenities and excellent transport links by both road and rail, ideal for commuters and families alike.
With a wide range of beautifully designed homes, including 3 and 4 bedroom detached bungalows and 3, 4, and 5-bedroom villas, this thoughtfully planned development truly offers something for everyone, from first-time buyers and growing families to couples and downsizers seeking space, comfort, and a welcoming community.
Shopping & Leisure
Carluke offers a well-rounded mix of shopping and leisure options. The town centre features a variety of local shops, cafés, bars, and restaurants, ideal for everyday convenience and casual dining. Garden lovers will appreciate several garden centres in and around the area, perfect for plants, homewares, and outdoor inspiration. With a friendly community vibe and essential amenities close at hand, Carluke provides a great balance of convenience and lifestyle.
Sports enthusiasts can enjoy local leisure facilities, including a gym, swimming facilities at the Carluke Leisure Centre and nearby walking via Fiddlers Gill Path and Milton Nature Trail. Just six minutes away, Carluke Golf Club features a full 18-hole course, there is so much to explore.
Carluke is surrounded by rich history, with several notable sites to explore. Visit the Tower of Hallbar (also known as Braidwood Castle) nearby or take a short 12-minute drive to the New Lanark Heritage Museum, a UNESCO World Heritage Site offering a fascinating look into Scotland’s industrial past.
Education
There are plenty of schooling options available near the development for children of all ages.
Primary schools such as Braidwood and St Athanasius are about 1 mile away, with many more schools in the surrounding area. For younger children, there are also nursery schools nearby. Secondary education is served by Carluke High School, just 1.7 miles from the development, and St Aidan’s High School in Wishaw, around 6.8 miles away.
Transport
The Carluke development offers excellent transport links by car, bus, or train. Carluke Train Station is just 5 minutes away, with regular services to Glasgow, Edinburgh, and beyond. Glasgow is around 30 minutes by car via the M74 and M8, and Edinburgh just over an hour via the A73 and M8. A nearby bus stop on Lanark Road provides routes to local towns and villages.
Directions
The Allanwater Homes Carluke development is situated in the village of Braidwood, about 1 mile from Carluke town centre in South Lanarkshire. Located on Lanark Road (A73), the development is easily accessible. From the M74, exit
at Junction 7 (Lanark) follow the A72 this journey typically takes approx. 15-20 mins minutes. From the M8, exit at Junction 6 for the A73 toward Carluke, this journey typically takes approx. 20–25 minutes.
Visit Our Marketing Suite
Located just off Lanark Road (A73), right next to the popular Taal Restaurant, our Sales Suite is open and ready to welcome you and chat with our friendly sales team about finding your perfect new home.
Opening Hours: Thursday to Monday 11:00am – 5:30pm
Brochures
Lanark Road, Braidwood, Carluke- COUNCIL TAXA payment made to your local authority in order to pay for local services like schools, libraries, and refuse collection. The amount you pay depends on the value of the property.Read more about council Tax in our glossary page.
- Ask agent
- PARKINGDetails of how and where vehicles can be parked, and any associated costs.Read more about parking in our glossary page.
- Yes
- GARDENA property has access to an outdoor space, which could be private or shared.
- Yes
- ACCESSIBILITYHow a property has been adapted to meet the needs of vulnerable or disabled individuals.Read more about accessibility in our glossary page.
- Ask agent
Energy performance certificate - ask agent
Lanark Road, Braidwood, Carluke
Add an important place to see how long it'd take to get there from our property listings.
__mins driving to your place
Get an instant, personalised result:
- Show sellers you’re serious
- Secure viewings faster with agents
- No impact on your credit score
Your mortgage
Notes
Staying secure when looking for property
Ensure you're up to date with our latest advice on how to avoid fraud or scams when looking for property online.
Visit our security centre to find out moreDisclaimer - Property reference 34334727. The information displayed about this property comprises a property advertisement. Rightmove.co.uk makes no warranty as to the accuracy or completeness of the advertisement or any linked or associated information, and Rightmove has no control over the content. This property advertisement does not constitute property particulars. The information is provided and maintained by AB Properties, Lanarkshire. Please contact the selling agent or developer directly to obtain any information which may be available under the terms of The Energy Performance of Buildings (Certificates and Inspections) (England and Wales) Regulations 2007 or the Home Report if in relation to a residential property in Scotland.
*This is the average speed from the provider with the fastest broadband package available at this postcode. The average speed displayed is based on the download speeds of at least 50% of customers at peak time (8pm to 10pm). Fibre/cable services at the postcode are subject to availability and may differ between properties within a postcode. Speeds can be affected by a range of technical and environmental factors. The speed at the property may be lower than that listed above. You can check the estimated speed and confirm availability to a property prior to purchasing on the broadband provider's website. Providers may increase charges. The information is provided and maintained by Decision Technologies Limited. **This is indicative only and based on a 2-person household with multiple devices and simultaneous usage. Broadband performance is affected by multiple factors including number of occupants and devices, simultaneous usage, router range etc. For more information speak to your broadband provider.
Map data ©OpenStreetMap contributors.





