
Church Road, Locks Heath

- PROPERTY TYPE
House
- BEDROOMS
4
- BATHROOMS
2
- SIZE
Ask agent
- TENUREDescribes how you own a property. There are different types of tenure - freehold, leasehold, and commonhold.Read more about tenure in our glossary page.
Freehold
Key features
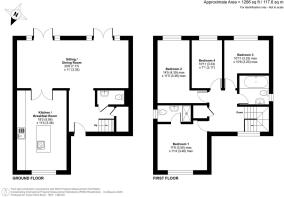
- Four Bedrooms
- Master bedroom with modern en-suite
- Sleek modern fitted kitchen with central island unit with integrated white goods
- South facing garden
- Gated entrance with excellent parking
- EPC Rating C (77)
Description
Built in 2009 this stunning family home has been meticulously maintained and is presented in immaculate condition throughout. The property perfectly blends modern design with an open-plan feel, whilst also benefitting from the high ceilings and Upvc sash windows of a character home. With an impressive contemporary kitchen/breakfast room which can be opened up to the main reception room through a set of double doors making an excellent family/social area. The kitchen centres around a large central breakfast bar island unit with a further excellent range of base and eye level units, built-in double oven/microwave, a double stainless-steel sink, induction hob with extractor above and integrated dishwasher, full height fridge and full height freezer and washing machine. Twin sets of double doors lead out from the large light and airy sitting/dining room to the modern landscaped south-facing garden. On the first floor there are four generous bedrooms and the modern family bathroom. The master bedroom enjoys a separate sleek en-suite shower room.
Externally the property is approached via a gated block paved driveway providing parking for multiple vehicles. The well-presented rear garden is South facing and has been landscaped for ease of maintenance. Mainly laid to lawn with extensive paved patio seating area and raised shrub borders.
Locks Heath is situated to the south of Park Gate and Sarisbury Green and to the north of Warsash. Primarily a residential area, it centres around the modern shopping complex at Locks Heath centre, which offers excellent parking and a comprehensive range of services, such as a doctor's surgery and a public library, as well as a public house. Shopping facilities including a Waitrose supermarket and an extensive range of supporting retail outlets, Schooling in this area is very good, with the Locks Heath Primary and Junior Schools situated at Warsash Road and the Brookfield Senior School, located at Brook Lane. The area is also very well served by pre-schools and a large leisure centre is situated at Sarisbury Green, as well as a community hospital. The area provides easy access to the sea and to the local countryside, providing an abundance of outdoor leisure options to suit all tastes.
SUMMARY OF FEATURES:
Four Bedrooms; Master bedroom with modern en-suite; Gated entrance with excellent parking; Sleek modern fitted kitchen with central island unit with integrated white goods; South facing garden; Ev car charger; Light air accommodation with high ceilings creating a very spacious feel; Upvc sash windows and gas central heating
GENERAL INFORMATION:
TENURE: Freehold; SERVICES: Mains gas, electricity, water and drainage; LOCAL AUTHORITY: Fareham Borough Council; TAX BAND: E
DISTANCES:
Locks Heath Shopping Centre – 0.3 miles; Swanwick Station – 1.2 miles; Park Gate Amenities – 0.7 miles; Holly Hill Woodland Park and Leisure Centre – 1.4 miles; Whiteley Shopping Centre – 2.3 miles
Brochures
Brochure- COUNCIL TAXA payment made to your local authority in order to pay for local services like schools, libraries, and refuse collection. The amount you pay depends on the value of the property.Read more about council Tax in our glossary page.
- Band: E
- PARKINGDetails of how and where vehicles can be parked, and any associated costs.Read more about parking in our glossary page.
- On street,Driveway,EV charging,Private
- GARDENA property has access to an outdoor space, which could be private or shared.
- Yes
- ACCESSIBILITYHow a property has been adapted to meet the needs of vulnerable or disabled individuals.Read more about accessibility in our glossary page.
- Ask agent
Church Road, Locks Heath
Add an important place to see how long it'd take to get there from our property listings.
__mins driving to your place
Get an instant, personalised result:
- Show sellers you’re serious
- Secure viewings faster with agents
- No impact on your credit score
Your mortgage
Notes
Staying secure when looking for property
Ensure you're up to date with our latest advice on how to avoid fraud or scams when looking for property online.
Visit our security centre to find out moreDisclaimer - Property reference 34334993. The information displayed about this property comprises a property advertisement. Rightmove.co.uk makes no warranty as to the accuracy or completeness of the advertisement or any linked or associated information, and Rightmove has no control over the content. This property advertisement does not constitute property particulars. The information is provided and maintained by Taylor Hill & Bond, Park Gate. Please contact the selling agent or developer directly to obtain any information which may be available under the terms of The Energy Performance of Buildings (Certificates and Inspections) (England and Wales) Regulations 2007 or the Home Report if in relation to a residential property in Scotland.
*This is the average speed from the provider with the fastest broadband package available at this postcode. The average speed displayed is based on the download speeds of at least 50% of customers at peak time (8pm to 10pm). Fibre/cable services at the postcode are subject to availability and may differ between properties within a postcode. Speeds can be affected by a range of technical and environmental factors. The speed at the property may be lower than that listed above. You can check the estimated speed and confirm availability to a property prior to purchasing on the broadband provider's website. Providers may increase charges. The information is provided and maintained by Decision Technologies Limited. **This is indicative only and based on a 2-person household with multiple devices and simultaneous usage. Broadband performance is affected by multiple factors including number of occupants and devices, simultaneous usage, router range etc. For more information speak to your broadband provider.
Map data ©OpenStreetMap contributors.





