Cecil Road, Selly Park, Birmingham

- PROPERTY TYPE
Terraced
- BEDROOMS
2
- BATHROOMS
1
- SIZE
969 sq ft
90 sq m
- TENUREDescribes how you own a property. There are different types of tenure - freehold, leasehold, and commonhold.Read more about tenure in our glossary page.
Freehold
Key features
- Wonderful Period Terrace
- Two Double Bedrooms
- Lots of Character
- Breakfast Kitchen
- Great Location
- No Chain
- Must View!
Description
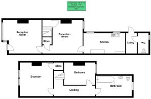
Approach - This lovely two bedroom mid terrace property bursting with character is approached via a low level brick front wall with wrought iron front gate to a low maintenance fore garden which in-turn leads to storm canopy porch and a hardwood door with leaded light window insets opens into:
Front Reception Room - 4.17m into bay x 3.48m (13'08" into bay x 11'05" - With exposed wooden floorboards, feature recess to chimney breast, single glazed bay window to the front aspect, cornice to ceiling, decorative picture rail, ceiling light point and central heating radiator.
Rear Reception Room - 3.51m x 4.70m (11'06" x 15'05") - With a stripped pine internal door opens into the reception room with door opening into under stairs storage cupboard with original red quarry tiled floor covering and in-built shelving and main rear reception room with continued exposed wooden floorboards, single glazed sash window to the rear aspect, ceiling light point with ceiling rose, cornice to ceiling, inset fireplace with raised slate hearth and wooden mantle piece and surround, central heating radiator, door to stairs to the first floor and glazed internal door opens into:
Kitchen - 3.51m x 1.91m (11'6" x 6'03") - With a matching selection of white wall and base units with wooden block work surfaces, space facility for washing machine, free standing gas cooker, inset one and a half bowl stainless steel sink and drainer with hot and cold mixer tap, wall mounted Worcester Bosch combination boiler, tiling to splash backs, red quarry tiled floor covering, ceiling light point, breakfast bar area, further feature single glazed window to the side aspect and opening into:
Lobby Area - 1.27m x 1.68m (4'02" x 5'06") - With continued red quarry tiled floor covering, space facility for fridge freezer, glazed external door giving access to the side return and rear garden, ceiling light point, dado rail and door opening into:
Ground Floor Wc - With single glazed window to the rear aspect, painted exposed brick, red quarry tiled floor covering, high flush WC and wall mounted light point,
Rear Garden - A side return with pergola with climbing plants and being block paved and going out to an initial patio area with garden shed, then in-turn leads on to the main garden. Being low maintenance with block paving right through with a mixture of hedgerows and trees and panel fencing to borders and providing excellent outside seating and entertaining space and being completed with wooden rear access gate.
First Floor Accommodation - From the rear reception room painted wooden staircase gives rise to the first floor landing with ceiling light point, central heating radiator, exposed painted wooden floorboards and stripped pine internal doors and complete with original style brass furnishings opening into:
Bedroom One - 3.53m x 3.48m (11'07" x 11'05") - With two single glazed sash windows to the front aspect, exposed painted wooden floorboards, central heating radiator, picture rail, ceiling light point and door opening into over stairs storage cupboard.
Bedroom Two - 3.71m x 2.54m (12'02" x 8'04") - With single glazed sash window to the rear aspect, central heating radiator, exposed painted wooden floorboards, picture rail and ceiling light point.
Bathroom - 3.53m x 1.93m (11'07" x 6'04") - Panel bath with electric shower over and hot and cold taps, low flush WC, wash hand basin on pedestal with hot and cold taps, tiling to splash backs, frosted double glazed window to the rear aspect, central heating radiator and ceiling light point.
Brochures
Cecil Road, Selly Park, BirminghamBrochure- COUNCIL TAXA payment made to your local authority in order to pay for local services like schools, libraries, and refuse collection. The amount you pay depends on the value of the property.Read more about council Tax in our glossary page.
- Band: B
- PARKINGDetails of how and where vehicles can be parked, and any associated costs.Read more about parking in our glossary page.
- On street
- GARDENA property has access to an outdoor space, which could be private or shared.
- Yes
- ACCESSIBILITYHow a property has been adapted to meet the needs of vulnerable or disabled individuals.Read more about accessibility in our glossary page.
- Ask agent
Cecil Road, Selly Park, Birmingham
Add an important place to see how long it'd take to get there from our property listings.
__mins driving to your place
Get an instant, personalised result:
- Show sellers you’re serious
- Secure viewings faster with agents
- No impact on your credit score



Your mortgage
Notes
Staying secure when looking for property
Ensure you're up to date with our latest advice on how to avoid fraud or scams when looking for property online.
Visit our security centre to find out moreDisclaimer - Property reference 34335116. The information displayed about this property comprises a property advertisement. Rightmove.co.uk makes no warranty as to the accuracy or completeness of the advertisement or any linked or associated information, and Rightmove has no control over the content. This property advertisement does not constitute property particulars. The information is provided and maintained by Rice Chamberlains LLP, Moseley. Please contact the selling agent or developer directly to obtain any information which may be available under the terms of The Energy Performance of Buildings (Certificates and Inspections) (England and Wales) Regulations 2007 or the Home Report if in relation to a residential property in Scotland.
*This is the average speed from the provider with the fastest broadband package available at this postcode. The average speed displayed is based on the download speeds of at least 50% of customers at peak time (8pm to 10pm). Fibre/cable services at the postcode are subject to availability and may differ between properties within a postcode. Speeds can be affected by a range of technical and environmental factors. The speed at the property may be lower than that listed above. You can check the estimated speed and confirm availability to a property prior to purchasing on the broadband provider's website. Providers may increase charges. The information is provided and maintained by Decision Technologies Limited. **This is indicative only and based on a 2-person household with multiple devices and simultaneous usage. Broadband performance is affected by multiple factors including number of occupants and devices, simultaneous usage, router range etc. For more information speak to your broadband provider.
Map data ©OpenStreetMap contributors.




