
Anchor Road, Clacton-on-Sea

- PROPERTY TYPE
Semi-Detached
- BEDROOMS
2
- BATHROOMS
1
- SIZE
Ask agent
- TENUREDescribes how you own a property. There are different types of tenure - freehold, leasehold, and commonhold.Read more about tenure in our glossary page.
Freehold
Key features
- Two Bedrooms
- Ground Floor WC
- First Floor Bathroom
- 13'1 Lounge
- 10'4 Dining Room
- 15'2 Kitchen/Breakfast Room
- Gas Heating (n/t)
- Double Glazing
- Sole Agents
- Viewing Recommended
Description
Blake & Thickbroom are pleased to be offering this older style semi detached house conveniently located within a wander of Clacton's town centre and Waterglade shopping park. Major supermarket outlets are literally 'just around the corner' and an internal viewing is recommended to fully appreciate the size and convenience of this property.
Agent Notes:
Material information for this property
Tenure is Freehold. Council Tax Band: B. EPC: D
Services connected
Electricity: Yes
Gas: Yes
Water: Yes
Sewerage type: Mains
Telephone and Broadband coverage: Yes
Prospective purchasers should be directed to website Checker.ofcom.org.co.uk to confirm the coverage of mobile phone and broadband for this property.
Any additional property charges: None
Non standard property features to note: No
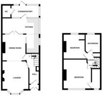
ENTRANCE LOBBY
Double doors to entrance lobby. Further wooden entrance door to entrance hall.
ENTRANCE HALL
Radiator, stair flight to first floor with storage cupboard under. Door to dining room.
DINING ROOM
3.15m x 2.49m (10'4 x 8'2)
Open plan access to lounge. Sliding door to kitchen. Further double doors to breakfast area.
LOUNGE
3.99m x 3.18m (13'1 x 10'5)
Brick open fireplace with tiled hearth, radiator, double glazed bay window to front.
KITCHEN/BREAKFAST ROOM
4.62m x 4.57m (15'2 x 15'0)
L Shaped. Kitchen area is fitted with laminated fronted units comprising laminated work surfaces with inset single drainer sink unit. Range of eye level cupboards. Windows to side and rear. Further door to lean to/conservatory.
LEAN TO/CONSERVATORY
2.59m x 1.27m (8'6 x 4'2)
Window and door to rear, further door to lobby. Access to ground floor WC.
GROUND FLOOR CLOAKROOM
Fitted with a low level WC.
FIRST FLOOR LANDING
Radiator, built in linen cupboard. Doors to bedroom and bathroom.
BEDROOM ONE
3.51m x 3.15m (11'6 x 10'4)
Radiator, double glazed window to front. Further door to walk in wardrobe with additional double glazed window to front.
BEDROOM TWO
3.12m x 2.77m (10'3 x 9'1)
Radiator, wall mounted gas boiler. Double glazed window to rear.
BATHROOM
White coloured suite comprising panelled bath with wall mounted shower unit over and shower screen. Vanity wash basin, low level WC, radiator. Double glazed window to rear.
OUTSIDE
Small frontage retained by picket fencing and laid with slate chippings. Pedestrian access to the side of the property to the rear garden. The rear garden is lawned with well stocked flower and shrub borders. Timber storage shed situated to the foot of the garden.
Brochures
Agent Brochure- COUNCIL TAXA payment made to your local authority in order to pay for local services like schools, libraries, and refuse collection. The amount you pay depends on the value of the property.Read more about council Tax in our glossary page.
- Ask agent
- PARKINGDetails of how and where vehicles can be parked, and any associated costs.Read more about parking in our glossary page.
- On street
- GARDENA property has access to an outdoor space, which could be private or shared.
- Yes
- ACCESSIBILITYHow a property has been adapted to meet the needs of vulnerable or disabled individuals.Read more about accessibility in our glossary page.
- Ask agent
Energy performance certificate - ask agent
Anchor Road, Clacton-on-Sea
Add an important place to see how long it'd take to get there from our property listings.
__mins driving to your place
Get an instant, personalised result:
- Show sellers you’re serious
- Secure viewings faster with agents
- No impact on your credit score
Your mortgage
Notes
Staying secure when looking for property
Ensure you're up to date with our latest advice on how to avoid fraud or scams when looking for property online.
Visit our security centre to find out moreDisclaimer - Property reference 11758. The information displayed about this property comprises a property advertisement. Rightmove.co.uk makes no warranty as to the accuracy or completeness of the advertisement or any linked or associated information, and Rightmove has no control over the content. This property advertisement does not constitute property particulars. The information is provided and maintained by Blake & Thickbroom, Clacton on sea. Please contact the selling agent or developer directly to obtain any information which may be available under the terms of The Energy Performance of Buildings (Certificates and Inspections) (England and Wales) Regulations 2007 or the Home Report if in relation to a residential property in Scotland.
*This is the average speed from the provider with the fastest broadband package available at this postcode. The average speed displayed is based on the download speeds of at least 50% of customers at peak time (8pm to 10pm). Fibre/cable services at the postcode are subject to availability and may differ between properties within a postcode. Speeds can be affected by a range of technical and environmental factors. The speed at the property may be lower than that listed above. You can check the estimated speed and confirm availability to a property prior to purchasing on the broadband provider's website. Providers may increase charges. The information is provided and maintained by Decision Technologies Limited. **This is indicative only and based on a 2-person household with multiple devices and simultaneous usage. Broadband performance is affected by multiple factors including number of occupants and devices, simultaneous usage, router range etc. For more information speak to your broadband provider.
Map data ©OpenStreetMap contributors.





