
3 bedroom semi-detached house for sale
Ashworth Place, Tithebarn Lane, Exeter, Devon, EX1 3UQ

- PROPERTY TYPE
Semi-Detached
- BEDROOMS
3
- SIZE
Ask developer
- TENUREDescribes how you own a property. There are different types of tenure - freehold, leasehold, and commonhold.Read more about tenure in our glossary page.
Freehold
Key features
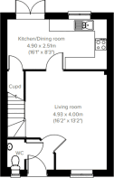
- Open plan kitchen/breakfast room with garden access
- Front aspect living room
- Bedroom 1 with en suite and storage
- Family bathroom with modern fixtures and fittings
- Flexible first floor lifestyle room
Description
The Danbury has a lovely natural flow that leads you through the living space. The hallway opens into the living room, the living room into the kitchen/dining room and the kitchen/dining room into the garden. This is a new home that will suit first-time buyers, young professionals, and the comings and goings of friends and family.
Additional Information
- Tenure: Freehold
- Council tax band: Not made available by local authority until post-occupation
Parking - Allocated Parking
Room Dimensions
- Kitchen/dining room - 4.95 x 3.08 metre
- Living room - 4.01 x 3.38 metre
- Bedroom 1 - 4.01 x 2.78 metre
- Bedroom 2 - 2.94 x 2.54 metre
- Bedroom 3 - 1.92 x 2.54 metre
- COUNCIL TAXA payment made to your local authority in order to pay for local services like schools, libraries, and refuse collection. The amount you pay depends on the value of the property.Read more about council Tax in our glossary page.
- Ask developer
- PARKINGDetails of how and where vehicles can be parked, and any associated costs.Read more about parking in our glossary page.
- Yes
- GARDENA property has access to an outdoor space, which could be private or shared.
- Yes
- ACCESSIBILITYHow a property has been adapted to meet the needs of vulnerable or disabled individuals.Read more about accessibility in our glossary page.
- Ask developer
Energy performance certificate - ask developer
Ashworth Place, Tithebarn Lane, Exeter, Devon, EX1 3UQ
Add an important place to see how long it'd take to get there from our property listings.
__mins driving to your place
Get an instant, personalised result:
- Show sellers you’re serious
- Secure viewings faster with agents
- No impact on your credit score
About Persimmon Homes
Ashworth Place is a collection of two, three and four-bedroom homes located less than 5 miles to the east of Exeter. Surrounded by beautiful countryside, this is a truly idyllic setting. With its range of new homes, excellent doorstep amenities and fantastic commuter links, Ashworth Place is sure to have something to suit you perfectly.
East Devon is a gorgeous area, sometimes overshadowed by the lure of South Devon. However, with the stunning Jurassic Coast, the beautiful Exe Estuary, and plenty of beaches of its own, this is a great place to set up your new home. Historic Exeter has so much to offer, and it's easy to get into the countryside too. The National Trust's Killerton estate just beyond Broadclyst, includes the 800 acre Ashclyst Forest, and Woodbury Common, perfect for walking and cycling trails with views of the sea, are both an easy drive from Ashworth Place.
This development offers the following schemes:
- First Homes
- Bank of Mum and Dad
- Part Exchange your Home
- Home Change
- Early Bird Scheme
- Own New Rate Reducer Scheme
Schemes are available on selected plots only, subject to status, terms and conditions apply. Contact the development for latest information.
Your mortgage
Notes
Staying secure when looking for property
Ensure you're up to date with our latest advice on how to avoid fraud or scams when looking for property online.
Visit our security centre to find out moreDisclaimer - Property reference 3_346. The information displayed about this property comprises a property advertisement. Rightmove.co.uk makes no warranty as to the accuracy or completeness of the advertisement or any linked or associated information, and Rightmove has no control over the content. This property advertisement does not constitute property particulars. The information is provided and maintained by Persimmon Homes. Please contact the selling agent or developer directly to obtain any information which may be available under the terms of The Energy Performance of Buildings (Certificates and Inspections) (England and Wales) Regulations 2007 or the Home Report if in relation to a residential property in Scotland.
*This is the average speed from the provider with the fastest broadband package available at this postcode. The average speed displayed is based on the download speeds of at least 50% of customers at peak time (8pm to 10pm). Fibre/cable services at the postcode are subject to availability and may differ between properties within a postcode. Speeds can be affected by a range of technical and environmental factors. The speed at the property may be lower than that listed above. You can check the estimated speed and confirm availability to a property prior to purchasing on the broadband provider's website. Providers may increase charges. The information is provided and maintained by Decision Technologies Limited. **This is indicative only and based on a 2-person household with multiple devices and simultaneous usage. Broadband performance is affected by multiple factors including number of occupants and devices, simultaneous usage, router range etc. For more information speak to your broadband provider.
Map data ©OpenStreetMap contributors.






