
Flash Lane, Trent Vale, Stoke on Trent
- PROPERTY TYPE
Land
- SIZE
3,049 sq ft
283 sq m
Description
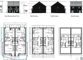
The site has expired planning consent for two semi detached properties
For Sale By Auction at 6.30 pm on Monday 1st December 2025
at the Double Tree By Hilton Hotel, Festival Park, Stoke-on-Trent, ST1 5BQ
Contact the Auction Team to Register: or
Description - 0.07 Acres of vacant land with potential for alternative uses (subject to planning)
The site has has expired planning approvals for "Residential development for two semi detached dwellings" Dated 4th September 2015, REF: 58476/FUL
Location - The land is located in Trent Vale, 2 miles from the town centre of Newcastle-under-Lyme. The premises is within walking distance to both Royal Stoke University Hospital & The Springfields Retail park, which plays host to Blue Chip retailers such as Tesco, Pets at Home and B&M. The site is located just off the A500 arterial road which provides wider access to the M6 Motorway.
Planning & Supporting Information. - The land has expired planning consent for "Residential development for two semi detached dwellings" dated 4th September 2015 (Ref; 58476/FUL ).
A full info pack is available on request which includes the following:
- Decisions Notices
- Plans & Elevations
- BJB Comparable Evidence
- Photos
NB: Whilst BJB will try and supply as much information as we can about the planning status of the land / property, please be mindful that we are not planning consultants and accordingly it is important that prospective purchasers ensure they have inspected the land / property and rely upon their own enquiries, assessments and due diligence with regards to the planning status and current or potential uses. All information is supplied in good faith and BJB cannot be held liable for any errors or omissions.
Gdv / Sales Values / Rental Value - The estimated GDV for the scheme is £235,000, with an estimated rental value of £1,250 per property, PCM. Further information including comparable evidence is contained in the info pack.
Local Council - The site is located in the Council district of Stoke-On-Trent City Council:
Tenure. - Freehold with vacant possession upon completion.
Vat - All prices quoted by Butters John Bee are exclusive of VAT unless otherwise stated. All interested parties should make their own enquiries to satisfy themselves with the VAT position.
Pre-Auction Offers. - Any pre-Auction offers should be submitted via e-mail to residential- . All offers will be forwarded to the client for consideration, but please be aware that the majority of clients prefer to let the marketing run for a period, prior to giving serious consideration to accepting any pre-Auction offer.
Common Auction Conditions. - This property is sold subject to our Common Auction Conditions (a copy is available on request).
Buyers Admin Fee. - A buyers administration fee of £1,800 including VAT is applicable to this lot. The purchaser will pay the fee whether the property is bought before, at or following the auction date.
Legal Pack. - Purchasing a property at auction is a firm commitment that carries the same legal implications as a signed contract by private treaty. It is important that you consult with your legal adviser before bidding and also your accountant regarding the impact of VAT, if applicable, on the sale price. The legal pack can be viewed online via our website Legal packs can also be viewed at the selling office. These documents should be passed to your legal adviser as they will help you make an informed decision about the lot. If you need further legal information please contact the vendor's solicitor whose details will be in the auction catalogue. Remember that you buy subject to all documentation and terms of contract whether or not you have read them.
Addendum. - Check the latest addendum at buttersjohnbee.com for any alterations or changes to the catalogue.
Internet, Telephone And Proxy Bidding - We are pleased to announce that we are now back in the Auction room at the Double Tree Hilton Hotel (Moat House). However, we also have the other bidding options available: On-Line / Telephone / By-Proxy. You will need to register in advance and provide two forms of ID. Register at or contact the Auction Team on or .
Legal Costs - Please refer to the auction pack in respect of any legal fees or search fees which may be due upon exchange or completion.
Viewings - The site can be inspected from the Public Highway – no appointment is necessary.
Deposit - Please note that a deposit of 10% of the purchase price (Min £3,000) will be due on Exchange of Contracts, whether the land / property is sold prior to Auction, in the Auction room or after the Auction.
Looking For Land & Development Opportunities? - Please note that not all land & development opportunities will appear on our website. To ensure that you do not miss out on these opportunities please e-mail: residential- or call the Land & New Homes team to discuss your requirements.
Brochures
Flash Lane, Trent Vale, Stoke on TrentBrochureFlash Lane, Trent Vale, Stoke on Trent
NEAREST STATIONS
Distances are straight line measurements from the centre of the postcode- Stoke-on-Trent Station1.6 miles
- Longton Station2.7 miles
- Wedgwood Station2.9 miles
Notes
Disclaimer - Property reference 34246948. The information displayed about this property comprises a property advertisement. Rightmove.co.uk makes no warranty as to the accuracy or completeness of the advertisement or any linked or associated information, and Rightmove has no control over the content. This property advertisement does not constitute property particulars. The information is provided and maintained by Butters John Bee Land, Stoke-on-Trent. Please contact the selling agent or developer directly to obtain any information which may be available under the terms of The Energy Performance of Buildings (Certificates and Inspections) (England and Wales) Regulations 2007 or the Home Report if in relation to a residential property in Scotland.
Auction Fees: The purchase of this property may include associated fees not listed here, as it is to be sold via auction. To find out more about the fees associated with this property please call Butters John Bee Land, Stoke-on-Trent on 01782 493945.
*Guide Price: An indication of a seller's minimum expectation at auction and given as a Guide Price or a range of Guide Prices. This is not necessarily the figure a property will sell for and is subject to change prior to the auction.
Reserve Price: Each auction property will be subject to a Reserve Price below which the property cannot be sold at auction. Normally the Reserve Price will be set within the range of Guide Prices or no more than 10% above a single Guide Price.
Map data ©OpenStreetMap contributors.






