Balkerach Street, Doune, FK16

- PROPERTY TYPE
Cottage
- BEDROOMS
2
- BATHROOMS
2
- SIZE
958 sq ft
89 sq m
- TENUREDescribes how you own a property. There are different types of tenure - freehold, leasehold, and commonhold.Read more about tenure in our glossary page.
Freehold
Key features
- Charming semi-detached cottage in the heart of Doune
- Spacious ground-floor layout with two bedrooms and two bathrooms
- Attic-level study accessed via a feature spiral staircase
- Private front and rear gardens with stone walls and timber fencing
- Rear parking area offering valuable off-street convenience
Description
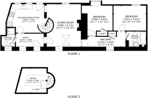
Myrtle Cottage blends traditional appeal with thoughtful extensions and adaptations, creating a home that feels both welcoming and versatile. The ground floor arrangement flows naturally, with the lounge positioned to offer a cosy focal point for everyday living. The kitchen/diner provides ample space for cooking, dining and entertaining, with enough room to accommodate family gatherings or more intimate meals. Both bedrooms on this level offer comfortable accommodation, while the bathroom and separate shower room add to the property’s practicality, ensuring flexibility for households or visiting guests. The utility room and rear porch contribute further storage and functionality, making the home particularly well suited to modern lifestyles.
The spiral staircase leading to the attic floor introduces a sense of character and charm, opening into a peaceful study area ideal for home working, hobbies or simply enjoying a quiet corner away from the main living spaces. This versatile room has previously been used as a third bedroom and is capable of accommodating a double bed, offering additional flexibility for varying household needs.
Externally, the property sits within established garden grounds that complement its traditional style. The front garden creates an attractive approach from Balkerach Street, offering a secluded outdoor space perfect for relaxing or gardening. Stone walls and timber fencing provide both privacy and a sense of enclosure, enhancing the cottage’s overall appeal. The dedicated parking area at the rear ensures convenient access without compromising the charm of the garden setting.
Located within the desirable village of Doune, the cottage benefits from a wide range of nearby amenities including shops, cafés, leisure facilities and primary schooling. The village’s mix of historic and modern properties gives the area a distinctive character, while accessible transport links make it a convenient base for commuting to Stirling, Dunblane and beyond. Myrtle Cottage stands as a delightful and practical home in a sought-after setting, offering comfort, charm and everyday convenience.
EPC Rating: D
- COUNCIL TAXA payment made to your local authority in order to pay for local services like schools, libraries, and refuse collection. The amount you pay depends on the value of the property.Read more about council Tax in our glossary page.
- Band: E
- PARKINGDetails of how and where vehicles can be parked, and any associated costs.Read more about parking in our glossary page.
- Yes
- GARDENA property has access to an outdoor space, which could be private or shared.
- Yes
- ACCESSIBILITYHow a property has been adapted to meet the needs of vulnerable or disabled individuals.Read more about accessibility in our glossary page.
- Ask agent
Energy performance certificate - ask agent
Balkerach Street, Doune, FK16
Add an important place to see how long it'd take to get there from our property listings.
__mins driving to your place
Get an instant, personalised result:
- Show sellers you’re serious
- Secure viewings faster with agents
- No impact on your credit score
Your mortgage
Notes
Staying secure when looking for property
Ensure you're up to date with our latest advice on how to avoid fraud or scams when looking for property online.
Visit our security centre to find out moreDisclaimer - Property reference 8e7a386a-b065-4545-8ece-969466391dc6. The information displayed about this property comprises a property advertisement. Rightmove.co.uk makes no warranty as to the accuracy or completeness of the advertisement or any linked or associated information, and Rightmove has no control over the content. This property advertisement does not constitute property particulars. The information is provided and maintained by Clyde Property, Stirling. Please contact the selling agent or developer directly to obtain any information which may be available under the terms of The Energy Performance of Buildings (Certificates and Inspections) (England and Wales) Regulations 2007 or the Home Report if in relation to a residential property in Scotland.
*This is the average speed from the provider with the fastest broadband package available at this postcode. The average speed displayed is based on the download speeds of at least 50% of customers at peak time (8pm to 10pm). Fibre/cable services at the postcode are subject to availability and may differ between properties within a postcode. Speeds can be affected by a range of technical and environmental factors. The speed at the property may be lower than that listed above. You can check the estimated speed and confirm availability to a property prior to purchasing on the broadband provider's website. Providers may increase charges. The information is provided and maintained by Decision Technologies Limited. **This is indicative only and based on a 2-person household with multiple devices and simultaneous usage. Broadband performance is affected by multiple factors including number of occupants and devices, simultaneous usage, router range etc. For more information speak to your broadband provider.
Map data ©OpenStreetMap contributors.







