
Marlborough Street, London, SW3

- PROPERTY TYPE
Apartment
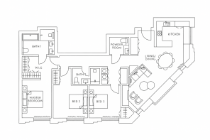
- BEDROOMS
3
- BATHROOMS
2
- SIZE
1,492 sq ft
139 sq m
- TENUREDescribes how you own a property. There are different types of tenure - freehold, leasehold, and commonhold.Read more about tenure in our glossary page.
Ask agent
Key features
- New Home - Ready to move in
- Gym & wellness suite
- Residents' Amenities
- 24h Concierge
- Low Service Charge
- Good Storage Space
- Great for investors and end users
Description
This beautifully finished 3-bedroom, 2-bathroom apartment with an additional powder room offers refined modern living in one of London's most desirable postcodes. Combining contemporary design, bright open-plan interiors and thoughtful detailing throughout, this impressive 1492 sq ft residence provides an ideal home for professionals seeking style, comfort and superb transport links in the heart of Chelsea district.
Apartment Highlights
Elegant open-plan living and dining area benefiting from excellent natural light
Sleek contemporary kitchen with integrated appliances and polished finishes
3 Spacious double bedroom with fitted wardrobes
2 Modern bathroom featuring premium fixtures and clean, refined styling
Separate powder room, perfect for guests
Bright interiors and thoughtfully designed storage solutions throughout
Location
Ideally positioned in one of Chelsea's most prestigious and sought-after neighbourhoods, the apartment offers effortless access to local boutiques, cafés, riverside walks and Michelin-starred dining. Excellent transport links nearby provide quick connections to the West End, Sloane Square, South Kensington, and the wider city. This vibrant area blends culture, elegance and convenience, making it one of London's most desirable districts for modern urban living.
Value
A rare opportunity to secure a luxury 3-bedroom residence offering generous space, contemporary design and exceptional connectivity in a prime Chelsea location. The combination of refined interiors, modern conveniences and a highly coveted postcode makes this a standout home for those seeking sophisticated city living.
Contact us today to arrange your private viewing of this exceptional Chelsea apartment.
- COUNCIL TAXA payment made to your local authority in order to pay for local services like schools, libraries, and refuse collection. The amount you pay depends on the value of the property.Read more about council Tax in our glossary page.
- Ask agent
- PARKINGDetails of how and where vehicles can be parked, and any associated costs.Read more about parking in our glossary page.
- Residents
- GARDENA property has access to an outdoor space, which could be private or shared.
- Ask agent
- ACCESSIBILITYHow a property has been adapted to meet the needs of vulnerable or disabled individuals.Read more about accessibility in our glossary page.
- Lift access
Energy performance certificate - ask agent
Marlborough Street, London, SW3
Add an important place to see how long it'd take to get there from our property listings.
__mins driving to your place
Get an instant, personalised result:
- Show sellers you’re serious
- Secure viewings faster with agents
- No impact on your credit score
Your mortgage
Notes
Staying secure when looking for property
Ensure you're up to date with our latest advice on how to avoid fraud or scams when looking for property online.
Visit our security centre to find out moreDisclaimer - Property reference Chelsea029. The information displayed about this property comprises a property advertisement. Rightmove.co.uk makes no warranty as to the accuracy or completeness of the advertisement or any linked or associated information, and Rightmove has no control over the content. This property advertisement does not constitute property particulars. The information is provided and maintained by HydeRealEstate, London. Please contact the selling agent or developer directly to obtain any information which may be available under the terms of The Energy Performance of Buildings (Certificates and Inspections) (England and Wales) Regulations 2007 or the Home Report if in relation to a residential property in Scotland.
*This is the average speed from the provider with the fastest broadband package available at this postcode. The average speed displayed is based on the download speeds of at least 50% of customers at peak time (8pm to 10pm). Fibre/cable services at the postcode are subject to availability and may differ between properties within a postcode. Speeds can be affected by a range of technical and environmental factors. The speed at the property may be lower than that listed above. You can check the estimated speed and confirm availability to a property prior to purchasing on the broadband provider's website. Providers may increase charges. The information is provided and maintained by Decision Technologies Limited. **This is indicative only and based on a 2-person household with multiple devices and simultaneous usage. Broadband performance is affected by multiple factors including number of occupants and devices, simultaneous usage, router range etc. For more information speak to your broadband provider.
Map data ©OpenStreetMap contributors.





