
Commercial property for sale
Princes Avenue, Douglas, IM2
- PROPERTY TYPE
Commercial Property
- SIZE
Ask agent
Key features
- Cash buyers only — offering a fast, straightforward transaction for investors or developers
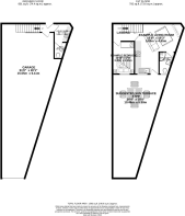
- Freehold garage/workshop with WC and utility area above.
- Opportunity for residential conversion (1-bed apartment) STPP
- Potential for external terrace or outdoor use subject to approvals
- Suitable for multiple commercial uses including storage, workshop, small business base
- Positioned close to Douglas shops, transport links and local amenities
Description
An exciting commercial investment opportunity situated in a central Douglas location, comprising a substantial freehold garage/workshop building extending to approximately 549 sq ft (51 m²) with ancillary WC and utility space.
Investment & Development Opportunity
This property presents a chance for investors, developers, or owner-occupiers looking to unlock value through redevelopment or change of use, subject to planning consent (STPP):
Garage/workshop unit ideal for continued commercial use as storage, vehicle bay, workshop or light industrial base.
Upper utility/WC space currently configured above the garage could be transformed into a 1-bed apartment or ancillary commercial area, maximising footprint and income potential STPP.
Opportunity exists to incorporate a sun terrace or external amenity area off the upper level subject to planning approval.
With strong demand in the Douglas area for flexible commercial and mixed-use spaces, this property represents a blank canvas for creative redevelopment and long-term value enhancement.
Princes Avenue, Douglas, IM2
NEAREST STATIONS
Distances are straight line measurements from the centre of the postcode- Bangor, Northern Ireland Station59.1 miles
Notes
Disclaimer - Property reference efecc875-9256-4a76-83d4-8c49bba8c0fb. The information displayed about this property comprises a property advertisement. Rightmove.co.uk makes no warranty as to the accuracy or completeness of the advertisement or any linked or associated information, and Rightmove has no control over the content. This property advertisement does not constitute property particulars. The information is provided and maintained by Partners Real Estate, Isle of Man. Please contact the selling agent or developer directly to obtain any information which may be available under the terms of The Energy Performance of Buildings (Certificates and Inspections) (England and Wales) Regulations 2007 or the Home Report if in relation to a residential property in Scotland.
Map data ©OpenStreetMap contributors.




