
Albany Close, Bridgwater, TA6

Letting details
- Let available date:
- Now
- Deposit:
- £1,701A deposit provides security for a landlord against damage, or unpaid rent by a tenant.Read more about deposit in our glossary page.
- Min. Tenancy:
- Ask agent How long the landlord offers to let the property for.Read more about tenancy length in our glossary page.
- Let type:
- Long term
- Furnish type:
- Unfurnished
- Council Tax:
- Ask agent
This property is Built For Renters.
- PROPERTY TYPE
House
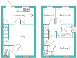
- BEDROOMS
3
- SIZE
Ask agent
Key features
- Car Park Space
- Dishwasher
- Fridge/Freezer
- Washing/Drying Machine
- Carpets & Laminate Throughout
- Security Alarm
- Modern Kitchen
- Private Garden
Description
Brand new stunning 3 bedroom "Danbury" property situated three miles north of Bridgwater, an area known for it’s beautiful green landscapes and rivers, as well as being close to the Somerset coast.
Westminster Walk provides an idyllic location for those looking for a semi-rural setting. Residents will be able to benefit from a range of local amenities such as Quantock Hills which offer breath-taking natural views, as well as local retail shopping. The development is also located to the picturesque village of Horsey in Kings Down, and is less than a 37 mile journey to Bristol’s vibrant city centre, allowing for plenty of fun days out.
For those looking to commute, the development is within close proximity to the M5 and Bridgwater train station, providing easy and regular access to the surrounding areas such as Taunton, Bristol and Bath. Westminster Walk serves as a great location and hub to call home.
To access the development, please use postcode TA6 4GQ (Augusta Drive).
What3Words – reconnect.passion.prettiest
Rent: £1475pcm
Deposit: £1701
Tenancy Length: 12 Months
Available: NOW
Images are demonstrative of this property type. The images are therefore not plot or site specific and spec may vary slightly. Properties are let unfurnished.
At Simple Life, we appreciate how important your furry companions are to you, that’s why we have allocated a pet allowance per site, helping your pets to feel right at home too. All pets need to be applied for in advance using the Pet Application Form. Submitting an application form does not guarantee pet acceptance. Simple Life reserve the right to refuse any pets at any time. For more details please see our full Pet Policy.
- COUNCIL TAXA payment made to your local authority in order to pay for local services like schools, libraries, and refuse collection. The amount you pay depends on the value of the property.Read more about council Tax in our glossary page.
- Ask agent
- PARKINGDetails of how and where vehicles can be parked, and any associated costs.Read more about parking in our glossary page.
- Yes
- GARDENA property has access to an outdoor space, which could be private or shared.
- Yes
- ACCESSIBILITYHow a property has been adapted to meet the needs of vulnerable or disabled individuals.Read more about accessibility in our glossary page.
- Ask agent
Energy performance certificate - ask agent

On-site perks of living at this Built for Renters development
Additional costs may apply for some services – please check the full property description above.
- 24hr maintenance
- Long term contracts
- Pets allowed
- Professional management
Albany Close, Bridgwater, TA6
Add an important place to see how long it'd take to get there from our property listings.
__mins driving to your place
Notes
Staying secure when looking for property
Ensure you're up to date with our latest advice on how to avoid fraud or scams when looking for property online.
Visit our security centre to find out moreDisclaimer - Property reference SL-WW2-460. The information displayed about this property comprises a property advertisement. Rightmove.co.uk makes no warranty as to the accuracy or completeness of the advertisement or any linked or associated information, and Rightmove has no control over the content. This property advertisement does not constitute property particulars. The information is provided and maintained by Simple Life Management Ltd, Westminster Walk. Please contact the selling agent or developer directly to obtain any information which may be available under the terms of The Energy Performance of Buildings (Certificates and Inspections) (England and Wales) Regulations 2007 or the Home Report if in relation to a residential property in Scotland.
*This is the average speed from the provider with the fastest broadband package available at this postcode. The average speed displayed is based on the download speeds of at least 50% of customers at peak time (8pm to 10pm). Fibre/cable services at the postcode are subject to availability and may differ between properties within a postcode. Speeds can be affected by a range of technical and environmental factors. The speed at the property may be lower than that listed above. You can check the estimated speed and confirm availability to a property prior to purchasing on the broadband provider's website. Providers may increase charges. The information is provided and maintained by Decision Technologies Limited. **This is indicative only and based on a 2-person household with multiple devices and simultaneous usage. Broadband performance is affected by multiple factors including number of occupants and devices, simultaneous usage, router range etc. For more information speak to your broadband provider.
Map data ©OpenStreetMap contributors.





