Christ Church, Barbados
- PROPERTY TYPE
Villa
- BEDROOMS
3
- BATHROOMS
2
- SIZE
Ask agent
Description
Discover modern living at The Residences at Coverley, a brand-new turnkey community that blends contemporary design with sustainable features. Developed by the creators of Barbados’ first master-planned neighbourhood, The Villages at Coverley, this thoughtfully planned development offers safety, security, and a welcoming environment just minutes from the island’s south coast.
Community Highlights
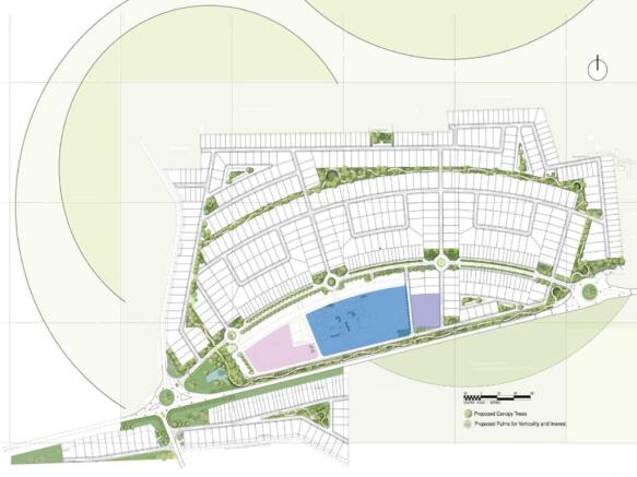
The first of four phases offers a selection of one- and two-storey homes, from sleek standalone residences to stylish townhouses with three or four bedrooms. Thoughtfully designed for comfort and well-being, the community features landscaped gardens, pocket parks, children’s play areas, sports courts, shaded seating zones, and a scenic nature trail lined with canopy trees and vibrant shrubs. Each home will also be complemented by its own tree, enhancing the lush and inviting setting.
At the heart of the neighbourhood will be a vibrant new Town Square, complete with shaded seating areas, dining venues, retail outlets, green spaces, and a large supermarket, while the neighbouring Villages at Coverley Town Square provides even more options for shopping, dining, and entertainment.
Featured Home – Cascade
Cascade is a spacious three-bedroom, two-and-a-half-bathroom home designed with modern living in mind. It features an open-plan layout, a fully equipped kitchen with appliances, and a master suite with a walk-in closet. A large patio extends the living space outdoors, while paved parking, a fenced backyard, and landscaped gardens complete this inviting residence.
Location & Investment
Ideally situated, The Residences at Coverley is minutes from south coast beaches, fine restaurants, golf courses, tennis facilities, and other attractions. With projected rental returns of 4%–6% depending on the model, these homes offer both modern comfort and excellent investment potential.
Thank you for exploring our portfolio of properties at MG Luxury Realty. As a premier real estate agency specializing in luxury homes on the West Coast of Barbados and local development sales across the island, we pride ourselves on our boutique presence and commitment to excellence.
Our vision is to be your one-stop shop for all your real estate needs, offering personalized service tailored to your unique requirements and ensuring a seamless experience from start to finish. With our expedited turnaround time, you can trust that we are here to assist you promptly.
Contact Us
For more information on this listing or to discuss how we can help you find your dream property, please do not hesitate to contact us at or +246.843.0952. We look forward to being your trusted choice for real estate in Barbados.
Follow us on Instagram at @mgluxerealty for the latest in luxury real estate updates and exclusive listings.
Christ Church, Barbados
NEAREST AIRPORTS
Distances are straight line measurements- Grantley Adams(International)1.4 miles
Notes
This is a property advertisement provided and maintained by MG Luxury Realty, Barbados (reference 30463) and does not constitute property particulars. Whilst we require advertisers to act with best practice and provide accurate information, we can only publish advertisements in good faith and have not verified any claims or statements or inspected any of the properties, locations or opportunities promoted. Rightmove does not own or control and is not responsible for the properties, opportunities, website content, products or services provided or promoted by third parties and makes no warranties or representations as to the accuracy, completeness, legality, performance or suitability of any of the foregoing. We therefore accept no liability arising from any reliance made by any reader or person to whom this information is made available to. You must perform your own research and seek independent professional advice before making any decision to purchase or invest in overseas property.



