
4 bedroom detached house for sale
Merchant Fields Hunsworth Lane Cleckheaton BD19 4EA

- PROPERTY TYPE
Detached
- BEDROOMS
4
- SIZE
Ask developer
- TENUREDescribes how you own a property. There are different types of tenure - freehold, leasehold, and commonhold.Read more about tenure in our glossary page.
Ask developer
Key features
- NOW SELLING FROM VICTORIA HEIGHTS
- Beautifully designed four-bedroom detached family home
- Light-filled lounge with feature bay window
- Spacious open plan kitchen-diner with french doors to the garden
- Practical utility room with access to wc and back door
- Master bedroom complete with private en-suite
- Three further bedrooms offering flexible family space
- Modern family bathroom with elegant finishes
- Energy-efficient design helping to reduce household costs
- NHBC 10 year warranty giving you peace of mind
Description
MERCHANTS FIELDS, CLECKHEATON - NOW SELLING FROM VICTORIA HEIGHTS DEVELOPMENT IN FIXBY
Opening Times
Thursday - Monday 10.30am - 5.30pm
Surrounded by rolling fields and just a short drive from Leeds, the town of Cleckheaton offers a great countryside location, providing everything you need for a full and active life.
Offering everything you could wish for in a modern family home, the properties at Merchant Fields have been carefully designed to suit a range of lifestyles without compromising on quality.
With a selection of 2, 3 & 4 bedroom homes, each property features light-filled living areas, contemporary kitchens, and stylish bathrooms - all finished to the highest specification.
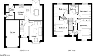
THE FAVERSHAM
The Faversham is the perfect example of how a Harron home enhances everyday life, offering thoughtful design, generous living spaces, and timeless style.
Ground Floor
Step inside to a spacious hallway leading to a bright, light-filled lounge with a beautiful bay window - the perfect space to unwind or spend time with family. Spanning the rear of the home, the high-specification kitchen-diner is ideal for both entertaining and daily family life. French doors open out to the rear garden, creating a seamless transition between indoor and outdoor living. A practical utility room provides access to the guest WC and a back door to the garden, making this home as functional as it is stylish.
First Floor
Upstairs, the Faversham offers three generous double bedrooms and a charming single bedroom, providing flexibility for families, guests, or home working. The principal bedroom benefits from a private en-suite shower room, while the remaining bedrooms are served by a sleek and modern family bathroom. Thoughtful storage spaces throughout the home ensure a clutter-free environment that supports modern living.
Dimensions
Lounge 2935 x 4720 mm (10' x 15')
Dining Area 2690 x 3375 mm (9' x 11')
Kitchen 3460 x 3160 mm (11' x 10')
Utility 1975 x 1560 mm (6' x 5')
WC 1975 x 1500 mm (6' x 5')
Bedroom 1 2935 x 4535 mm (10' x 15')
En Suite 1965 x 2010 mm (6' x 7')
Bedroom 2 3120 x 4280 mm (10' x 14')
Bedroom 3 2940 x 3135 mm (10' x 10')
Bedroom 4 3250 x 2500 mm (11' x 8')
Bathroom 2200 x 2000 mm (7' x 7')
HARRON HOMES
Known for spacious designs, premium specifications, and exceptional attention to detail, Harron Homes builds homes that combine style, comfort, and skilled craftmanship - all in handpicked locations. Our mission is simple: to help people find their dream home and make the move with confidence.
***
Please note images used may be of a similar property and are for illustrative purposes only, For a detailed overview of this homes internal and external specification, please speak with our Sales Executive.
We endeavour to make our property particulars accurate and reliable. However, they do not constitute or form any part of an offer or any contract and none is to be relied upon as statements of representation or fact. If measurements are displayed these have been taken as a guide and may not be precise. If you require clarification or further information on any points, please contact us.
All incentives advertised are plot and development specific. Incentives advertised are only available on released homes and cannot be used in conjunction with any home buying scheme. Monetary amounts advertised are for guidance only and may differ dependent on individual plot.
For more information, please speak with your Sales Executive.
- COUNCIL TAXA payment made to your local authority in order to pay for local services like schools, libraries, and refuse collection. The amount you pay depends on the value of the property.Read more about council Tax in our glossary page.
- Ask developer
- PARKINGDetails of how and where vehicles can be parked, and any associated costs.Read more about parking in our glossary page.
- Ask developer
- GARDENA property has access to an outdoor space, which could be private or shared.
- Yes
- ACCESSIBILITYHow a property has been adapted to meet the needs of vulnerable or disabled individuals.Read more about accessibility in our glossary page.
- Ask developer
Energy performance certificate - ask developer
Merchant Fields Hunsworth Lane Cleckheaton BD19 4EA
Add an important place to see how long it'd take to get there from our property listings.
__mins driving to your place
Get an instant, personalised result:
- Show sellers you’re serious
- Secure viewings faster with agents
- No impact on your credit score
About Harron Homes
Surrounded by rolling fields and just a short drive from Leeds, the town of Cleckheaton offers a great countryside location, providing everything you need for a full and active life. Merchant Fields offers convenient access to the M62 motorway, with the City of Leeds approximately just 20 minutes way.
A place to call home
Offering everything you could wish for in a modern family home, the properties at Merchant Fields have been carefully designed to suit modern living without compromising on luxury details. Finished to the highest specification, the homes showcase light filled living areas, contemporary kitchens and stylish bathrooms.
Your mortgage
Notes
Staying secure when looking for property
Ensure you're up to date with our latest advice on how to avoid fraud or scams when looking for property online.
Visit our security centre to find out moreDisclaimer - Property reference Faversham. The information displayed about this property comprises a property advertisement. Rightmove.co.uk makes no warranty as to the accuracy or completeness of the advertisement or any linked or associated information, and Rightmove has no control over the content. This property advertisement does not constitute property particulars. The information is provided and maintained by Harron Homes. Please contact the selling agent or developer directly to obtain any information which may be available under the terms of The Energy Performance of Buildings (Certificates and Inspections) (England and Wales) Regulations 2007 or the Home Report if in relation to a residential property in Scotland.
*This is the average speed from the provider with the fastest broadband package available at this postcode. The average speed displayed is based on the download speeds of at least 50% of customers at peak time (8pm to 10pm). Fibre/cable services at the postcode are subject to availability and may differ between properties within a postcode. Speeds can be affected by a range of technical and environmental factors. The speed at the property may be lower than that listed above. You can check the estimated speed and confirm availability to a property prior to purchasing on the broadband provider's website. Providers may increase charges. The information is provided and maintained by Decision Technologies Limited. **This is indicative only and based on a 2-person household with multiple devices and simultaneous usage. Broadband performance is affected by multiple factors including number of occupants and devices, simultaneous usage, router range etc. For more information speak to your broadband provider.
Map data ©OpenStreetMap contributors.





