
Small Ridge, Lichfield

- PROPERTY TYPE
Semi-Detached
- BEDROOMS
4
- BATHROOMS
1
- SIZE
Ask agent
- TENUREDescribes how you own a property. There are different types of tenure - freehold, leasehold, and commonhold.Read more about tenure in our glossary page.
Freehold
Key features
- Stunning three bedroom property
- Generous corner plot
- Substantial ground floor extension
- Renovated with new electrics, plumbing and central heating
- New fitted kitchen and bathroom
- Corner plot with south west facing garden
Description
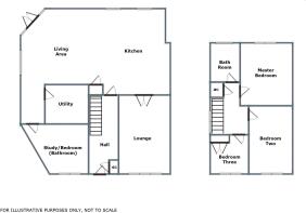
The property has undergone a full refurbishment and considerable extension and briefly comprises: entrance hallway, front lounge, open plan living area which incorporates the kitchen, dining and sitting areas, separate utility room, plus versatile front room that could be a study, sitting room (with plumbing provisions for an extra bathroom. The first floor landing leads to the three bedrooms and modern fitted bathroom suite.
Externally, the property occupies a generous end corner plot, which features a private front driveway with parking for at least two vehicles, plus a large rear garden, which collect the sun all day. There is also a outbuilding with electric and lighting, ideal for use as storage or conversion into a garden room/home office etc.
Work undertaken on the property includes new electrics, plumbing and gas central heating system, new kitchen and bathroom, new windows and doors as well as the large ground floor extension.
Situated in the cathedral city of Lichfield and within walking distance of the city centre which offers a diverse range of amenities including local shops, cafes, restaurants and the Garrick Theatre. Excellent commuter links are available with the A38, M6 toll road, A5, A452 and there are both Cross and Inter City railway lines available with Lichfield City Station & Lichfield Trent Valley. The property falls into the catchment for The Friary secondary school.
RECEPTION HALL:
Entrance door, ceiling light point, useful storage cupboard and under stairs storage, radiator, spot lights and door to the kitchen.
LOUNGE:
10' 6'' x 16' 3'' (3.20m x 4.96m)
Feature ornamental fireplace, carpeted flooring, light point, fitted cabinets, window to the front, radiator and French doors to the kitchen.
OPEN PLAN LIVING AREA:
31' 0'' x 17' 11'' (9.45m x 5.47m)
Stunning open plan living space which incorporated the living and dining areas as well as the kitchen, and features: spot lighting and inset LED strip lighting, log burner, orangery style ceiling sky light, French doors to the garden, further tilt and turn window/doors to the garden, pantry cupboard and corridor to the utility and front room.
KITCHEN:
Range of matching modern fitted wall and base units incorporating cabinets, drawers and quartz work surfaces including breakfast bar, inset bowl sink and drainer with mono tap, integrated twin oven and grill plus 5 ring hob, further integrated dishwasher and fridge freezer plus pull out larder
Cupboards.
UTILITY:
8' 10'' x 7' 11'' (2.68m x 2.42m)
Fitted wall and base units with concrete tops, bowl sink and mono tap, space and plumbing for a washing machine and dryer, ceiling spot lights.
FRONT ROOM:
13' 1'' max x 7' 11'' (4.00m x 2.42m)
Versatile room with plumbing provisions in place for a bathroom, but could be used as a further sitting room, study etc.
FIRST FLOOR LANDING:
Carpeted flooring, ceiling light point, window to the side, airing cupboard, doors off to three bedrooms, family bathroom and loft hatch.
BEDROOM ONE:
10' 8'' x 12' 10'' (3.25m x 3.91m)
Carpeted flooring, radiator, ceiling light point and window to the rear.
BEDROOM TWO:
9' 11'' x 11' 10'' (3.02m x 3.60m)
Carpeted flooring, ceiling light point, radiator and window to the front.
BEDROOM THREE:
6' 8'' x 8' 2'' (2.03m x 2.50m)
Built in wardrobe, carpeted flooring, ceiling light point, radiator and window to the front.
FAMILY BATHROOM:
Contemporary suite comprising: bath with gold side taps and shower attachments, wash hand basin set on drawer and shelving unit with gold taps, low level W/C, wall tiling, tiled flooring, heated towel rail, spot lights and light point, window to the rear.
VIEWING:
Please contact us on if you would like to arrange a viewing appointment for this property or require further information.
DISCLAIMER:
These particulars are set up as a general outline only for the guidance of intending purchasers or lessees, and do not constitute part of an offer or contract. The sellers has given permission for all descriptions, dimensions, references to conditions, tenure, service charges and necessary permissions for use, occupation and other details to be used and we have taken them in good faith whether included or not & whilst we believe them to be correct, any intending purchasers or tenants should not rely on them as representations or fact but must satisfy themselves by inspection or otherwise as to the correctness of each of them and have this certified during the conveyancing by their solicitor. No person in the employment of Lovett&Co has any authority to make or give any representation or warranty whatsoever in relation to this property.
Brochures
Property BrochureFull Details- COUNCIL TAXA payment made to your local authority in order to pay for local services like schools, libraries, and refuse collection. The amount you pay depends on the value of the property.Read more about council Tax in our glossary page.
- Band: C
- PARKINGDetails of how and where vehicles can be parked, and any associated costs.Read more about parking in our glossary page.
- Yes
- GARDENA property has access to an outdoor space, which could be private or shared.
- Yes
- ACCESSIBILITYHow a property has been adapted to meet the needs of vulnerable or disabled individuals.Read more about accessibility in our glossary page.
- Ask agent
Energy performance certificate - ask agent
Small Ridge, Lichfield
Add an important place to see how long it'd take to get there from our property listings.
__mins driving to your place
Get an instant, personalised result:
- Show sellers you’re serious
- Secure viewings faster with agents
- No impact on your credit score
Your mortgage
Notes
Staying secure when looking for property
Ensure you're up to date with our latest advice on how to avoid fraud or scams when looking for property online.
Visit our security centre to find out moreDisclaimer - Property reference 12685124. The information displayed about this property comprises a property advertisement. Rightmove.co.uk makes no warranty as to the accuracy or completeness of the advertisement or any linked or associated information, and Rightmove has no control over the content. This property advertisement does not constitute property particulars. The information is provided and maintained by Lovett&Co. Estate Agents, Lichfield. Please contact the selling agent or developer directly to obtain any information which may be available under the terms of The Energy Performance of Buildings (Certificates and Inspections) (England and Wales) Regulations 2007 or the Home Report if in relation to a residential property in Scotland.
*This is the average speed from the provider with the fastest broadband package available at this postcode. The average speed displayed is based on the download speeds of at least 50% of customers at peak time (8pm to 10pm). Fibre/cable services at the postcode are subject to availability and may differ between properties within a postcode. Speeds can be affected by a range of technical and environmental factors. The speed at the property may be lower than that listed above. You can check the estimated speed and confirm availability to a property prior to purchasing on the broadband provider's website. Providers may increase charges. The information is provided and maintained by Decision Technologies Limited. **This is indicative only and based on a 2-person household with multiple devices and simultaneous usage. Broadband performance is affected by multiple factors including number of occupants and devices, simultaneous usage, router range etc. For more information speak to your broadband provider.
Map data ©OpenStreetMap contributors.





