
Eddington Avenue, Cambridge, CB3

- PROPERTY TYPE
Apartment
- BEDROOMS
1
- SIZE
Ask developer
Key features
- Ready to move into now
- Built by award-winning 5* housebuilder
- Spacious double bedroom with full height triple glazing & bespoke, built-in wardrobe
- Bespoke kitchen with fully integrated prestigious brand energy efficient appliances & Caesarstone worktops
- Concierge service- open 7 days a week
- Residents rooftop garden offering views towards the City and green open space
- Walking distance to University of Cambridge Primary School and Eddingtons market square, shops, restaurants and other amenities within walking distance
Description
Apartment 72 is an impeccably finished one-bedroom apartment located on the second floor of The Icon, with high ceilings and private terrace with views looking towards Eddingtons market square.
Sales Suite Address: Eddington Avenue, Cambridge, CB3 1SE. Opening Times: Open Daily, 10am-5:30pm.
Property Highlights
- Secure underground parking with access to EV charging
- Private terrace with views towards the Market Square
- Spacious open-plan kitchen/dining/living area
- Underfloor heating throughout
- Approx 565sq ft.
Out and about
The Icon is set within the thriving community of Eddington, a highly sustainable new neighbourhood, conveniently located just 1.9 miles from Cambridge city centre. Eddington is a place in its own right, with all the elements needed for a community to thrive. These include a hotel, school, nursery, shops, market square, community centre, sports facilities and over 50 hectares of open space for people to enjoy, meet each other and make connections.
Within reach of the development itself, The Icon boasts excellent facilities, including:
- University of Cambridge Primary School
- Market Square with shops and supermarket
- Storey’s field centre and nursery
- Chesterton Community College
- Five Acres Park
- The University of Cambridge
Venture further afield and visit Cambridge City Centre, where you find numerous shopping centres, boutiques, independent stores, a bustling market and plenty of places to eat, drink and meet. The famous Cambridge Market Square sells a huge range of goods, while the long-running All Saints Craft Market is the place to pick up unique and handmade items such as jewellery, pottery, photographs and paintings.
Transportation
- Cambridge railway station is just an 18 minute cycle where you will find direct trains to central London, reaching the Capital in less than an hour.
- For international travel, Stansted Airport is just a 30 minute train journey.
- Cycling and pedestrian routes weave their way through Knights Park and across Eddington, with cycle lanes taking you into Cambridge city centre.
- The M11 motorway is just 4-minutes from The Icon, connecting you to both the M25 and London.
Next Steps
Contact our sales team to arrange a viewing and visit your dream home at the award winningThe Icon development.
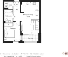
Apartment 72, The Icon Floorplan
Kitchen / Dining / Living Room - 3.75m x 6.5m (12'4" x 21'4")
Bedroom - 3.25m x 2.95m (10'8" x 9'8")
Terrace - 3.3m x 1.4m (10'10" x 4'7")
- COUNCIL TAXA payment made to your local authority in order to pay for local services like schools, libraries, and refuse collection. The amount you pay depends on the value of the property.Read more about council Tax in our glossary page.
- Band: TBC
- PARKINGDetails of how and where vehicles can be parked, and any associated costs.Read more about parking in our glossary page.
- Yes
- GARDENA property has access to an outdoor space, which could be private or shared.
- Yes
- ACCESSIBILITYHow a property has been adapted to meet the needs of vulnerable or disabled individuals.Read more about accessibility in our glossary page.
- Ask developer
Energy performance certificate - ask developer
- Multi-award-winning sustainable development in Eddington, Cambridge
- Minutes from The University of Cambridge Primary School
- Excellent amenities close by - including a supermarket, café, restaurants, hotel, and community centre
- Outstanding transport links to Cambridge City, M11 and beyond
Eddington Avenue, Cambridge, CB3
Add an important place to see how long it'd take to get there from our property listings.
__mins driving to your place
Get an instant, personalised result:
- Show sellers you’re serious
- Secure viewings faster with agents
- No impact on your credit score
About Hill Residential Limited
The Hill Group is a top 10 housebuilder* and one of the leading developers in London, the home counties, and the South. The company is renowned for its partnership ethos, specialising in the building of distinctive new places and communities where people want to live, work, and socialise.
In its 26th year, this family-owned and operated company has grown to establish itself as the UK's second-largest privately-owned housebuilder, with an impressive and diverse portfolio of projects ranging from landmark, mixed-use regenerations, and inner-city apartment developments to homes in rural communities.
Employing over 950 staff, the company operates from six strategically located regional offices including Bristol and Abingdon to help facilitate growth in the South West and the Midlands, with its head office based in Waltham Abbey, Essex.
Hill completed more than 2,800 homes in the last financial year and has a development pipeline of over 32,000 homes, including 10,200 with planning consent. Around half of its portfolio is in joint ventures to deliver a range of mixed-tenure developments, reflecting Hill’s commitment to partnerships with government, local authorities, housing associations, and private clients.
Since the company was founded in 1999, Hill has won over 500 industry awards, including the esteemed title of WhatHouse? Housebuilder of the Year in 2015, 2020 and 2023. Most recently in 2024, Millside Grange in Croxley Green also won The Standard’s Homes & Property Award for Best Commuter Home.
In addition, Hill’s dedication to delivering the highest quality homes and exceptional customer service has earned the housebuilder its 5-star status in the Home Builders Federation’s annual Customer Satisfaction Survey for the past eight years. Hill is a registered developer with the New Homes Quality Board (NHQB) and follows the New Homes Quality Code (NHQC), a new industry standard to ensure high-quality homes and an exceptional customer experience. With a score of 4.8 out of 5, Hill is also ranked as the number one housebuilder on Trustpilot.
Hill is donating 200 fully equipped modular homes to local authorities and homeless charities as part of a £15 million pledge through its Foundation 200 programme, launched in 2019 to mark Hill’s 20th anniversary.
Follow us on LinkedIn and Instagram @HillGroupUK
For more information, contact The Oracle Group PR Agency on Tel: 020 8394 2821 or hill@oraclepr.co.uk
*The Hill Group was listed within the top 10 of the Top 150 UK Contractors and Housebuilders published by Building.co.uk in December 2024
Your mortgage
Notes
Staying secure when looking for property
Ensure you're up to date with our latest advice on how to avoid fraud or scams when looking for property online.
Visit our security centre to find out moreDisclaimer - Property reference 1_TheIcn-Aprtmnt72. The information displayed about this property comprises a property advertisement. Rightmove.co.uk makes no warranty as to the accuracy or completeness of the advertisement or any linked or associated information, and Rightmove has no control over the content. This property advertisement does not constitute property particulars. The information is provided and maintained by Hill Residential Limited. Please contact the selling agent or developer directly to obtain any information which may be available under the terms of The Energy Performance of Buildings (Certificates and Inspections) (England and Wales) Regulations 2007 or the Home Report if in relation to a residential property in Scotland.
*This is the average speed from the provider with the fastest broadband package available at this postcode. The average speed displayed is based on the download speeds of at least 50% of customers at peak time (8pm to 10pm). Fibre/cable services at the postcode are subject to availability and may differ between properties within a postcode. Speeds can be affected by a range of technical and environmental factors. The speed at the property may be lower than that listed above. You can check the estimated speed and confirm availability to a property prior to purchasing on the broadband provider's website. Providers may increase charges. The information is provided and maintained by Decision Technologies Limited. **This is indicative only and based on a 2-person household with multiple devices and simultaneous usage. Broadband performance is affected by multiple factors including number of occupants and devices, simultaneous usage, router range etc. For more information speak to your broadband provider.
Map data ©OpenStreetMap contributors.





