
2 bedroom cottage for sale
Bwthyn, Tregeiriog, Nr Llangollen

- PROPERTY TYPE
Cottage
- BEDROOMS
2
- BATHROOMS
1
- SIZE
Ask agent
- TENUREDescribes how you own a property. There are different types of tenure - freehold, leasehold, and commonhold.Read more about tenure in our glossary page.
Freehold
Key features
- Detached Country Cottage
- Two Double Bedrooms
- Good Sized Gardens
- Off Road Parking
- Pretty Hamlet Location
- Beautiful Interior
- Many Features
- Large Kitchen/Family Room
- Purpose Built Studio
Description
Directions - From Oswestry proceed along the A5 towards Chirk. Pass The Bridge Public House on the left hand side, take the next left turn on to the B4500 towards Glyn Ceiriog. Pass through the village of Pandy. Drive a further two miles before you reach Tregeiriog. On reaching the village turn right at the crossroads and the property will be seen to the left hand side.
Tregeiriog - Tregeiriog is a small hamlet in the Ceiriog valley, situated just 9 miles from Chirk it offers rural life yet it still close enough to the town that it offers easy accessibility to the services required for modern life.
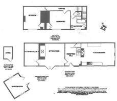
Accommodation Comprises -
Hallway - The good sized hallway has a part glazed door to the front, tiled floor, radiator, under stairs storage cupboard and doors leading to the lounge and the kitchen. Stairs lead off to the first floor.
Kitchen/ Dining Room - 5.97m x 4.30m (19'7" x 14'1") - The large kitchen/ dining room/ family room is a great place to entertain and is the real heart of the home. There are a range of oak base and wall units with granite worktops and up stands over, display cabinets, radiator, spot lighting, tiled floor, plumbing for a dishwasher and washing machine, Belfast sink with a mixer tap over, brick fireplace with an inset Stanley range (decorative only) with an oak work surface over, space for a double cooker, loft hatch and two windows to the front and two to the side letting in lots of light.
Additional Photo -
Additional Photo -
Lounge - 4.02m x 3.61m (13'2" x 11'10") - The cosy lounge has a large inglenook fireplace with an LPG gas fired log burner effect stove with a beam over, stone backing and a tiled hearth. There is an original beamed ceiling, wall lights, a window to the front, radiator and French doors opening onto the garden. A door leads through to the study.
Additional Photo -
Study - 4.02m x 2.57m (13'2" x 8'5") - The ground floor study is a very versatile room and could be adapted to a number of uses. There is a window to the front and a radiator. Currently used as a study but could be playroom, second sitting room or ground floor guest accommodation.
First Floor Landing - Having doors leading to the bedrooms and the bathroom, a window to the side, built in linen cupboard and recessed shelving.
Family Bathroom - The family bathroom is fitted with a large walk in double shower cubicle with external heat controls, mains powered shower and aqua panelling, wash hand basin, low level w.c., tiled floor, part tiled walls, radiator, loft hatch and a window to the front.
Additional Photo -
Bedroom Two - 3.71m x 3.23m (12'2" x 10'7") - The second bedroom is a good sized double room having a radiator, built in wardrobe and a window to the front overlooking the garden and the views beyond.
Bedroom One - 4.23m x 3.06m (13'10" x 10'0") - The main bedroom is also a superb size with a radiator, built in wardrobe and a window overlooking the garden and surrounding countryside.
To The Outside - The property has recently (within the last twelve months) had a new external oil fired boiler installed along with an EV charging point.
Parking - The property is accessed off the lane onto a gated gravelled parking area for several cars. Two farm style gates run across the front while a picket gate and arch lead into the gardens and to the property.
Leading To The Garden -
Gardens - The gardens are an absolute delight and there is a patio area running along the front of the property taking in all the garden. The gardens are lawned with extensive planting to the borders and flower beds. There are also mature trees and shrubs giving all year round colour. A pathway runs along to the bottom of the garden where there are two sheds (one stone built) and a potting shed. A gate gives access to the small stream that runs along the border. A pathway also leads around the rear of the property. The boundary is fenced and hedged making it ideal for children and pets.
Additional Photo -
Additional Photo -
Studio - 3.30m x 2.70m - Another great feature of the property is the purpose built studio sitting in the grounds. The building is fully insulated and has power and lighting along with windows to three sides and wood flooring. The space is currently used as an artist's studio but would be perfect for a home office or similar.
Additional Photo -
Additional Garden Photos -
Outbuildings -
Views -
Viewing - STRICTLY BY PRIOR APPOINTMENT WITH TOWN AND COUNTRY ON
Town And Country - Free valuation service - Professional and Independent - Elegant, Clear and Concise Presentation - Accompanied Viewings Available - Full Colour Photography - Full Colour Advertising - Striking For Sale Boards - Regular Viewings Feedback - Up-to-date Buyer Register - Sound Local Knowledge and Experience - State of the Art Technology - Motivated Professional Staff - All properties advertised on Zoopla, Onthemarket.com -
VERY COMPETITIVE FEES FOR SELLING.
To Make An Offer - TO MAKE AN OFFER - MAKE AN APPOINTMENT.
If you are interested in buying this property, you have to view the property. The appointment is part of our guarantee to the seller and should be made before contacting a Building Society, Bank or Solicitor. Any delay may result in the property being sold to someone else, and survey and legal fees being unnecessarily incurred. Once you have viewed the property and decided to make an offer please contact the office and one of the team will assist you further.
Town and Country recommend that a prospective buyer/tenant follows the guidance of the Property Ombudsman and undertakes a physical viewing of the property and does not solely rely on virtual/video information when making their decision. Town and Country also advise it is best practice to view a property in person before making an offer.
Tenure/ Council Tax - We understand the property is freehold, although purchasers must make their own enquiries via their solicitor.
Services - The agents have not tested the appliances listed in the particulars.
Money Laundering - Money Laundering Regulations. The successful purchaser will be required to produce adequate identification to prove their identity within the terms of the Money Laundering Regulations. Appropriate examples include: Passport/Photographic Driving Licence and a recent Utility Bill.
Hours Of Business - Monday - Friday - 9.00 - 5.30
Saturday - 9.00 - 4.00
Additional Information - We would like to point out that all measurements, floor plans and photographs are for guidance purposes only (photographs may be taken with a wide angled/zoom lens), and dimensions, shapes and precise locations may differ to those set out in these sales particulars which are approximate and intended for guidance purposes only.
These particulars, whilst believed to be accurate are set out as a general outline only for guidance and do not constitute any part of an offer or contract. Intending purchasers should not rely on them as statements of representation of fact, but most satisfy themselves by inspection or otherwise as to their accuracy. No person in this firm s employment has the authority to make or give any representation or warranty in respect of the property.
Brochures
Bwthyn, Tregeiriog, Nr LlangollenEPCBrochure- COUNCIL TAXA payment made to your local authority in order to pay for local services like schools, libraries, and refuse collection. The amount you pay depends on the value of the property.Read more about council Tax in our glossary page.
- Ask agent
- PARKINGDetails of how and where vehicles can be parked, and any associated costs.Read more about parking in our glossary page.
- Yes
- GARDENA property has access to an outdoor space, which could be private or shared.
- Yes
- ACCESSIBILITYHow a property has been adapted to meet the needs of vulnerable or disabled individuals.Read more about accessibility in our glossary page.
- Ask agent
Bwthyn, Tregeiriog, Nr Llangollen
Add an important place to see how long it'd take to get there from our property listings.
__mins driving to your place
Get an instant, personalised result:
- Show sellers you’re serious
- Secure viewings faster with agents
- No impact on your credit score


Your mortgage
Notes
Staying secure when looking for property
Ensure you're up to date with our latest advice on how to avoid fraud or scams when looking for property online.
Visit our security centre to find out moreDisclaimer - Property reference 34343905. The information displayed about this property comprises a property advertisement. Rightmove.co.uk makes no warranty as to the accuracy or completeness of the advertisement or any linked or associated information, and Rightmove has no control over the content. This property advertisement does not constitute property particulars. The information is provided and maintained by Town & Country Property Services, Oswestry. Please contact the selling agent or developer directly to obtain any information which may be available under the terms of The Energy Performance of Buildings (Certificates and Inspections) (England and Wales) Regulations 2007 or the Home Report if in relation to a residential property in Scotland.
*This is the average speed from the provider with the fastest broadband package available at this postcode. The average speed displayed is based on the download speeds of at least 50% of customers at peak time (8pm to 10pm). Fibre/cable services at the postcode are subject to availability and may differ between properties within a postcode. Speeds can be affected by a range of technical and environmental factors. The speed at the property may be lower than that listed above. You can check the estimated speed and confirm availability to a property prior to purchasing on the broadband provider's website. Providers may increase charges. The information is provided and maintained by Decision Technologies Limited. **This is indicative only and based on a 2-person household with multiple devices and simultaneous usage. Broadband performance is affected by multiple factors including number of occupants and devices, simultaneous usage, router range etc. For more information speak to your broadband provider.
Map data ©OpenStreetMap contributors.





