2 bedroom end of terrace house for sale
Morecambe Street, Morecambe

- PROPERTY TYPE
End of Terrace
- BEDROOMS
2
- BATHROOMS
1
- SIZE
Ask agent
- TENUREDescribes how you own a property. There are different types of tenure - freehold, leasehold, and commonhold.Read more about tenure in our glossary page.
Freehold
Key features
- Calling All Landlords & Investors
- Unique Property With Two Units Having Separate Access
- Commercial Unit Downstairs & Residential Space Upstairs
- SOLD WITH TENANTS IN SITU
- Stunning Seafront Boasting World Famous Sunsets
- Wonderful Coastal Walks With An Abundance Of Nature
- Tenure: Freehold
- Property Banding:
- Promenade & Town Centre Amenities
- EXCELLENT INVESTMENT OPPORTUNITY
Description
The property features a thoughtfully designed layout, ensuring that every corner is utilised effectively. The bathroom is conveniently located, catering to the needs of modern living. The end-terraced design not only provides added privacy but also enhances the overall appeal of the home.
One of the standout features of this property is its proximity to the stunning seafront. Residents can enjoy leisurely coastal walks, taking in the picturesque views and fresh sea air. This prime location is ideal for those who appreciate the beauty of coastal living while still being close to local amenities.
Additionally, the property includes a commercial section, presenting an excellent investment opportunity for those looking to expand their portfolio. Whether you are seeking a new home or a promising investment, this property on Morecambe Street is sure to impress. With its desirable location and versatile features, it is a rare find in today’s market. Don’t miss the chance to make this charming house your own.
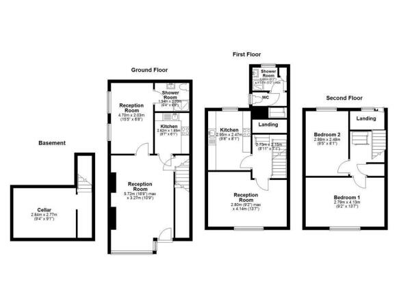
Commercial Space - Ground Floor
Reception Room - UPVC bay window, radiator, smoke alarm, spotlights, two Inglenook fireplaces, laminate flooring, doors to reception two, kitchen and cellar.
Kitchen - Mis of wall and base units with laminate worktops, integrated oven in high rise unit, four ring induction hob, extractor fan, sink with mixer tap and draining board, panelled splashback, spotlights and tiled flooring.
Reception Room Two - Two UPVC windows, radiator, spotlights and door to shower room.
Shower Room - Dual flush WC, vanity wash basin with mixer tap, electric shower in cubicle, extractor fan, spotlights, fully tiled surround and vinyl flooring.
First Floor Flat -
Entrance Hall - UPVC door into entrance hall, radiator, alarm control and stairs to flat.
Half Landing - Stairs to first floor landing, WC and shower room.
Wc - UPVC window, low flush WC, partially tiled surround and vinyl flooring.
Shower Room - UPVC window, radiator, vanity wash basin with mixer tap, electric shower in cubicle, extractor fan, panelled walls, panelled ceiling and vinyl flooring.
First Floor Landing - Radiator, door to kitchen, living room and stairs to second floor.
Living Room - UPVC tilt and turn window, two radiators, two wall lights and laminate flooring.
Kitchen - UPVC window, radiator, mix of wall and base unit with laminate worktops, integrated oven in high rise unit, four ring induction hob with acrylic splash back, extractor fan, one and a half bowl sink with mixer tap, panelled splashback, space for dishwasher, washing machine, fridge, spotlight and vinyl flooring.
Second Floor -
Landing - UPVC window, radiator, storage cupboard, doors to bedroom one and two.
Bedroom One - UPVC tilt and turn window, radiator, spotlights, alarm panel and laminate flooring.
Bedroom Two - UPVC window, radiator and laminate flooring.
Brochures
Morecambe Street, MorecambeBrochure- COUNCIL TAXA payment made to your local authority in order to pay for local services like schools, libraries, and refuse collection. The amount you pay depends on the value of the property.Read more about council Tax in our glossary page.
- Ask agent
- PARKINGDetails of how and where vehicles can be parked, and any associated costs.Read more about parking in our glossary page.
- Ask agent
- GARDENA property has access to an outdoor space, which could be private or shared.
- Ask agent
- ACCESSIBILITYHow a property has been adapted to meet the needs of vulnerable or disabled individuals.Read more about accessibility in our glossary page.
- Ask agent
Morecambe Street, Morecambe
Add an important place to see how long it'd take to get there from our property listings.
__mins driving to your place
Get an instant, personalised result:
- Show sellers you’re serious
- Secure viewings faster with agents
- No impact on your credit score
Your mortgage
Notes
Staying secure when looking for property
Ensure you're up to date with our latest advice on how to avoid fraud or scams when looking for property online.
Visit our security centre to find out moreDisclaimer - Property reference 34194825. The information displayed about this property comprises a property advertisement. Rightmove.co.uk makes no warranty as to the accuracy or completeness of the advertisement or any linked or associated information, and Rightmove has no control over the content. This property advertisement does not constitute property particulars. The information is provided and maintained by GF Property Sales and Lettings, Morecambe. Please contact the selling agent or developer directly to obtain any information which may be available under the terms of The Energy Performance of Buildings (Certificates and Inspections) (England and Wales) Regulations 2007 or the Home Report if in relation to a residential property in Scotland.
*This is the average speed from the provider with the fastest broadband package available at this postcode. The average speed displayed is based on the download speeds of at least 50% of customers at peak time (8pm to 10pm). Fibre/cable services at the postcode are subject to availability and may differ between properties within a postcode. Speeds can be affected by a range of technical and environmental factors. The speed at the property may be lower than that listed above. You can check the estimated speed and confirm availability to a property prior to purchasing on the broadband provider's website. Providers may increase charges. The information is provided and maintained by Decision Technologies Limited. **This is indicative only and based on a 2-person household with multiple devices and simultaneous usage. Broadband performance is affected by multiple factors including number of occupants and devices, simultaneous usage, router range etc. For more information speak to your broadband provider.
Map data ©OpenStreetMap contributors.




