2 bedroom flat for sale
Napier Road, Luscinia view, Reading

- PROPERTY TYPE
Flat
- BEDROOMS
2
- BATHROOMS
2
- SIZE
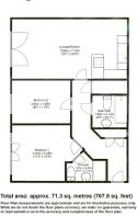
Ask agent
Key features
- Parking
- River access
- Walking distance from train station
- Next to Tesco Extra
- Electric Heating and Boiler
- Priced for a quick sale
Description
Property Reference number : 456536
Stunning 2-Bedroom Flat near Reading train Station with grand views!Immerse yourself in the perfect blend of convenience, tranquility, and natural beauty in this exceptional 2-bedroom, 2-bathroom flat. Located mere steps from the train station, this residence offers effortless commuting and unparalleled accessibility.
Surrounded by Nature's Splendor
Enjoy breathtaking views of the nearby river and unwind amidst the expansive open spaces surrounding the property. Take leisurely strolls along the riverbank or explore the nearby parks and green areas.
Amenities at Your Doorstep
- Tesco Extra: Convenient shopping just minutes away
- Train Station: Easy access to city centers and beyond
- River Views: Serene and picturesque scenery
This well-appointed flat boasts:
- 2 spacious bedrooms with ample storage
- 2 modern bathrooms for ultimate convenience
- Recently upgraded, non-carpeted flooring throughout
- Sleek, built-in Bosch appliances for effortless entertaining
- Electric boiler for efficient heating
Secure and Convenient
- Covered allocated parking for peace of mind
- Cycle shed access for secure bike storage
- EPC Rating B for energy efficiency
- Council Tax Band C
Ideal for Professionals and Families
Don't miss this incredible opportunity to own a piece of paradise. Contact us today to schedule a viewing!
Key Features:
- 2 bedrooms, 2 bathrooms
- 2nd floor flat
- Recently upgraded flooring
- Bosch appliances
- Allocated parking
- Cycle shed access
- Electric boiler
- EPC Rating B
- Council Tax Band C
- Near train station
- River views
- Open spaces
- Tesco Extra nearby
Council Tax: C
Current Annual Ground Rent: £250
Current Annual Service Charge: £2,200
Current Length Of Lease Remaining: 125 Years
WARNING: Never transfer funds to a property owner before viewing the property in person. If in doubt contact the marketing agent or the Citizens Advice Bureau.
GDPR: Submitting a viewing request for the above property means you are giving us permission to pass your contact details to the vendor or landlord for further communication related to viewing arrangement, or more information related to the above property. If you disagree, please write to us within the message field so we do not forward your details to the vendor or landlord or their managing company.
VIEWING DISCLAIMER: Quicklister endeavour to ensure the sales particulars of properties advertised are fair, accurate and reliable, however they are not exhaustive and viewing in person is highly recommended. If there is any point which is of particular importance to you, please contact Quicklister and we will be pleased to check the position for you, especially if you are contemplating traveling some distance to view the property.
Property Reference number : 456536
- COUNCIL TAXA payment made to your local authority in order to pay for local services like schools, libraries, and refuse collection. The amount you pay depends on the value of the property.Read more about council Tax in our glossary page.
- Band: C
- PARKINGDetails of how and where vehicles can be parked, and any associated costs.Read more about parking in our glossary page.
- Yes
- GARDENA property has access to an outdoor space, which could be private or shared.
- Ask agent
- ACCESSIBILITYHow a property has been adapted to meet the needs of vulnerable or disabled individuals.Read more about accessibility in our glossary page.
- Ask agent
Napier Road, Luscinia view, Reading
Add an important place to see how long it'd take to get there from our property listings.
__mins driving to your place
Get an instant, personalised result:
- Show sellers you’re serious
- Secure viewings faster with agents
- No impact on your credit score
Your mortgage
Notes
Staying secure when looking for property
Ensure you're up to date with our latest advice on how to avoid fraud or scams when looking for property online.
Visit our security centre to find out moreDisclaimer - Property reference 5192. The information displayed about this property comprises a property advertisement. Rightmove.co.uk makes no warranty as to the accuracy or completeness of the advertisement or any linked or associated information, and Rightmove has no control over the content. This property advertisement does not constitute property particulars. The information is provided and maintained by Quicklister, Nationwide. Please contact the selling agent or developer directly to obtain any information which may be available under the terms of The Energy Performance of Buildings (Certificates and Inspections) (England and Wales) Regulations 2007 or the Home Report if in relation to a residential property in Scotland.
*This is the average speed from the provider with the fastest broadband package available at this postcode. The average speed displayed is based on the download speeds of at least 50% of customers at peak time (8pm to 10pm). Fibre/cable services at the postcode are subject to availability and may differ between properties within a postcode. Speeds can be affected by a range of technical and environmental factors. The speed at the property may be lower than that listed above. You can check the estimated speed and confirm availability to a property prior to purchasing on the broadband provider's website. Providers may increase charges. The information is provided and maintained by Decision Technologies Limited. **This is indicative only and based on a 2-person household with multiple devices and simultaneous usage. Broadband performance is affected by multiple factors including number of occupants and devices, simultaneous usage, router range etc. For more information speak to your broadband provider.
Map data ©OpenStreetMap contributors.




