St Catherines Drive, Faversham, Kent
- PROPERTY TYPE
Land
- BEDROOMS
3
- BATHROOMS
2
- SIZE
Ask agent
Key features
- AGENT ID: 2292
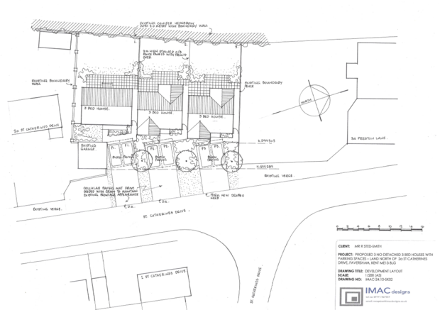
- Plot 1:- 1240 Sq feet
- Plots 2&3:- 1440 Sq feet
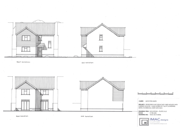
- Full planning permission for 3 x three-bedroom Detached houses
- Situated in a quiet residential setting in Faversham, Kent
- Each dwelling designed with allocated parking
- Level and accessible plot with established boundaries
- Close to local schools, amenities and transport links
- Planning application reference: 25/500593/FULL
Description
Full planning permission for 3 x three-bedroom Detached houses
Situated in a quiet residential setting in Faversham, Kent
Each dwelling designed with allocated parking
Level and accessible plot with established boundaries
Close to local schools, amenities and transport links
Planning application reference: 25/500593/FULL
Plot 1:- 1240 Sq feet
Plots 2&3:- 1440 Sq feet
This well-positioned parcel of land on St Catherines Drive presents an excellent opportunity for developers and investors alike. With full planning permission approved for three modern 3-bedroom homes, the site offers a ready-to-build project in a desirable residential area. The proposed dwellings have been thoughtfully designed to blend with the surrounding streetscape while offering generous internal layouts and private parking. The plot benefits from easy access, established boundaries, and a favourable position within a quiet cul-de-sac, making it an appealing prospect for future homeowners.
Faversham is one of Kent’s most historic and sought-after market towns, known for its vibrant community, independent shops, popular eateries and excellent transport connections. St Catherines Drive is conveniently located for local primary and secondary schools, supermarkets, leisure facilities and beautiful countryside walks. High-speed services from Faversham Station provide quick routes to London and the coast, while the A2 and M2 offer easy road connectivity. The combination of heritage charm and modern convenience makes this an ideal location for residential development.
Agent quote:
“A superb opportunity to bring forward a ready-approved residential scheme in one of Faversham’s most desirable neighborhoods—ideal for developers seeking a high-demand location with strong resale potential.”
Please note on land transactions buyers may be required to pay a finder’s fee. All fees will be disclosed prior to any agreement being made.
St Catherines Drive, Faversham, Kent
NEAREST STATIONS
Distances are straight line measurements from the centre of the postcode- Faversham Station0.1 miles
- Selling Station3.1 miles
- Teynham Station4.0 miles
Notes
Disclaimer - Property reference RFX-53430363. The information displayed about this property comprises a property advertisement. Rightmove.co.uk makes no warranty as to the accuracy or completeness of the advertisement or any linked or associated information, and Rightmove has no control over the content. This property advertisement does not constitute property particulars. The information is provided and maintained by VC ESTATES, South East. Please contact the selling agent or developer directly to obtain any information which may be available under the terms of The Energy Performance of Buildings (Certificates and Inspections) (England and Wales) Regulations 2007 or the Home Report if in relation to a residential property in Scotland.
Map data ©OpenStreetMap contributors.





