Haynes Street., Rochdale., OL12
- PROPERTY TYPE
Business Park
- SIZE
10,656 sq ft
990 sq m
Description
Located in Rochdale, this substantial two-storey premises offers an excellent opportunity for buyers seeking a versatile space with strong potential for future development.
The property provides extensive open-floor areas across both levels, complemented by two practical WCs and a useful utility room to support day-to-day operations.
Two generously sized office spaces adjoin the main shop floor, creating an efficient setup for administrative, managerial, or customer-focused functions. The layout lends itself to a wide range of commercial uses, making it an appealing prospect for those looking to establish or expand their business presence.
With its flexible configuration and scope for reimagining the internal spaces, this property offers a promising canvas for investors, developers, or owner-occupiers alike. Do not miss the chance to explore the possibilities that await in this prime location.
To be sold via Online Auction, via unconditional terms, completion strictly within 28 days
Bidding window opens - TBC
Auction Ends- TBC
Starting price - £200,000 (Reserve price is higher & unpublished)
Fees
All fees are payable by banks transfer only (we do not take card payments )
Buyers premium - Please note that there is a buyers premium that applies to this lot please see the applicable legal pack, payable by the buyer within 2 hours of winning the auction. The buyers premium does not constitute part of the sale price, this is the auctioneers fee and is to be paid over and above the sale price paid to the vendor.
Searches - searches have been ordered and will be made available for download from The Auction Groups website prior to bidding taking place.
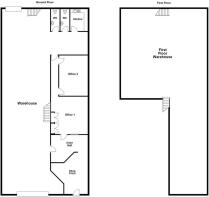
Shop Front
7.82m x 4.88m
UPVC double glazed front door, spotlights, smoke detector, wood panelled elevations, tiled effect flooring and door to inner hall.
Inner Hall
3.99m x 4.88m
Doors leading to warehouse and office room one.
Office Room One
7.87m x 4.98m
Two hardwood single glazed windows, electric radiator, smoke detector, integrated storage, doors leading to office room two and warehouse.
Office Room Two
5.36m x 3.81m
Smoke detector, integrated storage and door to warehouse.
Warehouse
24.49m x 11.99m
Two electric roller garage doors, doors leading to kitchen, two WCs and stairs to first floor.
Kitchen Area
2.92m x 2.31m
Range of wall and base units with laminate work surfaces, tiled splashback, stainless steel sink and drainer with traditional taps and vinyl flooring.
WC One
2.92m x 1.19m
Electric radiator, low basin WC, wall mounted wash basin with traditional taps, tiled splashback, extractor fan and vinyl flooring.
WC Two
2.92m x 1.19m
Electric radiator, low basin WC, wall mounted wash basin with traditional taps, tiled splashback, extractor fan and vinyl flooring.
First Floor Warehouse
24.49m x 12.37m
Part stone elevations and part wood effect flooring.
Haynes Street., Rochdale., OL12
NEAREST STATIONS
Distances are straight line measurements from the centre of the postcode- Rochdale Town Centre Tram Stop0.4 miles
- Rochdale Station0.9 miles
- Smithy Bridge Station1.7 miles
Notes
Disclaimer - Property reference cb5f3c13-8518-4cc5-9d82-203ee7881298. The information displayed about this property comprises a property advertisement. Rightmove.co.uk makes no warranty as to the accuracy or completeness of the advertisement or any linked or associated information, and Rightmove has no control over the content. This property advertisement does not constitute property particulars. The information is provided and maintained by The Auction Group Limited, Auction. Please contact the selling agent or developer directly to obtain any information which may be available under the terms of The Energy Performance of Buildings (Certificates and Inspections) (England and Wales) Regulations 2007 or the Home Report if in relation to a residential property in Scotland.
Auction Fees: The purchase of this property may include associated fees not listed here, as it is to be sold via auction. To find out more about the fees associated with this property please call The Auction Group Limited, Auction on 01254 963355.
*Guide Price: An indication of a seller's minimum expectation at auction and given as a Guide Price or a range of Guide Prices. This is not necessarily the figure a property will sell for and is subject to change prior to the auction.
Reserve Price: Each auction property will be subject to a Reserve Price below which the property cannot be sold at auction. Normally the Reserve Price will be set within the range of Guide Prices or no more than 10% above a single Guide Price.
Map data ©OpenStreetMap contributors.





