
2 bedroom semi-detached house for sale
Ilmington Road, Birmingham, West Midlands, B29

- PROPERTY TYPE
Semi-Detached
- BEDROOMS
2
- BATHROOMS
2
- SIZE
Ask agent
- TENUREDescribes how you own a property. There are different types of tenure - freehold, leasehold, and commonhold.Read more about tenure in our glossary page.
Freehold
Key features
- EXCELLENT LOCATION - CLOSE TO CASTLE SQUARE, QE HOSPITAL & UNIVERSITY
- OFF ROAD PARKING
- TWO BEDROOMS, TWO BATHROOM
- EXCELLENT INVESTMENT PROPERTY
Description
Ilmington Road, Birmingham, B29 5LH
Are you looking for a home with space, convenience and investment potential? This charming property on Ilmington Road could be just what you’ve been waiting for.
Property Overview:
Set back from the road on a generous corner plot, this property enjoys a large front garden and a low-maintenance rear garden — ideal for busy lives or rental tenants. Off-street parking is provided by a driveway and garage, with space for multiple cars.
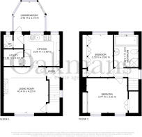
Inside, you’ll find:
A welcoming vestibule leading into a cosy living room.
A fitted kitchen with adjoining utility room and WC.
A spacious conservatory giving direct access to the garden — perfect for entertaining or relaxing.
Outside, a patio with a hot tub — a rare bonus.
Upstairs: two well-proportioned bedrooms, with scope to convert to a three-bedroom home if required.
A modern four-piece family bathroom, including separate bath, shower, sink and loo.
Additional loft space, offering potential for conversion (subject to planning permission).
The house benefits from central heating and double glazing throughout, promising comfort and efficiency all year round.
Location — Convenience at Your Doorstep:
This property is ideally located just off Castle Square, within walking distance of a wide range of cafés, restaurants, grocery shops, and everyday amenities — the kind of local convenience that makes life easy.
For commuters or those working nearby, it’s well-positioned in relation to several major employers: the University of Birmingham and the Queen Elizabeth Hospital Birmingham are within easy reach, while the city centre is only a short commute away.
Transport links are excellent:
Regular bus services run through the area — including the frequent X21 bus and X22 bus, providing frequent (every ~15–20 min) connections to Birmingham city centre, the University and QE Hospital.
For rail links, the nearest stations are Selly Oak railway station (approx. 2.6 km) and University railway station (approx. 3.0 km), both offering fast links into the city and beyond.
For drivers, the property enjoys convenient road access — the nearby A38 road and links to the motorway network (such as the M5 motorway and wider West Midlands motorway network) make commuting around Birmingham and beyond straightforward.
Local Schools & Education — Great for Families or Students:
Families will benefit from the strong selection of nearby schools and educational settings:
Primary: Princethorpe Infant School & Princethorpe Junior School — both just ~200–300 m away.
Also close by: Jervoise School and Green Meadow Primary School among other good-rated primaries.
Secondary: E-ACT Shenley Academy ( 800 m), and not far further: Hillcrest School and Sixth Form Centre.
For further education, the well-regarded Newman University (in Bartley Green) is also easily accessible — appealing for students or academic staff seeking nearby housing with transport links.
Who This Home Is Ideal For:
Whether you’re a first time buyer, a young family, or a buy-to-let investor — this property ticks the boxes:
For first-time buyers: ample space, parking, and a layout with potential to expand (e.g. loft conversion, third bedroom).
For families: proximity to quality schools, amenities, and transport makes day-to-day living straightforward.
For investors: demand for rental properties in this area tends to be strong — thanks to its convenience for students, hospital staff and professionals working in or near the city centre.
If you are looking for a well-proportioned, adaptable home in a prime south-Birmingham location, this Ilmington Road property offers space, convenience and value.
To arrange a viewing or for more details, please act quickly — properties of this calibre in B29 don’t stay on the market for long.
Material Information:
Please scan the QR code to be taken to material information provided to us from the seller. Please note that this is information provided by the seller and will need to be confirmed by your conveyancer.
Anti-money Laundering Checks (AML)
Regulations require us to conduct identity and AML checks and gather information about every buyer's financial circumstances. These checks are essential in fulfilling our Customer Due Diligence obligations, which must be done before any property can be marked as sold subject to contract. The rules are set by law and enforced by trading standards.
We will start these checks once you have made a provisionally agreeable offer on a property. The cost is £100 (plus VAT). This fee covers the expense of obtaining relevant data and any necessary manual checks and monitoring. It's paid in advance via our onboarding system, Kotini, and is non-refundable.
- COUNCIL TAXA payment made to your local authority in order to pay for local services like schools, libraries, and refuse collection. The amount you pay depends on the value of the property.Read more about council Tax in our glossary page.
- Band: B
- PARKINGDetails of how and where vehicles can be parked, and any associated costs.Read more about parking in our glossary page.
- Garage,Driveway
- GARDENA property has access to an outdoor space, which could be private or shared.
- Yes
- ACCESSIBILITYHow a property has been adapted to meet the needs of vulnerable or disabled individuals.Read more about accessibility in our glossary page.
- Ask agent
Energy performance certificate - ask agent
Ilmington Road, Birmingham, West Midlands, B29
Add an important place to see how long it'd take to get there from our property listings.
__mins driving to your place
Get an instant, personalised result:
- Show sellers you’re serious
- Secure viewings faster with agents
- No impact on your credit score


Your mortgage
Notes
Staying secure when looking for property
Ensure you're up to date with our latest advice on how to avoid fraud or scams when looking for property online.
Visit our security centre to find out moreDisclaimer - Property reference SHY250741. The information displayed about this property comprises a property advertisement. Rightmove.co.uk makes no warranty as to the accuracy or completeness of the advertisement or any linked or associated information, and Rightmove has no control over the content. This property advertisement does not constitute property particulars. The information is provided and maintained by Oakmans Estate Agents, Birmingham. Please contact the selling agent or developer directly to obtain any information which may be available under the terms of The Energy Performance of Buildings (Certificates and Inspections) (England and Wales) Regulations 2007 or the Home Report if in relation to a residential property in Scotland.
*This is the average speed from the provider with the fastest broadband package available at this postcode. The average speed displayed is based on the download speeds of at least 50% of customers at peak time (8pm to 10pm). Fibre/cable services at the postcode are subject to availability and may differ between properties within a postcode. Speeds can be affected by a range of technical and environmental factors. The speed at the property may be lower than that listed above. You can check the estimated speed and confirm availability to a property prior to purchasing on the broadband provider's website. Providers may increase charges. The information is provided and maintained by Decision Technologies Limited. **This is indicative only and based on a 2-person household with multiple devices and simultaneous usage. Broadband performance is affected by multiple factors including number of occupants and devices, simultaneous usage, router range etc. For more information speak to your broadband provider.
Map data ©OpenStreetMap contributors.





