
3 bedroom detached house for sale
Mottram Old Road, Stalybridge, Greater Manchester, SK15

- PROPERTY TYPE
Detached
- BEDROOMS
3
- BATHROOMS
2
- SIZE
Ask agent
- TENUREDescribes how you own a property. There are different types of tenure - freehold, leasehold, and commonhold.Read more about tenure in our glossary page.
Freehold
Description
Tenure: Freehold
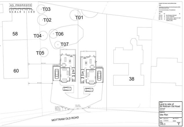
Planning Ref: 25/00405/OUT
Occupying a prime position on one of Mottram’s most desirable streets, this unique opportunity comprises three individual plots, one of which includes a detached bungalow. Full planning permission has been granted for the construction of two additional 4-bedroom, 2-bathroom detached homes, with approved plans shown in the photos. These plans may be amended or redesigned to suit the buyer’s preferred development approach.
The existing bungalow forms the first plot and provides an excellent base for refurbishment, extension, or complete redevelopment. Its generous internal layout and expansive gardens enhance the site’s overall potential. The two further plots offer superb scope for new-build homes as per the approved scheme or alternate designs (subject to consent).
This rare and highly versatile site presents an outstanding prospect for developers, investors, or buyers seeking a bespoke project in a prestigious Mottram location. Set within a quiet, established residential area, the property is ideally situated close to local amenities, reputable schools, scenic countryside walks, and major transport links.
Opportunities of this calibre—particularly with three subdividable plots and flexible, granted planning permissions—are exceptionally scarce in Mottram.
Brochures
Web Details- COUNCIL TAXA payment made to your local authority in order to pay for local services like schools, libraries, and refuse collection. The amount you pay depends on the value of the property.Read more about council Tax in our glossary page.
- Band: G
- PARKINGDetails of how and where vehicles can be parked, and any associated costs.Read more about parking in our glossary page.
- Ask agent
- GARDENA property has access to an outdoor space, which could be private or shared.
- Yes
- ACCESSIBILITYHow a property has been adapted to meet the needs of vulnerable or disabled individuals.Read more about accessibility in our glossary page.
- Ask agent
Energy performance certificate - ask agent
Mottram Old Road, Stalybridge, Greater Manchester, SK15
Add an important place to see how long it'd take to get there from our property listings.
__mins driving to your place
Get an instant, personalised result:
- Show sellers you’re serious
- Secure viewings faster with agents
- No impact on your credit score
Your mortgage
Notes
Staying secure when looking for property
Ensure you're up to date with our latest advice on how to avoid fraud or scams when looking for property online.
Visit our security centre to find out moreDisclaimer - Property reference ROC251386. The information displayed about this property comprises a property advertisement. Rightmove.co.uk makes no warranty as to the accuracy or completeness of the advertisement or any linked or associated information, and Rightmove has no control over the content. This property advertisement does not constitute property particulars. The information is provided and maintained by Cowell & Norford, Rochdale. Please contact the selling agent or developer directly to obtain any information which may be available under the terms of The Energy Performance of Buildings (Certificates and Inspections) (England and Wales) Regulations 2007 or the Home Report if in relation to a residential property in Scotland.
*This is the average speed from the provider with the fastest broadband package available at this postcode. The average speed displayed is based on the download speeds of at least 50% of customers at peak time (8pm to 10pm). Fibre/cable services at the postcode are subject to availability and may differ between properties within a postcode. Speeds can be affected by a range of technical and environmental factors. The speed at the property may be lower than that listed above. You can check the estimated speed and confirm availability to a property prior to purchasing on the broadband provider's website. Providers may increase charges. The information is provided and maintained by Decision Technologies Limited. **This is indicative only and based on a 2-person household with multiple devices and simultaneous usage. Broadband performance is affected by multiple factors including number of occupants and devices, simultaneous usage, router range etc. For more information speak to your broadband provider.
Map data ©OpenStreetMap contributors.





