
St. Vincent Avenue, Blackpool, FY1

- BEDROOMS
3
- BATHROOMS
1
- SIZE
1,184 sq ft
110 sq m
- TENUREDescribes how you own a property. There are different types of tenure - freehold, leasehold, and commonhold.Read more about tenure in our glossary page.
Freehold
Key features
- 3 Bedroom End of Terrace House in the heart of Blackpool close to local amenities, transport links and Stanley Park
- Hallway leading to the Lounge, Kitchen/Dining Room and Utility
- Landing leading to the 3 Bedrooms and Family Bathroom
- Large Garden that flows from the front of the house round the side into the rear
Description
Complementing the allure of the interior, the outside space of this residence offers a haven of tranquillity and charm. Step outside to discover a thoughtfully designed garden area that presents opportunities for al fresco dining, gardening, or simply unwinding in the open air. The expansive outdoor space allows for endless possibilities, whether it be hosting gatherings with loved ones or enjoying a peaceful morning coffee amidst the natural surroundings. Embrace the beauty of the outdoor oasis that this property provides, offering a seamless transition between indoor and outdoor living spaces, making it an ideal retreat for those seeking a harmonious blend of comfort and nature in their every-day life.
EPC Rating: E
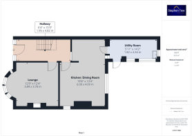
Hallway
4.82m x 1.95m
Lounge
3.78m x 3.89m
Kitchen/Dining Room
4.09m x 6m
Utility
4.34m x 1.82m
Landing
2.59m x 1m
Bedroom 1
4.07m x 3.91m
Bedroom 2
3.8m x 3.67m
Bedroom 3
2.54m x 2.27m
Bathroom
2.72m x 1.96m
Brochures
Property Brochure- COUNCIL TAXA payment made to your local authority in order to pay for local services like schools, libraries, and refuse collection. The amount you pay depends on the value of the property.Read more about council Tax in our glossary page.
- Band: B
- PARKINGDetails of how and where vehicles can be parked, and any associated costs.Read more about parking in our glossary page.
- Ask agent
- GARDENA property has access to an outdoor space, which could be private or shared.
- Private garden
- ACCESSIBILITYHow a property has been adapted to meet the needs of vulnerable or disabled individuals.Read more about accessibility in our glossary page.
- Ask agent
St. Vincent Avenue, Blackpool, FY1
Add an important place to see how long it'd take to get there from our property listings.
__mins driving to your place
Get an instant, personalised result:
- Show sellers you’re serious
- Secure viewings faster with agents
- No impact on your credit score

Your mortgage
Notes
Staying secure when looking for property
Ensure you're up to date with our latest advice on how to avoid fraud or scams when looking for property online.
Visit our security centre to find out moreDisclaimer - Property reference 2e9c4902-bda4-48e8-950e-229d38ca7b35. The information displayed about this property comprises a property advertisement. Rightmove.co.uk makes no warranty as to the accuracy or completeness of the advertisement or any linked or associated information, and Rightmove has no control over the content. This property advertisement does not constitute property particulars. The information is provided and maintained by Stephen Tew Estate Agents, Blackpool. Please contact the selling agent or developer directly to obtain any information which may be available under the terms of The Energy Performance of Buildings (Certificates and Inspections) (England and Wales) Regulations 2007 or the Home Report if in relation to a residential property in Scotland.
*This is the average speed from the provider with the fastest broadband package available at this postcode. The average speed displayed is based on the download speeds of at least 50% of customers at peak time (8pm to 10pm). Fibre/cable services at the postcode are subject to availability and may differ between properties within a postcode. Speeds can be affected by a range of technical and environmental factors. The speed at the property may be lower than that listed above. You can check the estimated speed and confirm availability to a property prior to purchasing on the broadband provider's website. Providers may increase charges. The information is provided and maintained by Decision Technologies Limited. **This is indicative only and based on a 2-person household with multiple devices and simultaneous usage. Broadband performance is affected by multiple factors including number of occupants and devices, simultaneous usage, router range etc. For more information speak to your broadband provider.
Map data ©OpenStreetMap contributors.






