Fort Southwick, James Callaghan Drive, Portsmouth, Hampshire, PO17 6AR
- SIZE AVAILABLE
2,355 sq ft
219 sq m
- SECTOR
Office to lease
Lease details
- Lease available date:
- Ask agent
Key features
- Well located close to Portsmouth and around 4 miles from the M27
- Views overlooking Portsmouth
- On site parking for 29 cars
- Currently various rooms, but potential to open up
- Class E encompasses A1, A2, A3, B1 and some D1 and D2 uses
- New FRI lease available
- Rent £35,000 pax
Description
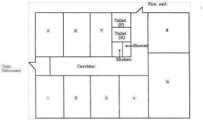
The property comprises a detached single storey building which is currently arranged as nine individual office/rooms with WC's and kitchen.
Externally, there is also parking for 29 cars.
Location
Portsmouth is located approximately 19 miles south east of Southampton and 70 miles south west of London. The city benefits from excellent road communications being situated at the M27/ A27 junction, which links to M3 and A3(M) and provides access to London and the wider national motorway network.
Fort Southwick is located on James Callaghan Drive, which is just off Portsdown Hill Road and around 4 miles from the M27.
Planning
A new Use Classes Order (UCO) came into effect on 1st September 2020. Under the new UCO a new Use Class E was introduced to cover commercial, business and service uses. Use Class E encompasses A1, A2, A3, B1 and some D1 and D2 uses under the former UCO. We therefore understand that the premises benefit from Class E 'Commercial Business and Service' use within the Use Classes Order 2020.
VAT
We understand the property is registered for VAT.
Accommodation
The subject accommodation has an approximate Net Internal Area (NIA) of 218.81 sq m (2,355 sq ft).
Business Rates / Council Tax Band
Rateable Value (2023): £38,750.
Rateable Value (from 1 April 2026): £38,750.
EPC
We understand the property has an EPC rating of C-72 (expiry date - 08/01/2036).
Legal Fees
Each party to bear their own legal costs incurred.
Brochures
Fort Southwick, James Callaghan Drive, Portsmouth, Hampshire, PO17 6AR
NEAREST STATIONS
Distances are straight line measurements from the centre of the postcode- Portchester Station0.9 miles
- Cosham Station2.1 miles
- Hilsea Station3.0 miles
Notes
Disclaimer - Property reference 8223LH. The information displayed about this property comprises a property advertisement. Rightmove.co.uk makes no warranty as to the accuracy or completeness of the advertisement or any linked or associated information, and Rightmove has no control over the content. This property advertisement does not constitute property particulars. The information is provided and maintained by Flude Property Consultants, Portsmouth. Please contact the selling agent or developer directly to obtain any information which may be available under the terms of The Energy Performance of Buildings (Certificates and Inspections) (England and Wales) Regulations 2007 or the Home Report if in relation to a residential property in Scotland.
Map data ©OpenStreetMap contributors.






