Woodbine Avenue, Newcastle Upon Tyne, NE3

- PROPERTY TYPE
Terraced
- BEDROOMS
6
- BATHROOMS
2
- SIZE
Ask agent
- TENUREDescribes how you own a property. There are different types of tenure - freehold, leasehold, and commonhold.Read more about tenure in our glossary page.
Freehold
Key features
- Six Bedrooms
- Period Terraced House
- Two Reception Rooms
- Two Bathrooms
- Garage
- Council Tax Band F
- EPC Rating D
Description
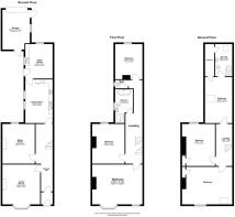
An impressive and deceptively spacious period mid-terraced home, this beautiful property offers superbly versatile accommodation arranged over three floors. Retaining an abundance of charming traditional features while seamlessly incorporating modern fixtures and fittings, the house presents an ideal blend of character and contemporary comfort.
Upon entering, a welcoming hallway sets the tone for the rest of the home. To the front, the fabulous lounge is a wonderful reception space, enhanced by a striking bay window and a host of traditional features, including the decorative coving and picture rail detailing. The traditional-style fireplace set into the chimney breast add charm and warmth. To the rear, the dining room – currently utilised as a second lounge – mirrors this character, with another beautiful traditional style fireplace, high ceilings, and classic detailing, making it a flexible reception space for modern family living.
The heart of the home lies in the spacious dining kitchen, thoughtfully designed to accommodate both day-to-day family life and entertaining. The kitchen offers a range of modern fitted units with built in cooking appliances and ample space for a dining table and chairs. From here, access is available to a separate, highly practical utility room, completing the ground floor accommodation.
Upstairs to the first floor, the property continues to impress with a generous and airy master bedroom, alongside two further well-proportioned bedrooms, one of which is currently utilised as a home office. The family bathroom is luxuriously appointed, boasting a freestanding roll-top bath, a vanity wash basin, a concealed-cistern WC, and a separate shower enclosure with a rainfall-style showerhead. A further separate WC on this level adds practicality for family life.
The second floor offers excellent versatility, with three additional double bedrooms and a stylish, modern shower room, providing a superb suite of accommodation for larger families, guests, or those seeking additional work-from-home space.
Externally, the home enjoys a classic town-style garden to the front, while to the rear lies an enclosed courtyard, cleverly divided to provide a pleasant seating area for al fresco dining as well as a separate space for bin storage. A garage to the rear ensures the benefit of secure off-street parking.
The location is equally impressive, with the vibrant Gosforth High Street just a short distance away, offering a wide range of shops, cafés, restaurants, and everyday amenities. Local schools, green open spaces, and strong transport links provide access to Newcastle city centre and the surrounding areas, making this property a superb choice for families, professionals, and those seeking the perfect balance of period charm and modern convenience.
EPC Rating: D
Lounge
5.99m x 4.57m
Dining Room
4.77m x 3.93m
Dining Kitchen
5.41m x 3.3m
Utility Room
4.19m x 3.3m
Bedroom One
6.09m x 5.99m
Bedroom Two
4.82m x 3.96m
Bedroom Three/Study
3.81m x 3.3m
Bedroom Four
6.7m x 4.69m
Bedroom Five
5.1m x 3.6m
Bedroom Six
3.61m x 3.2m
- COUNCIL TAXA payment made to your local authority in order to pay for local services like schools, libraries, and refuse collection. The amount you pay depends on the value of the property.Read more about council Tax in our glossary page.
- Band: F
- PARKINGDetails of how and where vehicles can be parked, and any associated costs.Read more about parking in our glossary page.
- Yes
- GARDENA property has access to an outdoor space, which could be private or shared.
- Front garden,Private garden
- ACCESSIBILITYHow a property has been adapted to meet the needs of vulnerable or disabled individuals.Read more about accessibility in our glossary page.
- Ask agent
Energy performance certificate - ask agent
Woodbine Avenue, Newcastle Upon Tyne, NE3
Add an important place to see how long it'd take to get there from our property listings.
__mins driving to your place
Get an instant, personalised result:
- Show sellers you’re serious
- Secure viewings faster with agents
- No impact on your credit score
About Sarah Mains Residential Sales and Lettings, Newcastle
119-121 St Georges Terrace, Jesmond, Newcastle Upon Tyne, NE2 2DN



Your mortgage
Notes
Staying secure when looking for property
Ensure you're up to date with our latest advice on how to avoid fraud or scams when looking for property online.
Visit our security centre to find out moreDisclaimer - Property reference e5169d98-714c-4d41-b0b0-95c7b9e90eaa. The information displayed about this property comprises a property advertisement. Rightmove.co.uk makes no warranty as to the accuracy or completeness of the advertisement or any linked or associated information, and Rightmove has no control over the content. This property advertisement does not constitute property particulars. The information is provided and maintained by Sarah Mains Residential Sales and Lettings, Newcastle. Please contact the selling agent or developer directly to obtain any information which may be available under the terms of The Energy Performance of Buildings (Certificates and Inspections) (England and Wales) Regulations 2007 or the Home Report if in relation to a residential property in Scotland.
*This is the average speed from the provider with the fastest broadband package available at this postcode. The average speed displayed is based on the download speeds of at least 50% of customers at peak time (8pm to 10pm). Fibre/cable services at the postcode are subject to availability and may differ between properties within a postcode. Speeds can be affected by a range of technical and environmental factors. The speed at the property may be lower than that listed above. You can check the estimated speed and confirm availability to a property prior to purchasing on the broadband provider's website. Providers may increase charges. The information is provided and maintained by Decision Technologies Limited. **This is indicative only and based on a 2-person household with multiple devices and simultaneous usage. Broadband performance is affected by multiple factors including number of occupants and devices, simultaneous usage, router range etc. For more information speak to your broadband provider.
Map data ©OpenStreetMap contributors.




