
2 bedroom detached bungalow for sale
2 West End Falls, Nafferton, Driffield, YO25 4QA

- PROPERTY TYPE
Detached Bungalow
- BEDROOMS
2
- BATHROOMS
1
- SIZE
Ask agent
- TENUREDescribes how you own a property. There are different types of tenure - freehold, leasehold, and commonhold.Read more about tenure in our glossary page.
Freehold
Key features
- LARGE DETACHED BUNGALOW
- COSMETIC IMPROVEMENT REQUIRED
- GAS CENTRAL HEATING
- SOLAR PANELS
- UPVC DG
- LARGE PRIVATE REAR GARDEN
- CARPORT AND GARAGE
- PERFECT FOOTPRINT FOR SOMEONE TO PUT THEIR STAMP ON
Description
A large and spacious two bedroom detached bungalow offering generous accommodation throughout, complete with a garage and ample off-road parking. Upvc DG, gas central heating and solar panels. Situated in a highly sought-after village location, this property benefits from a substantial garden and excellent outdoor space. While the home would benefit from some cosmetic updating, it presents a fantastic opportunity to personalise and add value.
EPC Rating: C
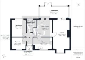
ENTRANCE PORCH
0.78m x 1.36m
Double Upvc door into.
ENTRANCE HALL
2.49m x 1.31m
With timber glazed door into hallway with radiator, airing cupboard and doors to.
KITCHEN
With range of wall, base and larder units, integrated fridge freezer, double oven, hob and extractor, space for washing machine, stainless steel sink and mixer taps, work surface over with upstand, vinyl flooring and window to front elevation.
LOUNGE
6.02m x 3.45m
With feature fireplace, electric fire in situ, two radiator, coving, window to front elevation and patio doors to conservatory.
DINING ROOM
2.38m x 3.02m
With loft access, laminate flooring, radiator and door to conservatory.
BEDROOM 1
3.51m x 2.98m
With window to the rear elevation and radiator.
BEDROOM 2
2.39m x 3.04m
With range of fitted wardrobes, radiator and window to front elevation.
SHOWER ROOM
2.53m x 2.07m
With double shower cubicle, electric shower over, vanity hand basin and wc, radiator and window to rear elevation.
CONSERVATORY
2.4m x 4.79m
A spacious room with laminate flooring, wall lighting and Upvc double glazing.
SERVICES
All services are connected. The proeprty benefits from gas central heating to all radiators.
Garden
The property sits on a large plot with generous lawn frontage, side driveway leading to carport and garage. Gated access to the rear. The rear garden is sizable with open aspect, fenced surrounds, patio seating areas, outside lighting and outside tap.
Parking - Garage
There is a single brick garage with carport attached.
Parking - Driveway
There is parking for several vehicles.
- COUNCIL TAXA payment made to your local authority in order to pay for local services like schools, libraries, and refuse collection. The amount you pay depends on the value of the property.Read more about council Tax in our glossary page.
- Band: C
- PARKINGDetails of how and where vehicles can be parked, and any associated costs.Read more about parking in our glossary page.
- Garage,Driveway
- GARDENA property has access to an outdoor space, which could be private or shared.
- Private garden
- ACCESSIBILITYHow a property has been adapted to meet the needs of vulnerable or disabled individuals.Read more about accessibility in our glossary page.
- Ask agent
Energy performance certificate - ask agent
2 West End Falls, Nafferton, Driffield, YO25 4QA
Add an important place to see how long it'd take to get there from our property listings.
__mins driving to your place
Get an instant, personalised result:
- Show sellers you’re serious
- Secure viewings faster with agents
- No impact on your credit score
Your mortgage
Notes
Staying secure when looking for property
Ensure you're up to date with our latest advice on how to avoid fraud or scams when looking for property online.
Visit our security centre to find out moreDisclaimer - Property reference 2338507b-e662-4e69-bdbe-a489f9f4c572. The information displayed about this property comprises a property advertisement. Rightmove.co.uk makes no warranty as to the accuracy or completeness of the advertisement or any linked or associated information, and Rightmove has no control over the content. This property advertisement does not constitute property particulars. The information is provided and maintained by Willowgreen, Driffield. Please contact the selling agent or developer directly to obtain any information which may be available under the terms of The Energy Performance of Buildings (Certificates and Inspections) (England and Wales) Regulations 2007 or the Home Report if in relation to a residential property in Scotland.
*This is the average speed from the provider with the fastest broadband package available at this postcode. The average speed displayed is based on the download speeds of at least 50% of customers at peak time (8pm to 10pm). Fibre/cable services at the postcode are subject to availability and may differ between properties within a postcode. Speeds can be affected by a range of technical and environmental factors. The speed at the property may be lower than that listed above. You can check the estimated speed and confirm availability to a property prior to purchasing on the broadband provider's website. Providers may increase charges. The information is provided and maintained by Decision Technologies Limited. **This is indicative only and based on a 2-person household with multiple devices and simultaneous usage. Broadband performance is affected by multiple factors including number of occupants and devices, simultaneous usage, router range etc. For more information speak to your broadband provider.
Map data ©OpenStreetMap contributors.





