
Ivyhouse Lane, Bilston
- PROPERTY TYPE
Land
- SIZE
Ask agent
Key features
- Sale by Modern Auction (T&Cs apply)
- Subject to an undisclosed Reserve Price
- Buyers fees apply
- LAND FOR SALE
- POTENTIAL FOR TWO DETACHED PROPERTIES
- Popular residential location
- Close to Coseley train station
- VIEWING HIGHLY RECOMMENDED - CONTACT CONNELLS WOLVERHAMPTON TODAY
Description
SUMMARY
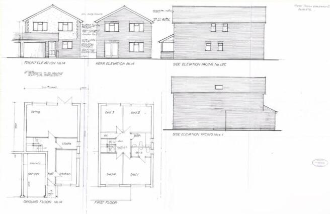
"A PARCEL OF LAND WITH PLANNING APPLICATION FOR TWO DETACHED HOUSES"
Planning Ref P08/1575
This land has the potential to build two detached properties in the popular Coseley area.
DESCRIPTION
Connells Wolverhampton bring to the market this parcel of land with planning for two detached property ref P08/1575 for two detached dwellings on this large and spacious plot. Records are available from the Dudley Council website.
Benefiting from being a short distance away from the popular Coseley train station offering easy access into Wolverhampton and Birmingham, this land is ideal for development just to necessary planning permissions and regulations.
Auctioneer's Comments
This property is offered through Modern Method of Auction. Should you view, offer or bid your data will be shared with the Auctioneer, iamsold Limited. This method requires both parties to complete the transaction within 56 days, allowing buyers to proceed with mortgage finance (subject to lending criteria, affordability and survey).
The buyer is required to sign a reservation agreement and make payment of a non-refundable Reservation Fee of 4.5% of the purchase price including VAT, subject to a minimum of £6600.00 including VAT. This fee is paid in addition to purchase price and will be considered as part of the chargeable consideration for the property in the calculation for stamp duty liability. Buyers will be required to complete an identification process with iamsold and provide proof of how the purchase would be funded.
The property has a Buyer Information Pack containing documents about the property. The documents may not tell you everything you need to know, so you must complete your own due diligence before bidding. A sample of the Reservation Agreement and terms and conditions are contained within this pack. The buyer will also make payment of no more than £349 inc. VAT towards the preparation cost of the pack. Please confirm exact costs with the auctioneer.
The estate agent and auctioneer may recommend the services of other providers to you, in which they will be paid for the referral. These services are optional, and you will be advised of any payment, in writing before any services are accepted. Listing is subject to a start price and undisclosed reserve price that can change.
The Location & Area
Conveniently located for the main Birmingham New Road with links to the M54 and M6 motorways including Dudley, Wolverhampton and Birmingham areas. There is a fantastic selection of local shopping and schooling nearby, as well as doctors and dentists.
1. MONEY LAUNDERING REGULATIONS - Intending purchasers will be asked to produce identification documentation at a later stage and we would ask for your co-operation in order that there will be no delay in agreeing the sale.
2: These particulars do not constitute part or all of an offer or contract.
3: The measurements indicated are supplied for guidance only and as such must be considered incorrect.
4: Potential buyers are advised to recheck the measurements before committing to any expense.
5: Connells has not tested any apparatus, equipment, fixtures, fittings or services and it is the buyers interests to check the working condition of any appliances.
6: Connells has not sought to verify the legal title of the property and the buyers must obtain verification from their solicitor.
Brochures
PDF Property ParticularsFull DetailsIvyhouse Lane, Bilston
NEAREST STATIONS
Distances are straight line measurements from the centre of the postcode- Coseley Station0.2 miles
- Tipton Station1.4 miles
- Loxdale Tram Stop1.5 miles
Notes
Disclaimer - Property reference WVH332988. The information displayed about this property comprises a property advertisement. Rightmove.co.uk makes no warranty as to the accuracy or completeness of the advertisement or any linked or associated information, and Rightmove has no control over the content. This property advertisement does not constitute property particulars. The information is provided and maintained by Connells, Wolverhampton. Please contact the selling agent or developer directly to obtain any information which may be available under the terms of The Energy Performance of Buildings (Certificates and Inspections) (England and Wales) Regulations 2007 or the Home Report if in relation to a residential property in Scotland.
Auction Fees: The purchase of this property may include associated fees not listed here, as it is to be sold via auction. To find out more about the fees associated with this property please call Connells, Wolverhampton on 01902 943827.
*Guide Price: An indication of a seller's minimum expectation at auction and given as a Guide Price or a range of Guide Prices. This is not necessarily the figure a property will sell for and is subject to change prior to the auction.
Reserve Price: Each auction property will be subject to a Reserve Price below which the property cannot be sold at auction. Normally the Reserve Price will be set within the range of Guide Prices or no more than 10% above a single Guide Price.
Map data ©OpenStreetMap contributors.







