Roma, Rome, Lazio, Italy
- PROPERTY TYPE
Commercial Property
- BEDROOMS
5
- BATHROOMS
5
- SIZE
11,302 sq ft
1,050 sq m
Key features
- Historycal center of rome
- Renaissance style but Fully renovated
Description
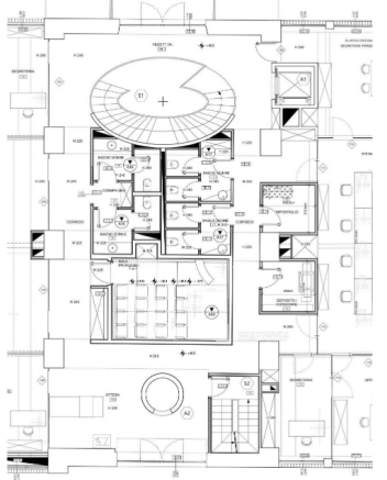
DESCRIPTION OF THE BUILDING
The building in question is two stories above ground, has a load-bearing masonry structure with reinforced concrete floors and a roof with high-quality wooden trusses.
Administrative and management offices, reception and meeting spaces, workspaces with computer stations, a screening room, a data center, restrooms, and utility rooms have been constructed.
Access to the first floor is primarily provided by a large staircase of high architectural value, with a high level of construction and visual appeal. A second staircase, diametrically opposite the first, primarily for service purposes, also provides access to the mezzanine or attic level, which is used for utility rooms or private spaces. A disabled-accessible elevator shaft has also been installed, connecting only to the first floor. A second elevator shaft for goods lifts has been installed, overlooking the service staircase.
The first floor is dedicated to offices, where particular attention has been paid to the reception area. The mezzanine or attic level, in addition to technical rooms and a sewer system, is also a private area for the exclusive use of the owner. It can also be used as an additional office, relaxation area, and guest area. The building itself includes 30 uncovered parking spaces distributed among the parking areas within the building complex. Another utility room, located on the first floor and located within a building known as the former Silos, measures approximately 2 square meters.
BUILDING DESCRIPTION
The ground floor has a covered commercial area of approximately 500 square meters, including the stairwells and elevator shafts. The first floor has essentially the same covered area, which, minus the empty spaces for the stairwells and elevator shafts, amounts to a covered commercial area of approximately 435 square meters. The mezzanine level, which, as specified above, serves not only as a technical space but also as a private area, has a covered commercial area of approximately 110 square meters.
Roma, Rome, Lazio, Italy
NEAREST AIRPORTS
Distances are straight line measurements- Ciampino(International)8.1 miles
- Leonardo da Vinci(International)13.9 miles
Advice on buying Italian property
Learn everything you need to know to successfully find and buy a property in Italy.
Notes
This is a property advertisement provided and maintained by DLRE Operation Advisory, Basel (reference RMA-10122025) and does not constitute property particulars. Whilst we require advertisers to act with best practice and provide accurate information, we can only publish advertisements in good faith and have not verified any claims or statements or inspected any of the properties, locations or opportunities promoted. Rightmove does not own or control and is not responsible for the properties, opportunities, website content, products or services provided or promoted by third parties and makes no warranties or representations as to the accuracy, completeness, legality, performance or suitability of any of the foregoing. We therefore accept no liability arising from any reliance made by any reader or person to whom this information is made available to. You must perform your own research and seek independent professional advice before making any decision to purchase or invest in overseas property.


