
Bedford Drive, Birkenhead, CH42

- PROPERTY TYPE
Semi-Detached
- BEDROOMS
3
- BATHROOMS
1
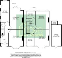
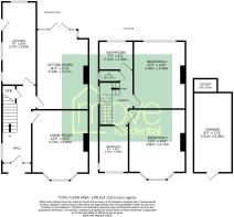
- SIZE
1,309 sq ft
122 sq m
- TENUREDescribes how you own a property. There are different types of tenure - freehold, leasehold, and commonhold.Read more about tenure in our glossary page.
Freehold
Key features
- Impressive Three Bedroom Semi Detached Property
- Immaculately Presented and Updated with Stylish Decor
- Occupying a Generous Sized Plot with Extensive Rear Garden
- Hallway, Two Reception Rooms and a Fitted Kitchen Diner
- Three Bedrooms, Bathroom and Separate Shower Room
- Ample Off Road Parking and a Detached Garage
- Close to Local Amenities, Transport Links and Schools
- Closer Inspection is Strongly Recommended
Description
This impressive three bedroom semi detached home occupies a generous plot and boasts a large rear garden, ample parking and a detached garage. Immaculately presented throughout, the property has been thoughtfully updated and appointed with a stylish interior, offering a perfect blend of contemporary comfort and classic charm.
The accommodation briefly comprises a welcoming hallway leading to a front lounge featuring a striking fireplace, and a rear reception room with patio doors opening onto the delightful rear garden. The well fitted kitchen diner provides a practical and inviting space for family meals and entertaining. To the first floor, there are three sizeable bedrooms, three piece family bathroom and a separate shower room, providing ample space for a growing family or guests. The aforementioned garden is mainly laid to lawn, complemented by a patio area that is ideal for relaxing outdoors or entertaining friends and family. With its thoughtful design and exceptional presentation, this property offers a wonderful opportunity to acquire a home ready to move into.
EPC Rating: D
- COUNCIL TAXA payment made to your local authority in order to pay for local services like schools, libraries, and refuse collection. The amount you pay depends on the value of the property.Read more about council Tax in our glossary page.
- Band: C
- PARKINGDetails of how and where vehicles can be parked, and any associated costs.Read more about parking in our glossary page.
- Yes
- GARDENA property has access to an outdoor space, which could be private or shared.
- Yes
- ACCESSIBILITYHow a property has been adapted to meet the needs of vulnerable or disabled individuals.Read more about accessibility in our glossary page.
- Ask agent
Energy performance certificate - ask agent
Bedford Drive, Birkenhead, CH42
Add an important place to see how long it'd take to get there from our property listings.
__mins driving to your place
Get an instant, personalised result:
- Show sellers you’re serious
- Secure viewings faster with agents
- No impact on your credit score
Your mortgage
Notes
Staying secure when looking for property
Ensure you're up to date with our latest advice on how to avoid fraud or scams when looking for property online.
Visit our security centre to find out moreDisclaimer - Property reference a07522cd-b28c-4049-9010-281b0510948f. The information displayed about this property comprises a property advertisement. Rightmove.co.uk makes no warranty as to the accuracy or completeness of the advertisement or any linked or associated information, and Rightmove has no control over the content. This property advertisement does not constitute property particulars. The information is provided and maintained by Move Residential, Wirral. Please contact the selling agent or developer directly to obtain any information which may be available under the terms of The Energy Performance of Buildings (Certificates and Inspections) (England and Wales) Regulations 2007 or the Home Report if in relation to a residential property in Scotland.
*This is the average speed from the provider with the fastest broadband package available at this postcode. The average speed displayed is based on the download speeds of at least 50% of customers at peak time (8pm to 10pm). Fibre/cable services at the postcode are subject to availability and may differ between properties within a postcode. Speeds can be affected by a range of technical and environmental factors. The speed at the property may be lower than that listed above. You can check the estimated speed and confirm availability to a property prior to purchasing on the broadband provider's website. Providers may increase charges. The information is provided and maintained by Decision Technologies Limited. **This is indicative only and based on a 2-person household with multiple devices and simultaneous usage. Broadband performance is affected by multiple factors including number of occupants and devices, simultaneous usage, router range etc. For more information speak to your broadband provider.
Map data ©OpenStreetMap contributors.







