
Deeside, Heswall, CH60
- PROPERTY TYPE
Land
- BEDROOMS
1
- BATHROOMS
1
- SIZE
Ask agent
Key features
- Substantial Plot of Land in the Highly Desirable Area of Lower Heswall
- Plans Passed to Develop an Extensive Four Bedroom Detached Residence
- Dwelling will Span Over 3,000 Square Foot of Family Living Space
- Site Cleared and Footings in Place Ready to Commence Build
- Brick Built Outbuilding on Site Utilised for Storage
- Surrounded by Countryside and with Views of the Estuary
- Offered for Sale with No Ongoing Chain
- Further Details Available in Our Office
Description
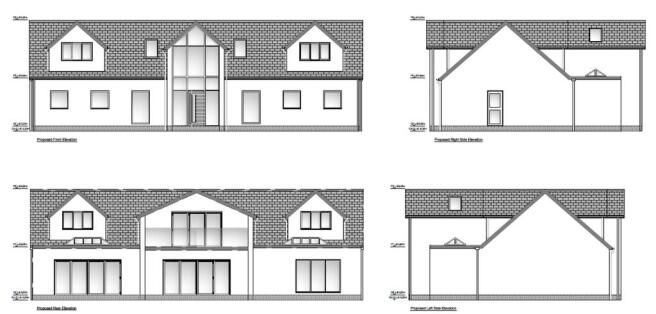
Surrounded by countryside and with views of the Estuary, Move Residential are delighted to offer this unique opportunity to purchase this substantial plot of land. Plans have been passed for a four/five bedroom dwelling which will span over 3,000 square foot. The site has already been cleared and footings are in place meaning work can commence straight away, you also have a brick built outhouse which is ideal for storage during the build and can be re purposed as a bar or home office at a later date.
The plans that have been passed briefly comprise a hallway, large open plan living kitchen dining room with bi-folding doors opening to the rear garden. Four further reception rooms one of which could function as bedroom five if required, utility room and W.C. To the first floor you have a stunning master suite with en suite and access to a balcony positioned to fully appreciate the views. Three further bedrooms, en suite, ample eaves storage and a large family bathroom.
Planning Link:
EPC Rating: E
Deeside, Heswall, CH60
NEAREST STATIONS
Distances are straight line measurements from the centre of the postcode- Heswall Station2.2 miles
- Neston Station3.7 miles
- West Kirby Station3.8 miles
Notes
Disclaimer - Property reference a0752318-7b9b-4f60-ae58-6581886b2ba0. The information displayed about this property comprises a property advertisement. Rightmove.co.uk makes no warranty as to the accuracy or completeness of the advertisement or any linked or associated information, and Rightmove has no control over the content. This property advertisement does not constitute property particulars. The information is provided and maintained by Move Residential, Wirral. Please contact the selling agent or developer directly to obtain any information which may be available under the terms of The Energy Performance of Buildings (Certificates and Inspections) (England and Wales) Regulations 2007 or the Home Report if in relation to a residential property in Scotland.
Map data ©OpenStreetMap contributors.






