
Gateacre Park Drive, Liverpool, L25

- BEDROOMS
2
- BATHROOMS
1
- SIZE
Ask agent
- TENUREDescribes how you own a property. There are different types of tenure - freehold, leasehold, and commonhold.Read more about tenure in our glossary page.
Freehold
Key features
- Two Bedrooms & Contemporary Shower Room
- Garden To Rear, Off-Road Parking & Garage
- Opportunity For Those Looking To Downsize
- Lovely Two Bedroom Semi Detached Bungalow
- Rare Find - Available With No Onward Chain
- Located In Highly Favoured Area Of Gateacre
- Newly Fitted Stylish Kitchen & Conservatory
- Entrance Hall & Welcoming Reception Room
Description
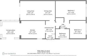
Entering via the porch, you are greeted into the property by an inviting entrance hall which leads through to a bright and spacious reception room, comfortably accommodating both a sitting and dining area. Boasting a feature fireplace along with a set of french doors which offer views and access out to the rear garden, this presents a welcoming social space for relaxing and entertaining guests. There is a new fitted kitchen boasting a range of stylish base and wall units, complementary worktops and a selection of integrated appliances, which flows seamlessly through to a conservatory, offering a charming setting for enjoying mealtimes.
Continuing through you will discover two well-proportioned double bedrooms, each well-presented, boasting fitted wardrobes, and receiving an abundance of natural light. Accompanying the sleeping accommodation and adding the finishing touch to the interior of this home is a deluxe contemporary style family shower room.
Externally, the property further benefits from a landscaped rear garden, featuring a flagged patio area, which presents an idyllic spot for al-fresco dining and entertaining. To the front, a driveway provides ample off-road parking for up to three vehicles, whilst a detached garage offers additional storage space and has a brick built outhouse to the back which is complete with power and an outside WC.
EPC Rating: D
- COUNCIL TAXA payment made to your local authority in order to pay for local services like schools, libraries, and refuse collection. The amount you pay depends on the value of the property.Read more about council Tax in our glossary page.
- Ask agent
- PARKINGDetails of how and where vehicles can be parked, and any associated costs.Read more about parking in our glossary page.
- Yes
- GARDENA property has access to an outdoor space, which could be private or shared.
- Yes
- ACCESSIBILITYHow a property has been adapted to meet the needs of vulnerable or disabled individuals.Read more about accessibility in our glossary page.
- Ask agent
Energy performance certificate - ask agent
Gateacre Park Drive, Liverpool, L25
Add an important place to see how long it'd take to get there from our property listings.
__mins driving to your place
Get an instant, personalised result:
- Show sellers you’re serious
- Secure viewings faster with agents
- No impact on your credit score

Affordability
Notes
Staying secure when looking for property
Ensure you're up to date with our latest advice on how to avoid fraud or scams when looking for property online.
Visit our security centre to find out moreDisclaimer - Property reference a0752528-b5dc-4a8f-8923-e2005ec5d21b. The information displayed about this property comprises a property advertisement. Rightmove.co.uk makes no warranty as to the accuracy or completeness of the advertisement or any linked or associated information, and Rightmove has no control over the content. This property advertisement does not constitute property particulars. The information is provided and maintained by Move Residential, Mossley Hill. Please contact the selling agent or developer directly to obtain any information which may be available under the terms of The Energy Performance of Buildings (Certificates and Inspections) (England and Wales) Regulations 2007 or the Home Report if in relation to a residential property in Scotland.
*This is the average speed from the provider with the fastest broadband package available at this postcode. The average speed displayed is based on the download speeds of at least 50% of customers at peak time (8pm to 10pm). Fibre/cable services at the postcode are subject to availability and may differ between properties within a postcode. Speeds can be affected by a range of technical and environmental factors. The speed at the property may be lower than that listed above. You can check the estimated speed and confirm availability to a property prior to purchasing on the broadband provider's website. Providers may increase charges. The information is provided and maintained by Decision Technologies Limited. **This is indicative only and based on a 2-person household with multiple devices and simultaneous usage. Broadband performance is affected by multiple factors including number of occupants and devices, simultaneous usage, router range etc. For more information speak to your broadband provider.
Map data ©OpenStreetMap contributors.





