
7 bedroom detached house for sale
Pasture Road, Skipton, BD23

- PROPERTY TYPE
Detached
- BEDROOMS
7
- BATHROOMS
6
- SIZE
5,177 sq ft
481 sq m
- TENUREDescribes how you own a property. There are different types of tenure - freehold, leasehold, and commonhold.Read more about tenure in our glossary page.
Freehold
Key features
- An impressive conversion of with historic heritage renovated to exacting standards
- Ancillary accommodation including an integrated two bedroom apartment and separate one bedroom cottage.
- Plans approved for garden room with terrace above
- Large driveway with parking for several cars
- Well placed to enjoy the Yorkshire Dales National Park
- Secluded position with views of Embsay Crag
Description
Nestled in a picturesque valley in the heart of the Yorkshire Dales, Crown Spindle Mill enjoys a truly exceptional and sought-after location. This superb 18th-century converted mill house was first transformed in 1975, having fallen into disrepair during the 1960s after years of use as a cotton- and tobacco-packing facility during the Second World War.
In recent years, the mill and its associated buildings have undergone an extensive, meticulous programme of restoration and renovation, resulting in a thoroughly modern eco-friendly family home that preserves the property’s original integrity and striking period features—most notably the impressive historic water wheel.
Perfectly suited to multi-generational living, the current owners have created a stylish two-bedroom, two-bathroom apartment within the main residence. This self-contained accommodation benefits from its own private entrance yet flows seamlessly into the principal home when required. Also included in the sale is The Engine House, a separate three-storey building offering further flexible living or guest accommodation.
The property features excellent eco credentials, including three air-source heat pumps, fully insulated walls and floors, and potential for hydro-powered energy generation from the beck that runs beneath the mill.
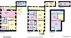
Extending to just over 4,400 sq ft, the main residence offers spacious, well-designed rooms that highlight the building’s heritage. Every detail of the layout and finish has been carefully considered to blend character with contemporary comfort.
The impressive kitchen–dining room immediately draws the eye to the spectacular glass-encased mill wheel. The bespoke contemporary kitchen includes high-end appliances, generous storage, and a central island that creates an ideal setting for entertaining. The space flows into the dining area, designed for both intimate gatherings and larger social occasions.
The light-filled sitting room features a striking glass wall overlooking the gardens and a beautiful feature fireplace, creating a perfect place to relax in the evening. The ground floor also includes a guest bedroom with en-suite shower room and a versatile study that could function as an additional bedroom.
A stone-flagged conservatory offers further potential; the vendors have architectural plans prepared for conversion into a garden room with a terrace above, accessible from the first-floor sitting room (plans and CGI available on request).
The first floor comprises an impressive living room with a log-burning stove and expansive windows with views across the gardens and open countryside. From here, a door leads to the principal bedroom suite, complete with dressing room and en-suite bathroom.
Also located on the first floor is the carefully integrated Sunny Bank Apartment, a stylish two-bedroom, two-bathroom annexe featuring an open-plan kitchen–living area and its own private entrance—ideal for guests, extended family, or potential rental income.
Set in a discreet and private position, the property is approached via a private driveway with off-street parking for several vehicles. The house overlooks a beautiful walled garden with well-stocked borders and a spacious patio perfect for al-fresco dining. The garden leads to a circular seating area with central firepit and views down to the river below. At the far end stands an impressive stone chimney, a distinctive remnant of the original mill.
Services: The property is connected to mains water and electricity
- COUNCIL TAXA payment made to your local authority in order to pay for local services like schools, libraries, and refuse collection. The amount you pay depends on the value of the property.Read more about council Tax in our glossary page.
- Band: G
- PARKINGDetails of how and where vehicles can be parked, and any associated costs.Read more about parking in our glossary page.
- Yes
- GARDENA property has access to an outdoor space, which could be private or shared.
- Yes
- ACCESSIBILITYHow a property has been adapted to meet the needs of vulnerable or disabled individuals.Read more about accessibility in our glossary page.
- Ask agent
Pasture Road, Skipton, BD23
Add an important place to see how long it'd take to get there from our property listings.
__mins driving to your place
Get an instant, personalised result:
- Show sellers you’re serious
- Secure viewings faster with agents
- No impact on your credit score
Your mortgage
Notes
Staying secure when looking for property
Ensure you're up to date with our latest advice on how to avoid fraud or scams when looking for property online.
Visit our security centre to find out moreDisclaimer - Property reference HRG252185. The information displayed about this property comprises a property advertisement. Rightmove.co.uk makes no warranty as to the accuracy or completeness of the advertisement or any linked or associated information, and Rightmove has no control over the content. This property advertisement does not constitute property particulars. The information is provided and maintained by North Residential, Harrogate. Please contact the selling agent or developer directly to obtain any information which may be available under the terms of The Energy Performance of Buildings (Certificates and Inspections) (England and Wales) Regulations 2007 or the Home Report if in relation to a residential property in Scotland.
*This is the average speed from the provider with the fastest broadband package available at this postcode. The average speed displayed is based on the download speeds of at least 50% of customers at peak time (8pm to 10pm). Fibre/cable services at the postcode are subject to availability and may differ between properties within a postcode. Speeds can be affected by a range of technical and environmental factors. The speed at the property may be lower than that listed above. You can check the estimated speed and confirm availability to a property prior to purchasing on the broadband provider's website. Providers may increase charges. The information is provided and maintained by Decision Technologies Limited. **This is indicative only and based on a 2-person household with multiple devices and simultaneous usage. Broadband performance is affected by multiple factors including number of occupants and devices, simultaneous usage, router range etc. For more information speak to your broadband provider.
Map data ©OpenStreetMap contributors.





